4 Bedroom Detached
£675,000
The Clocktower, Brushford, Dulverton

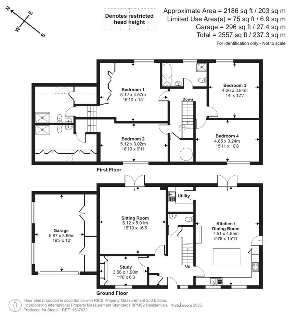
Floorplans For The Clocktower, Brushford, Dulverton
EPC Graph for The Clocktower, Brushford, Dulverton

Description


An immaculate high specification contemporary detached residence, situated in an elevated sunny position with garden, garage, parking and rural views. EPC Band C.

Situation - The property is situated on the outskirts of the small village of Brushford on the southern edge of Exmoor National Park. Brushford offers a range of amenities, including a shop, the village hall, Church of St Nicholas and buses to Dulverton and Tiverton.

Nearby Dulverton is well known as The Gateway to Exmoor and offers a variety of shops, together with a post office, chemist, doctors, veterinary and dental surgeries, library and primary school. There are also good recreational facilities. Tiverton, which is 12 miles offers further shopping and entertainment facilities and the well-known Blundells School, together with easy access to the M5 and mainline railway station at Tiverton Parkway. Exeter, 29 miles boasts a wealth of shopping, recreational and leisure facilities. Exeter Airport lies to the east of the city, offering national and international flights.

The property is well located for walking and riding in the wonderful hills and valleys of Exmoor. Wimbleball Lake is nearby offering lovely lakeside walks, sailing and other water sports.

Description - 2, The Clock Tower is a very stylish residence, built in 2013 to an extremely high standard. This impressive detached property clad in locally sourced stone is situated in a private and secure courtyard complex with gated access.The garden is sunny, peaceful and enjoys charming rural views. The house provides high quality and well-proportioned contemporary accommodation. A great deal of thought has gone into the design and choice of materials to compliment the house which include solid oak timber doors and flooring with an under-floor heating system.

Accommodation - As illustrated on the floorplan, from the courtyard the solid oak front door leads into a hallway giving access to the kitchen, receptions rooms, a cloakroom and stairs to the first floor. The large sitting room with lots of natural light, has oak flooring and patio doors leading out to the garden. The very large kitchen/dining room has wooden flooring and patio doors leading out to the terrace and garden. The kitchen has a range of fitted floor and wall units, central island unit, electric Aga and integrated appliances.

Upstairs are four large double bedrooms and a central bathroom with bath and separate shower. The master bedroom has an en suite shower room, fitted wardrobes and enjoys beautiful views across the fields to the Barle River and beyond. Bedroom two has an en suite shower room and fitted cupboards. Bedrooms three and four are both double rooms.
 
The whole property has a very modern finish throughout, with oak floors, doors and fittings, as well as a neutral colour scheme. The ground floor has under-floor heating. All rooms are of large proportions allowing space for plenty of personal furniture.

Outside - Adjoining is a large garage and two further parking spaces are allocated at the front of the property. To the rear is a large patio with astro turf and paved seating areas, steps lead down to a generous sized lawned garden with views over the adjoining field to the river beyond.

Viewing - Strictly by appointment with the agents please.

Services - Mains electricity, drainage and water. Oil fired central heating. Ofcom predicted broadband services - Standard: 9Mbps download. 0.9Mbps Upload. Superfast: 80 Mbps download 20 Mbps Upload. Ofcom predicted mobile coverage for voice and data: Internal & External- EE, Vodafone, Three and O2. OFCOM 2025.
Local Authority: Somerset West & Taunton (West Somerset).

Directions - From Dulverton take the B3223 south and after about 1.5 miles you will reach Brushford. Turn left through the pillared entrance towards The Carnarvon Arms and the Clock Tower complex will be found shortly on the left hand side.

What3words - ///blueberry.romance.rejected

Stags

Stags

13 Fore Street
Dulverton
Somerset
TA22 9EX

+44 (0)1398 323174

Reference: 34101355

Request a viewing for this property

Simply fill out the form below or alternatively call us on 020 7839 0888

* Mandatory fields