4 Bedroom Detached
£450,000
Suffolk Close, Ely

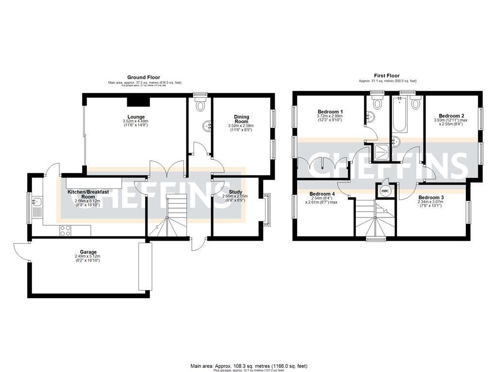
Floorplans For Suffolk Close, Ely
EPC Graph for Suffolk Close, Ely

Description


Cheffins are delighted to offer to the market this 4 bedroom detached family home situated in a popular established residential location within the City of Ely.

The property comprises of entrance hall, cloakroom, dining room, lounge with doors leading into the garden, study and kitchen/breakfast room, as well as 4 bedrooms (bedroom 1 benefitting from an ensuite shower room) plus a family bathroom completing the accommodation.

Outside the property is a small front garden, a driveway providing off road parking for 2 cars and leading up to a single garage, whilst the rear offers a mainly laid to lawn enclosed garden with a paved patio.

The property benefits from being offered for sale with no upward chain and is available to view by appointment.

Entrance Hall - With door to side, stairs leading to the first floor, under stairs cupboard, radiator.

Cloakroom - Fitted with a 2-piece suite comprising low level WC and pedestal wash hand basin, window to side.

Study - With window to front, radiator

Dining Room - With 2 windows to front, radiator.

Lounge - With patio doors to rear leading into the garden, gas fireplace, radiator.

Kitchen / Breakfast Room - Fitted with a range of base and wall units, cupboards and drawers with work surfaces over, single oven, 4-ring gas hob with extractor hood over, stainless steel sink with mixer tap, plumbing for washing machine, plumbing for dishwasher, window to rear, radiator.

First Floor Landing - With airing cupboard housing hot water cylinder and access to loft

Bedroom 1 - With 2 windows to rear, fitted wardrobes, radiator.

Ensuite - Fitted with 3-piece suite comprising low level WC, pedestal wash hand basin and shower cubicle, window to side, radiator, extractor fan.

Bedroom 2 - With 2 windows to front, radiator>

Bedroom 3 - With window to front, radiator.

Bedroom 4 - With window to rear, radiator.

Bathroom - Fitted with 3-piece suite comprising low level WC, pedestal wash hand basin, panelled bath with shower over, radiator, extractor fan, window to side.

Outside - To the front of the property a driveway provides off road parking for 2 cars and leads to a single garage. The garage has power and light connected, an up and over door, door to the rear leading into the garden, eaves storage and a wall mounted gas boiler. The rear garden is mainly laid to lawn with mature shrubs and trees to borders, paved patio and gated access to the front.

Viewing Arrangements - Strictly by appointment with the Agents.

Cheffins

Cheffins

25 Market Place
Ely
Cambridgeshire
CB7 4NP

+44 (0)1353 654900

Reference: 34092371

Request a viewing for this property

Simply fill out the form below or alternatively call us on 020 7839 0888

* Mandatory fields