3 Bedroom Terraced
£500,000
Fore Street, Silverton, Exeter

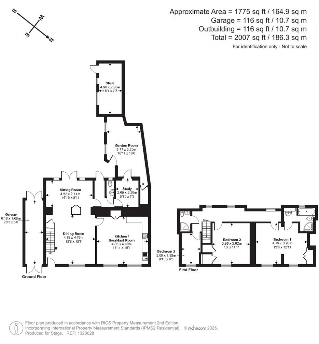
Floorplans For Fore Street, Silverton, Exeter
EPC Graph for Fore Street, Silverton, Exeter

Description


A Grade II listed, attractive character cottage with large garden and off-road parking with this popular and convenient village with amenities. Three Bedroom. Two Bathrooms. Three Reception Rooms. Downstairs WC. Enclosed Side Alleyway/ Store. Large Rear Garden. Off-Road Parking. No Onward Chain. Council Tax Band D. EPC Band C. Freehold

Description - A well-presented character cottage with deceptively spacious accommodation featuring a large fitted kitchen/ dining room, sitting room with French windows onto the garden and the master bedroom has an en suite bathroom. Further features include; a long westerly facing rear garden, outbuilding, off road parking for two vehicles and no onward chain.

Silverton provides excellent amenities including a shop and post office, two pubs, doctor's surgery, primary school, church and village hall, as well as superb access to transport links.

Services - Mains electricity, water, gas and drainage. Gas Central heating.
Ofcom predicted broadband services - Standard, Superfast & Ultrafast broadband available.
Ofcom predicted mobile coverage: Internal (variable) - EE, Three, O2 and Vodafone. External - EE, Three, O2 and Vodafone.
Local Authority: Mid Devon Council. Silverton Conservation Area.

Directions - From Tiverton, proceed south bound on the A396 passing through Ashley and Bickleigh. Once over Bickleigh Bridge, remain on the A396 for approximately 2.5 miles where, at the brow of the hill, turn left onto Tiverton Road and continue towards Silverton. Upon reaching the mini-roundabout in Silverton, take the first exit onto Fore Street, where the property can be found after approximately 150 yards on the left-hand side.

Stags

Stags

19 Bampton Street
Tiverton
Devon
EX16 6AA

+44 (0)1884 235705

Reference: 34074485

Request a viewing for this property

Simply fill out the form below or alternatively call us on 020 7839 0888

* Mandatory fields