4 Bedroom Town House
£390,000
Crouch Street, Banbury

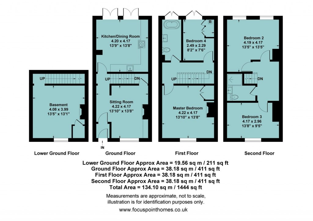
Floorplans For Crouch Street, Banbury
EPC Graph for Crouch Street, Banbury

Description


A deceptively spacious four bedroom townhouse benefitting from flexible accommodation over four floors with two bathrooms and an enclosed rear garden

Situation - BANBURY is conveniently located only two miles from Junction 11 of the M40, putting Oxford (23 miles), Birmingham (43 miles), London (78 miles) and of course the rest of the motorway network within easy reach. There are regular trains from Banbury to London Marylebone (55 mins) and Birmingham Snow Hill (55 mins). Birmingham International airport is 42 miles away for UK, European and New York flights. Some very attractive countryside surrounds and many places of historical interest are within easy reach.

A floorplan has been prepared to show the dimensions and layout of the property as detailed below. Some of the main features are as follows:

* Entrance porch with door leading to sitting room.

* Sitting room with large sash window to front, door to cellar, stairs to first floor, door to kitchen/dining room.

* Kitchen/dining room fitted with a range of base and eye level units, integrated oven, four ring electric hob with extractor over, space for under counter fridge and freezer, space and plumbing for dishwasher, ample space for table and chairs, two sets of double doors leading to the garden.

* First floor landing.

* Master bedroom with sash window to front, built-in wardrobe and fireplace with ornamental surround.

* Bedroom four which is a single with built-in storage cupboard housing the boiler, double doors to the balcony.

* Family bathroom located at the rear, fitted with a free standing roll top bath, wash hand basin and WC, heated towel rail and double doors leading out to the balcony.

* On the second floor are two further double bedrooms.

* Bedroom three with sash window to front.

* Bedroom four with two windows to the rear which used to be two separate rooms so it has the potential to be turned back into two rooms if needed.

* Shower room with shower cubicle, wash hand basin and WC, part tiled walls and tiled flooring, storage cupboard over the stairs.

* The rear garden is private, enclosed by walling and is mostly laid to lawn with a block paved patio.

* To the front there is a small gravelled area. Permit parking is available. We understand it is £70 per permit per annum and guest passes are available.

* Cellar with plastered walls, window to front, space and plumbing for washing machine, lighting.

Services - All mains services are connected. The boiler is located in a cupboard in bedroom four.

Cherwell District Council. Council tax band D.

Viewing - Strictly by prior arrangement with the Sole Agents Anker & Partners.

Energy Rating: C - A copy of the full Energy Performance Certificate is available on request.

Anker & Partners

Anker & Partners

31-32 High Street
Banbury
Oxfordshire
OX16 5ER

+44 (0)1295 271414

Reference: 34056046

Request a viewing for this property

Simply fill out the form below or alternatively call us on 020 7839 0888

* Mandatory fields