4 Bedroom Detached
£775,000
Freezes Barns, Steeple Bumpstead

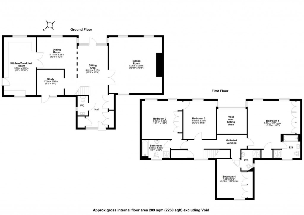
Floorplans For Freezes Barns, Steeple Bumpstead
EPC Graph for Freezes Barns, Steeple Bumpstead

Description


A stunning detached barn enjoying beautifully appointed accommodation, together with a landscaped garden. The barn forms part of a small cluster of barn style new build properties in the center of the village.

Ground Floor -

Reception Hall & Sitting Area - Timber entrance door with three quarter height double glazed window to the front and a number of glazed panels flooding the room with natural light. A spacious and welcoming hallway with seating area to the rear and staircase rising to the first floor, two built-in storage cupboard and a built-in drinks cupboard with shelving, wine rack and space for wine cooler. Exposed oak framing and solid oak doors to adjoining rooms.

Sitting Room - A triple aspect room with exposed oak framing and an impressive inglenook fireplace with granite hearth and inset stove.

Study/Snug - A versatile, multi-purpose room with double glazed door and adjoining double glazed window providing access to the private courtyard.

Dining Room - Double glazed window overlooking the garden. Solid oak door leading to:

Kitchen Breakfast Room - A dual aspect room with double glazed windows to the front and rear aspects providing a good degree of natural light. The kitchen is fitted with a range of base and eye level units with marble worktop, ceramic sink unit, integrated dishwasher and washing machine, space for American style fridge freezer and range cooker. A glazed stable door provides access to the outdoor space and garden.

Cloakroom - Comprising low level WC, wash basin and obscure double glazed window.

First Floor -

Galleried Landing - An impressive galleried landing with original exposed timber framing and views out to the garden. Double glazed window to the front aspect and deep built-in airing cupboard with shelving.

Bedroom 1 - A pair of double glazed windows to the rear aspect overlooking the garden, further full-height double glazed window to the side aspect. The room is fitted with a range of wardrobes and further built-in storage. Door to:

En Suite - Comprising panelled bath, low level WC, wash basin, shower enclosure and obscure double glazed window.

Bedroom 2 - A pair of double glazed windows overlooking the garden. Fitted wardrobes.

Bathroom - Comprising panelled bath, low level WC, wash basin, shower enclosure and obscure double glazed window.

Bedroom 3 - Double glazed window to the rear aspect overlooking the garden, plus full height double glazed window to the side aspect.

Bedroom 4 - Double glazed window to the front aspect and built-in wardrobes.

En Suite - Comprising shower enclosure, wash basin, WC and obscure double glazed window.

Outside - The Barn forms part of a small former farmyard development in the centre of the village, tucked away whilst being within walking distance of the local amenities and facilities. To the front of the property is a block paved driveway providing extensive off-street parking, in turn leading to the detached double garage. The rear garden has been landscaped with a paved terrace adjoining the rear of the property, in turn leading to a decking area with pond and a further decking area for al fresco entertaining. The gardens enjoy a good degree of privacy. In addition to the main garden is a private paved courtyard adjoining the snug/study, which leads to another garden area at the side of the property and a wood/tool shed and has additional gated access from the front path and wrought iron gates from the side path and kitchen.

Detached Double Garage - Two pairs of timber doors providing vehicular access, power and lighting connected.

Viewings - By appointment through the Agents.

Cheffins

Cheffins

Hill Street
Saffron Walden
Essex
CB10 1JD

+44 (0)1799 523656

Reference: 34055194

Request a viewing for this property

Simply fill out the form below or alternatively call us on 020 7839 0888

* Mandatory fields