Land
£300,000
Shebbear

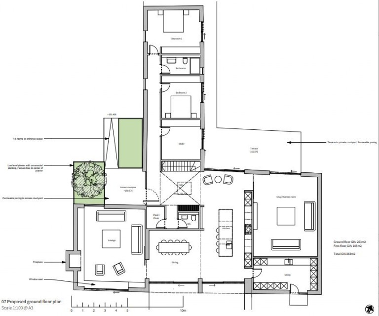
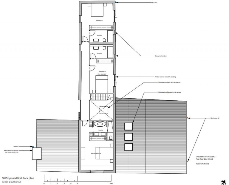
Floorplans For Shebbear

Description


Set in rolling countryside close to the villages of Shebbear and Langtree, this large agricultural barn with a generous plot offers the chance to build a unique and spacious contemporary home in the heart of North Devon.

Situation - Part of the charming parish of Buckland Filleigh, close to the villages of Shebbear and Langtree with access to village amenities and the market town of Great Torrington. The area has a range of schools (public and private), local shops, pubs, and community facilities, yet still delivering a sense of peaceful isolation. The barn is located on the eastern edge of Galmington Farm. The property is separate from the farm and offer seclusion and privacy.

Description - A fantastic opportunity to purchase a building plot of approximately 0.74 acres positioned with full planning granted for an impressive and contemporary 5 bedroom detached residence with large open plan kitchen / dining room, separate sitting room, snug / garden room, study. Located on a generous plot, the barn enjoys a wonderful rural setting surrounded by countryside.

Planning was granted on the 5th April 2023 under Torridge planning reference 1/1188/2022/FUL. All the appropriate documentation can be reviewed on the Torridge District Council website using the planning reference provided above for access.

This is a unique proposal and could be suited for anyone looking to create their very own rural idyll.

Services - Mains water, planning permission for septic tank drainage.

Stags

Stags

4 The Quay
Bideford
Devon
EX39 2HW

+44 (0)1237 425030

Reference: 34054003

Request a viewing for this property

Simply fill out the form below or alternatively call us on 020 7839 0888

* Mandatory fields