Plot
£495,000
Somerford Road, Christchurch

Floorplans For Somerford Road, Christchurch Floorplans For Somerford Road, Christchurch Floorplans For Somerford Road, Christchurch

Description


A site measuring 0.39 acres with full planning permission for an exclusive development of nine, two bedroom apartments, situated in the heart of Christchurch, just over a mile from Mudeford Quay.
For sale by Public Auction and via Livestream on Wednesday 20 August 2025 at 2:00pm at AFC Bournemouth Vitality Stadium, BH7 7AF.

The Site - Situated in the heart of Christchurch and formerly the site of a large detached residence, the site benefits from full planning permission for a three-storey block of 9, 2 bedroom apartments. Each apartment measures between 71 sqm. and 87 sqm. and comprises open-plan kitchen/dining/sitting rooms, 2 bedrooms (1 with ensuite facilities) and a bathroom. Several of the apartments enjoy terraces or balconies.

Full planning permission was granted on 15 March 2023 under reference 8/22/0470/FUL for the demolition of the existing property and outbuilding and construction of a new 3-storey flat block of 9 x 2-bed apartments. With associated bin & cycle store. The full plans can be inspected via the BCP Council website. The site extends to 0.39 acres and provides scope for alternative schemes subject to planning permission.

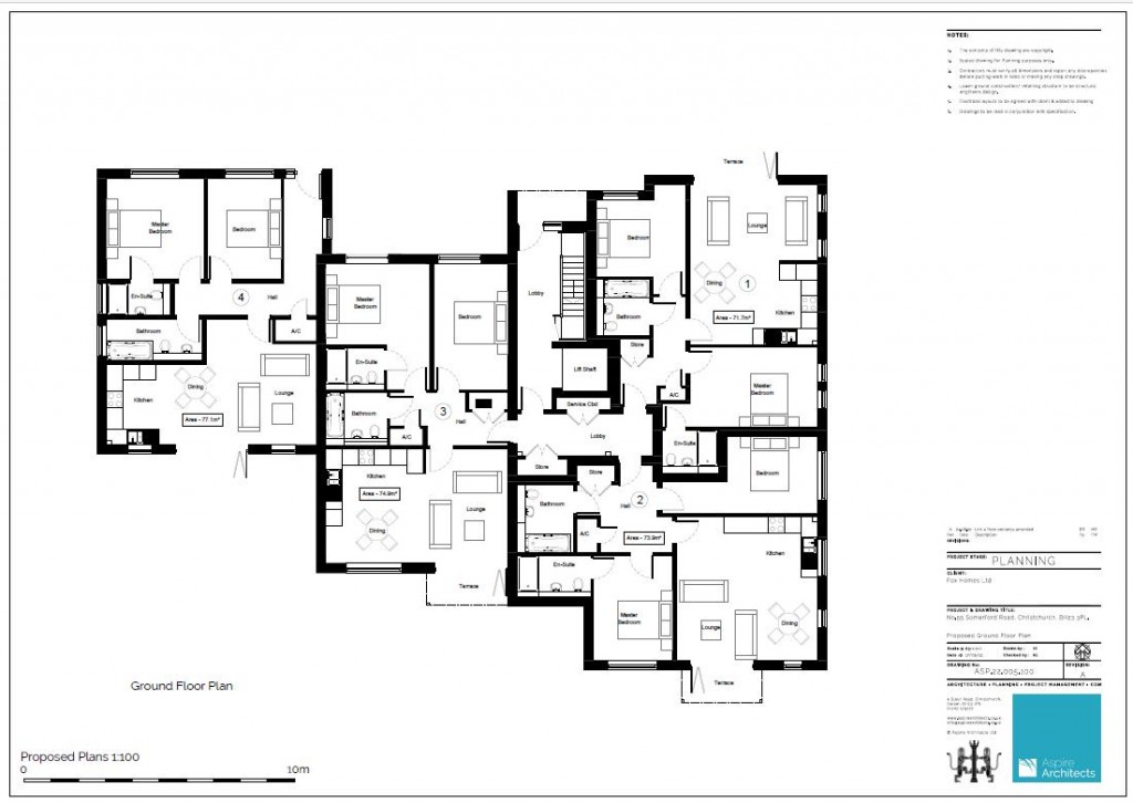
Proposed Ground Floor - Apartment 1: Entrance hall, open plan kitchen/dining/sitting room with bifold doors to terrace, 2 bedrooms (1 ensuite), bathroom (71.7 sqm.)
Apartment 2: Entrance hall, open plan kitchen/dining/sitting room with bifold doors to terrace, 2 bedrooms (1 ensuite), bathroom (73.9 sqm.)
Apartment 3: Entrance hall, open plan kitchen/dining/sitting room with bifold doors to terrace, 2 bedrooms (1 ensuite), bathroom (74.9 sqm.)
Apartment 4/bungalow: Single storey with private access, entrance hall, open plan kitchen/dining/sitting room with bifold doors to terrace, 2 bedrooms (1 ensuite), bathroom (77.1 sqm.)

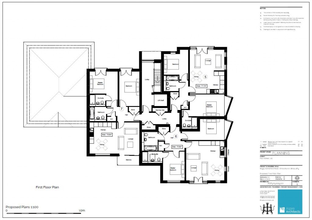
Proposed First Floor - Apartment 5: Entrance hall, open plan kitchen/dining/sitting room with French windows to Juliet balcony, 2 bedrooms (1 ensuite), bathroom (71.7 sqm.)
Apartment 6: Entrance hall, open plan kitchen/dining/sitting room with French windows to Juliet balcony, 2 bedrooms (1 ensuite), bathroom (73.9 sqm.)
Apartment 7: Entrance hall, open plan kitchen/dining/sitting room with sliding doors to balcony, 2 bedrooms (1 ensuite), bathroom (74.9 sqm.)

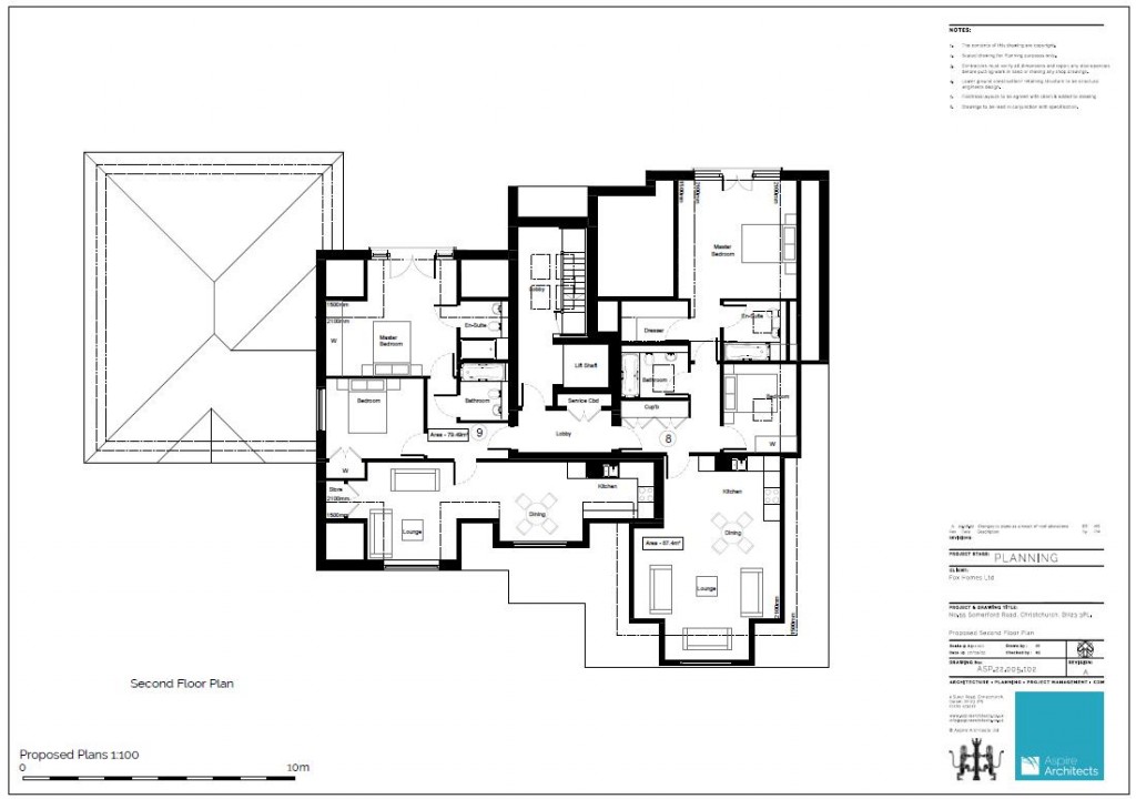
Proposed Second Floor - Apartment 8: Entrance hall, open plan kitchen/dining/sitting room, master bedroom with French windows to Juliet balcony, dressing room and ensuite, bedroom 2, bathroom (87.4 sqm.)
Apartment 9: Entrance hall, open plan kitchen/dining/sitting room, master bedroom with French windows to Juliet balcony and ensuite, bedroom 2, bathroom (79.4 sqm.)

Situation - Situated between the New Forest National Park and the coast, Christchurch is a popular town benefitting from an excellent range of shopping and commercial facilities as well as restaurants, cafes and eateries. The site is located just over a mile from Mudeford Quay and Avon Beach and Soutbourne and Highcliffe are within easy reach by car. Christchurch station provides a mainline service to London Waterloo and Southampton. The A338 is just over 4 miles distant with routes to Bournemouth, Ringwood, Southampton and London via the A31/M27/M3.

What3words - ///lasts.smug.dips

Services - All mains services are available in Somerford Road

Local Authority - BCP Council

Agents Notes - CIL: £98,735.93

Solicitor - Rawlins Davy Reeves
Bournemouth BH2 6HT
01202 558844
nwhite@rawlinsdavyreeves.com

Symonds and Sampson

Symonds & Sampson

5 West Street
Wimborne
Dorset
BH21 1JN

+44 (0)1202 843190

Reference: 34043638

Request a viewing for this property

Simply fill out the form below or alternatively call us on 020 7839 0888

* Mandatory fields