Land
£125,000
Moor Lane, East Coker

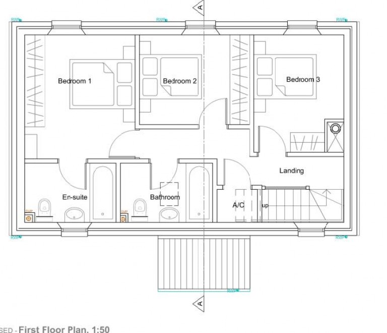
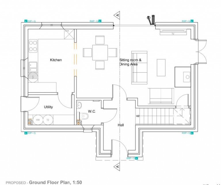
Floorplans For Moor Lane, East Coker

Description


A rare opportunity to acquire a single building plot with full planning consent for the erection of a three bedroom detached cottage, situated in the heart of this sought after village.

Situation - The building plot is situated within a quiet no-through lane yet close to the heart of this sought after conservation village. Within the village is a superb restaurant/public house, church and nearby primary school and café. For day-to-day needs Yeovil is within 3 ? miles where an excellent range of shopping, recreational and scholastic facilities can be found, together with a mainline rail link to Exeter and London Waterloo.

Description - The building plot provides an excellent opportunity to construct an individually designed property with off road parking and adjoining gardens, quietly tucked away in the village. The property will be constructed of natural hamstone with some natural elm cladding and set beneath a heritage rosemary clay tiled roof. The chimney will be brick, together with timber casement windows and timber doors. Proposed accommodation comprises; ground floor entrance hallway, cloakroom, lounge/dining room, kitchen and utility room. First floor accommodation comprising; landing with airing cupboard, three bedrooms, one with an en suite bathroom together with a family bathroom. Outside there will be off road parking together with attractive gardens on three sides, which are already naturally hedged.

Planning - The planning was originally granted under application no 19/01317/FUL dated the 20th August 2019 with a further application no 20/03482/COL dated the 25th February 2021 confirming that the completed access constitutes a lawful start to the development approved under 19/01317/FUL. Updated planning 24/00147/S73A.

Services - It is believed that mains water is in the road, BT and electric are also on or adjacent to the property. Sewerage will be a pumped sewage pipe up the lane to connect to the main sewer in the village High Street. (Further information will be provided upon request)

Viewings - Strictly by appointment through the vendors selling agents, Stags, Yeovil office. Telephone 01935 475000.

Directions - On entering East Coker head towards the centre of the village passing the church on your right hand side. At the Helyar Arms public house/restaurant turn left into Moor Lane whereupon the site will be seen a short distance along on the left hand side, clearly identified by our For Sale board.

Stags

Stags

4/6 Park Road
Yeovil
Somerset
BA20 1DZ

+44 (0)1935 475000

Reference: 34037504

Request a viewing for this property

Simply fill out the form below or alternatively call us on 020 7839 0888

* Mandatory fields