2 Bedroom Terraced
£300,000
Longmeadow Road, Lympstone, Exmouth

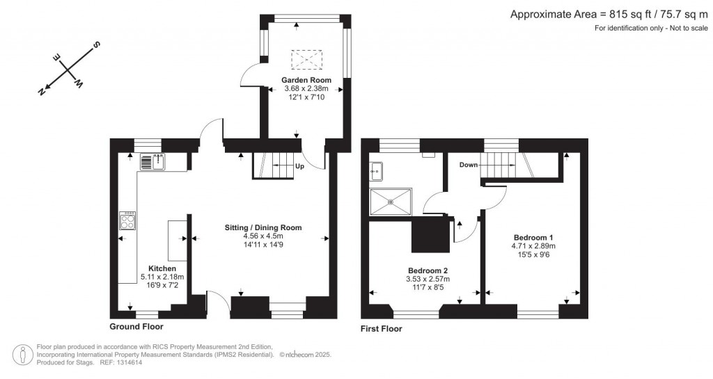
Floorplans For Longmeadow Road, Lympstone, Exmouth
EPC Graph for Longmeadow Road, Lympstone, Exmouth

Description


A charming two-bedroom, Grade II Listed cottage in the heart of Lympstone, offering a generous garden and potential for modernisation. No onward chain, walking distance to village amenities and train station, EPC: D

Situation - Bakers Cottages is located on Longmeadow Road in the highly sought-after estuary village of Lympstone. This vibrant and historic village offers a range of local amenities including a well-regarded primary school, post office, village store, pubs, and a train station providing direct links to Exeter. The Exe Estuary Trail, ideal for walking and cycling, runs nearby, while the coastal town of Exmouth is just a short drive away, offering a wider range of shops, leisure facilities, and sandy beaches.

Description - This delightful, two bedroom period cottage offers a rare opportunity to acquire a characterful home with scope to improve and add value. Retaining many original features, the property benefits from well-proportioned accommodation arranged over two floors, along with a particularly generous rear garden which is a notable asset for a cottage of this type.

Accommodation - A glazed wooden front door opens into a spacious sitting/dining room, the focal point of which is a large log effect gas fire, creating a cosy atmosphere. The dining area is open to the kitchen, which runs along the side of the property in a galley-style layout. Fitted with a range of matching units and offering space for white goods, the kitchen enjoys dual-aspect windows to both the front and rear, and extends beyond the chimney breast to maximise usable space.

To the rear of the sitting room is a garden room, offering a peaceful second reception space with large windows framing the green outlook of the garden. The garden room would be ideal as a reading room, home office or hobby space. Also on the ground floor are stairs rising to the first floor.

Upstairs, there are two bedrooms. Bedroom one is a generous double with built-in storage options, while bedroom two offers flexibility as a single bedroom or study. The family bathroom has been converted into a wet room with a walk-in shower, but could easily be reconfigured to accommodate a bath if desired.

Outside - One of the property's standout features is the extensive rear garden, which is unusually large for a cottage of this size. The garden is mainly laid to lawn and bordered by mature shrubs and trees, offering a sense of privacy and tranquillity. Immediately outside the house is a gravelled terrace perfect for outdoor dining and a large timber shed provides useful storage.

Services - Utilities: Mains Water, Electricity and Gas.
Drainage: Mains
Heating: Gas radiator in bedroom one.
Tenure: Freehold
EPC: D (63)
Current Council Tax: B
Standard and superfast broadband available. EE, O2, Three and Vodafone mobile networks likely to be available (Ofcom).

Stags

Stags

21 Southernhay West
Exeter
Devon
EX1 1PR

+44 (0)1392 255202

Reference: 34024899

Request a viewing for this property

Simply fill out the form below or alternatively call us on 020 7839 0888

* Mandatory fields