Plot
£300,000
Jean Street, Baddesley Ensor, CV9

Floorplans For Jean Street, Baddesley Ensor, CV9 Floorplans For Jean Street, Baddesley Ensor, CV9

Description


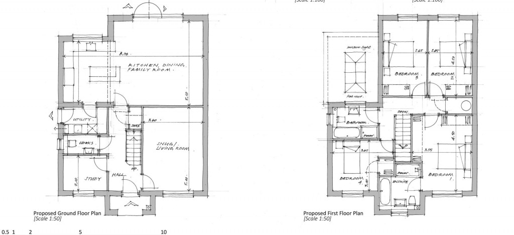
An exciting development opportunity positioned within a popular and established residential area. Full planning permission has been granted for the construction of two impressive four-bedroom detached homes, adjacent to 1A Jean Street - a recently completed example of the finished design. Plot One extends to approximately 1,673 sqft and Plot Two to around 1,691 sqft. The site enjoys a convenient setting with excellent access to the Midlands road network, making it an ideal location for commuters and families alike

Location - The property is located in the village of Baddesley Ensor, a popular North Warwickshire community offering a blend of village charm and excellent transport connections. The village provides a range of everyday amenities including a convenience store, post office, public house, primary school, and recreational grounds, together with access to open countryside and walking routes. Nearby Atherstone offers a wider selection of shops, restaurants and a mainline railway station, while Tamworth provides extensive retail and leisure facilities. The area is ideal for commuters, with easy access to the A5, M42 and M6 motorway networks.

Distances:
Atherstone - 3 miles
Tamworth - 6 miles
Nuneaton - 8 miles
Lichfield - 12 miles
Birmingham Airport - 18 miles

Description - To be sold as one lot- ideal investment/developer opportunity. Please ask if you require any further information

Planning Permission - Full planning permission was granted in February 2011 for the construction of two new dwellings with associated access and parking including garage building. Vehicle access is off Jean Street. Application Ref No; PAP/2022/0094

Viewing Arrangements - Strictly by prior appointment via the agents Howkins & Harrison Tel:01827-718021 Option 1

Plans/Drawings - Howkins & Harrison prepare these plans for reference only. They are not to scale.

Local Authority - North Warwickshire Borough Council - Tel:01827-715341

Agents Note - Additional information about the property, including details of utility providers, is available upon request. Please contact the agent for further details.

Tenure & Possession - The plots are to be sold as freehold with vacant possession being given on completion

Services - Applicants must do their own check on availability and access for all main services.

Important Information - Every care has been taken with the preparation of these Sales Particulars, but complete accuracy cannot be guaranteed. In all cases, buyers should verify matters for themselves. Where property alterations have been undertaken buyers should check that relevant permissions have been obtained. If there is any point, which is of particular importance let us know and we will verify it for you. These Particulars do not constitute a contract or part of a contract. All measurements are approximate. The Fixtures, Fittings, Services & Appliances have not been tested and therefore no guarantee can be given that they are in working order. Photographs are provided for general information and it cannot be inferred that any item shown is included in the sale. Plans are provided for general guidance and are not to scale.

Howkins & Harrison

Howkins & Harrison

12 Church Street
Atherstone
Warwickshire
CV9 1RN

+44 (0)1827 718021

Reference: 34021312

Request a viewing for this property

Simply fill out the form below or alternatively call us on 020 7839 0888

* Mandatory fields