5 Bedroom Semi-Detached
£595,000
Lyme Road, Axminster, Devon

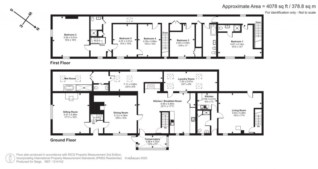
Floorplans For Lyme Road, Axminster, Devon
EPC Graph for Lyme Road, Axminster, Devon

Description


A substantial stone farmhouse with optional 5 acres, for an additional £65,000, in a peaceful country setting. EPC: E

The Property - Fawnsmoor Farmhouse is a charming and substantial period farmhouse with potential annexe/wing and optional adjoining 5 acres of grazing/woodland, in a delightful peaceful country location. It was originally the farmhouse to Fawnsmoor Farm, a former small working farm and has been under the current ownership for some 35 years. The property is a classic longhouse, believed to date back to the 17th century, having main walls of solid stone. It has the big advantage of not being listed.

The accommodation is extensive and versatile with an interconnecting annexe wing, equally ideal as one large home or with the annexe for a dependant relative, guest wing, long term or holiday letting investment. There is a host of character features, typical of its age and type, including an inglenook fireplace, exposed beams, flagstone floors, window seats, panelled doors and exposed wide floorboards. The annexe has recently been subject to refurbishment, although the main farmhouse would benefit from general updating.

Excellent features include oil-fired central heating, uPVC sealed unit windows, wood burners, wood-fired range cooker, shaker style solid wood kitchen units, granite worktops, LPG oven/hob, large bathroom/wet room with air bath and the annexe offers an oak fitted kitchen with granite worktops and LPG hob plus modern en-suite shower room and modern downstairs shower/utility.

Outside - To the front of the farmhouse is a large open courtyard providing extensive parking. To the side is a delightful Japanese style garden, which faces south, featuring a large raised pond and is very well stocked. To the rear is an area of lawn, paved terrace and small lily pond with steps up to a higher vegetable garden with raised beds, vine and greenhouse. There is also a separate small orchard containing a variety of fruit trees.

Optional 5 Acres - Adjoining the farmhouse to the west is a large open level field together with a small area of woodland/copse. Guide price £65,000.

Fawnsmoor Farmhouse owns the long driveway from Lyme Road down to the property. This is shared by three other properties which have to contribute towards the upkeep.

Situation - The Farmhouse is pleasantly situated in a rural, yet accessible, location within easy reach of Axminster, on the Devon/Dorset border. Nearby is the stunning Jurassic Coast World Heritage Site with Lyme Regis and Sidmouth both easily accessible from the property. Within Axminster there is a mainline train station offering regular services to London Waterloo and Exeter. The highly regarded Colyton Grammar School is nearby.

Services - Mains water and electricity. Oil-fired central heating. Private drainage.
Broadband - Standard up to 12Mbps and Ultrafast up to 1800Mbps.
Mobile phone service providers available are EE, Three, O2 and Vodafone for voice and data services inside and outside.
(Broadband and mobile phone information taken from Ofcom website Results are predictions and not a guarantee. Actual services available may be different from results and may be affected by network outages).

Viewings - Strictly by appointment with Stags Bridport.

Directions - From Bridport follow the A35 west. Shortly after leaving Raymond's Hill turn right towards Axminster and the turning to Fawnsmoor Farm is on the right (after about 0.7 mile), just past the 'Welcome to Axminster' sign.

Stags

Stags

29 South Street
Bridport
Dorset
DT6 4NR

+44 (0)1308 428000

Reference: 34014956

Request a viewing for this property

Simply fill out the form below or alternatively call us on 020 7839 0888

* Mandatory fields