4 Bedroom Detached
£700,000
Over Stratton, South Petherton

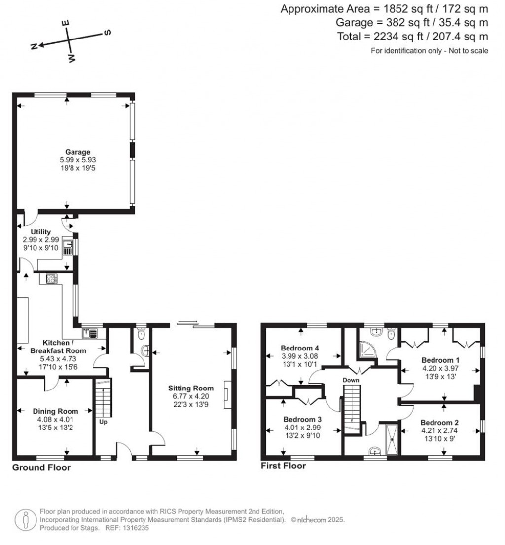
Floorplans For Over Stratton, South Petherton
EPC Graph for Over Stratton, South Petherton

Description


A Deceptively Spacious & Very Attractive Hamstone Village House with Large Gardens Extending to 0.53 acre, backing onto open fields with 4 Double Bedrooms, 2 Reception Rooms and a Double Garage. NO ONWARD CHAIN. EPC band C.

Situation - Butlers Lodge is located in the heart of the picturesque village of Over Stratton within walking distance of the thriving village pub, "The Royal Oak". There is a very active community spirit with many activities taking place at the village hall, there are also miles of footpaths in all directions to enjoy and explore the local countryside. South Petherton is a mile away with all of your day to day facilities, independent local shops, 'Holm' an acclaimed local restaurant, infant & junior schools, Doctors and veterinary practices. Access to the A303 is very close by and both Yeovil and Taunton are within an easy drive with mainline railway stations at Crewkerne, Yeovil, Castle Cary and Taunton.

Description - Butlers Lodge is an attractive detached Hamstone property built in the mid 1990s of traditional construction. There are feature mullion windows and gables to the front elevation under a double roman tiled roof. The property is fully double glazed with mains gas central heating throughout and over recent years the current owners have refitted the kitchen, utility and family shower room. The accommodation is deceptively spacious with a pleasing flow and the property is offered to the market in superb order throughout. On the ground floor the Kitchen/Breakfast Room is a very spacious room with the addition of two generous reception rooms. On the first floor there are 4 double bedrooms (1 en-suite) and a family shower room. The utility boot room links very nicely with the double garage and outside there is plenty of parking and turning on your private driveway. The garden is a real feature and is mainly laid to lawn and extends to 0.53 acre backing onto fields with beautiful flower and shrub borders.

Accommodation - A wooden front door with glazed side panels leads into a large and welcoming entrance hall with a door at the opposite end leading to the garden. Cloakroom with WC and wash hand basin. Door to the kitchen/breakfast room, a spacious, light and airing room recently refitted with modern shaker style wall and floor units with extensive work surfaces, sink unit and 2 large windows looking out into the garden. Integral dishwasher, fridge, washing machine, double oven, hob and extractor fan. Built-in corner seat with table which is ideal for breakfast. Door to utility/boot room with matching wall and floor units, sink and work surfaces, plumbing for washing machine and space for fridge and freezer and door to outside and double garage. The garage has 2 up and over doors, power, light, space for tumbler dryer and further appliances, 2 windows to the side, Worcester gas fired boiler and access to the loft above. There is a door from the kitchen to the dining room at the front of the property with plenty of room for entertaining. To the other side of the hallway is a lovely triple aspect sitting room, another wonderfully light room with a feature brick fireplace with heavy beam over and inset woodburning stove and stone hearth, feature ceiling beams and the most fabulous views from your armchair over your own garden to the countryside beyond. There are sliding patio doors to the rear terrace with a retractable awning over.

Stairs rise to first floor landing, another generous space with access to the insulated and partly boarded loft space and there is a useful shallow storage cupboard. The principle bedroom is at the rear of the property has rural views and a pair of built-in double wardrobes providing excellent storage and central dressing table. There is a door to the newly refitted en-suite shower room which is fully tiled with shower cubicle, wash hand basin and smart function WC with bidet wash function and towel rail. There are 3 further good double bedrooms, 2 with built-in storage and one housing the airing and linen cupboard, one is currently used as a study. The family shower room is very modern and has been fully re-fitted and tiled providing a large shower cubicle, WC, wash hand basin and towel rail.

Outside - To the front of the property is attractive Hamstone curved wall and behind an easy to maintain garden fully stocked with mature shrubs including a wonderful Hydrangea, lavender and numerous flowers providing colour all year around. A paved path leads to the front door with a large canopy porch over. To the side of the property and through wooden gates is a large private driveway of tarmac and gravel providing turning and parking for several cars leading to the double garage. To the side of the garage is a fabulous large and very private paved terraced wonderful for outside entertaining and having a BBQ. From here you have wonderful views of the garden and fields beyond. Useful log store. To the rear of the property is a sun terrace with circular and further flower borders, outside tap and access to the sitting room, back door and utility room.

The rear garden is very large, mainly laid to lawn and backs onto fields with a wonderful rural outlook, there are beautiful mature flower and shrub borders including dahlias and hydrangeas, a variety of established roses, a productive soft fruit garden with raspberries, blackcurrants, gooseberries together with apple trees and rhubarb. A gravel path winds through the borders and under a rose and clematis arbour to a private sitting area. There are 3 beautiful mature trees in the garden providing shade on the sunnier days. In all the garden extends to 0.53 acre and is a wonderful feature of Butlers Lodge.

Services - All mains services connected.
Gas Fired Central Heating.
Mobile availability : EE, Three, O2 and Vodafone (ofcom - some services may be limited)
Broadband availability : Standard and Ultrafast (ofcom)
Flood risk status : Very low risk (environment agency)

Viewings - Strictly by appointment through the Vendors selling agent, Stags, Yeovil Office. Telephone 01935 475000.

Directions - From A303 Hayes End roundabout at South Petherton take 2nd exit into Harp Road and after 50 yards turn left to Over Stratton. Follow the village road passing the village hall and just after the Royal Oak pub Butlers Lodge can be found on the Left Hand Side.

Stags

Stags

4/6 Park Road
Yeovil
Somerset
BA20 1DZ

+44 (0)1935 475000

Reference: 34009943

Request a viewing for this property

Simply fill out the form below or alternatively call us on 020 7839 0888

* Mandatory fields