5 Bedroom Semi-Detached
£300,000
Harborough Road, Dingley, Market Harborough

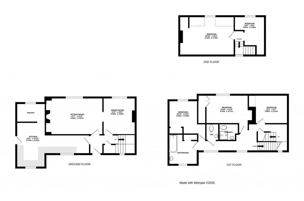
Floorplans For Harborough Road, Dingley, Market Harborough
EPC Graph for Harborough Road, Dingley, Market Harborough

Description


A fantastic opportunity to create a wonderful family home through modernisation, reconfiguration and extension throughout, subject to the usual planning consents. The property has a large south-facing rear garden, with open countryside views and a generous front garden with extensive driveway.

Accommodation - This property presents an excellent opportunity to modernise, extend, and reconfigure (subject to the necessary consents), offering the potential to create a spacious and contemporary family home in a desirable location.

The current accommodation is arranged over three floors and begins with an entrance hallway featuring an understairs cupboard for convenient storage. The breakfast kitchen sits at the heart of the ground floor and includes a small adjoining room, ideal for use as a pantry, utility space, or home office. The sitting/dining room is a generous open-plan space with an open fireplace and lovely views over the rear garden, providing a warm and welcoming area for family living and entertaining.

The first floor comprises three bedrooms, one of which benefits from an ensuite shower room. A separate family bathroom and an additional WC serve the remaining bedrooms, offering flexibility for a growing family. On the second floor are two further double bedrooms, each with ample space and natural light, ideal for older children, guests, or conversion into a home office or hobby room.

This well-positioned property offers significant scope for improvement and represents a rare chance to tailor a home to your personal needs and tastes, all within easy reach of Market Harborough's excellent amenities and transport links.

Outside - The property is set well back from the road, enclosed by a brick wall and featuring an extensive gravelled driveway that offers ample parking for multiple vehicles. Gated side access leads to a generous south-facing rear garden, complete with a mature apple tree, lawn, and paved patio areas, ideal for outdoor dining and entertaining. Beyond the garden are open fields and rolling countryside views, enhancing the sense of space.

Location - Situated east of the historic market town of Market Harborough, within a few moments' drive of the town's extensive facilities which include boutique shops, restaurants, bars, hotels, supermarkets, the award-winning Farndon Fields Farm Shop, and the train station (under the hour to St Pancras) Recreational facilities are plentiful in the area. Dingley Point-to-Point Races, golf, tennis, cricket, rugby and football in Market Harborough and the surrounding villages, as well as all country pursuits that can be enjoyed in the stunning local countryside and waterways, Pitsford Reservoir and Rutland Water are both close by for water sports, sailing and fishing enthusiasts.

There is a wide selection of state and independent schooling in the area including local village primary schools and for secondary education locally at Market Harborough and Kibworth, whilst notable private secondary schooling options are available at Leicester Grammar School, Uppingham, Oakham, Maidwell, Stamford and Oundle Schools.

Market Harborough train station (under 3 miles) offers access to London St Pancras from 55 minutes, making the area an excellent location for those wishing to travel regularly to London or Leicester for leisure or work purposes. the national road networks are easily accessible via the A6, A47, A14 and the M1 and the M6 providing access to London and Birmingham.

Property Information - Tenure: Freehold
Local Authority: North Northamptonshire Council (Kettering)
Listed Status: Not Listed
Conservation Area: No
Tax Band: E
Services: The property is offered to the market with mains water, drainage to a septic tank and electric storage heating.
Broadband delivered to the property: FFTP
Non-standard construction: Built 1950. Believed to be of standard construction
Wayleaves, Rights of Way, Easements & Covenants: Yes. There are restrictive covenants in the original 1991 sale that may limit how the property can be used or altered (e.g., not using it for business, making certain structural changes, etc.) These covenants are not detailed in the Land Registry Title Register.
Flooding issues in the last 5 years: None
Accessibility: Three storey dwelling. No accessible modifications to the property
Planning issues: None which our clients are aware of

Andrew Grant

13 Church Street
Market Harborough
Leicestershire
LE16 7AA

+44 (0)1858 410008

Reference: 34005322

Request a viewing for this property

Simply fill out the form below or alternatively call us on 020 7839 0888

* Mandatory fields