3 Bedroom Semi-Detached
£249,950
Church Walk, Bideford

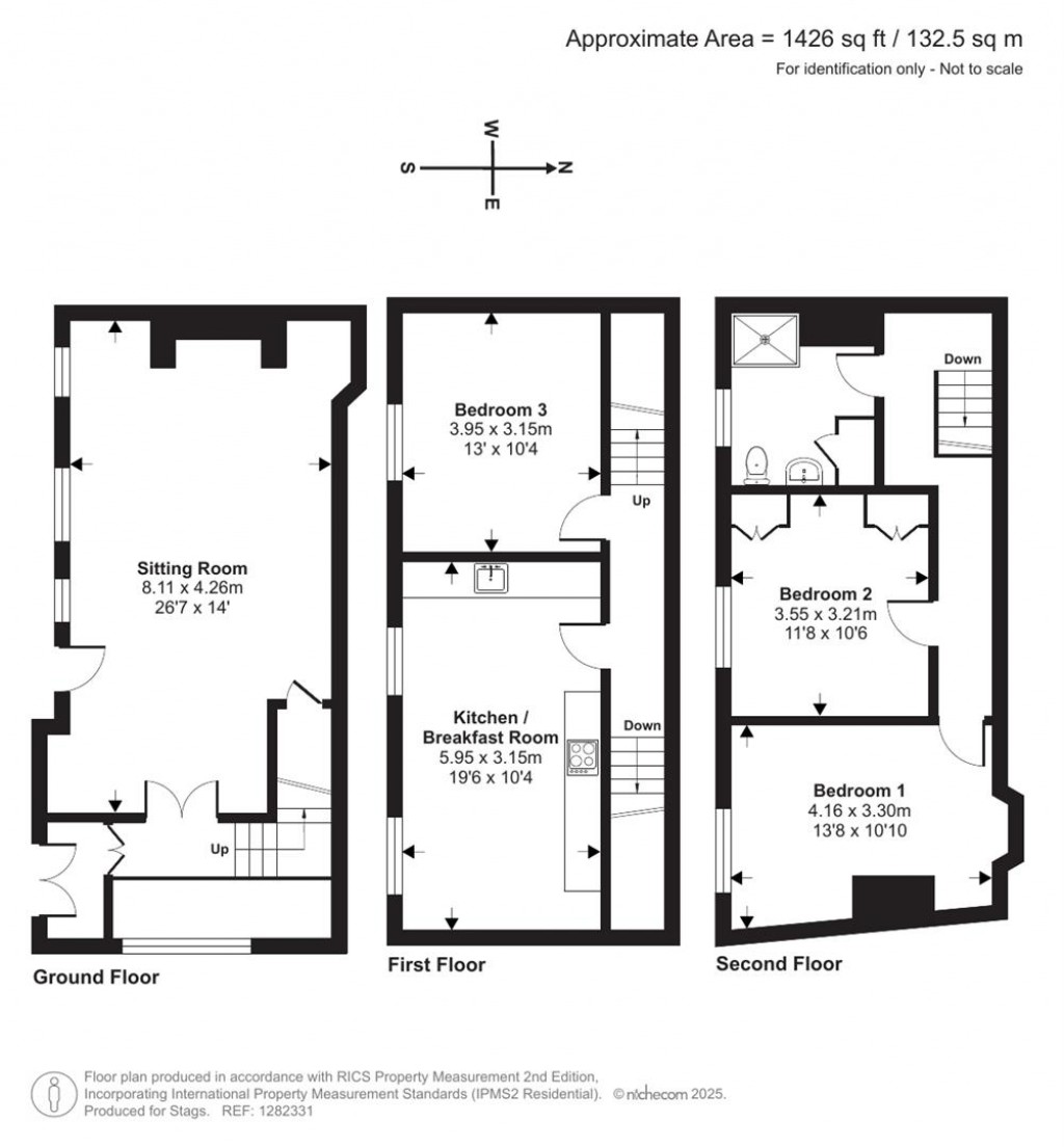
Floorplans For Church Walk, Bideford
EPC Graph for Church Walk, Bideford

Description


A historic Grade II listed townhouse situated within easy reach of the town centre, being offered with no onward chain. Three bedrooms, close to Bideford Quay, convenient for the coast. EPC rating D.

Situation - The property is situated within the port and market town of Bideford, on the banks of the River Torridge and offers a wide range of amenities within walking distance including various shops, butchers, pubs, restaurants, cafes and places of worship. Bideford has schooling for all ages (public and private), five supermarkets and shopping outlet and retail complex is nearby, with a range of popular brands.
There is also access to the Tarka Trail from Bideford, which affords superb walks and cycle rides, that extend beyond Torrington and Barnstaple. The popular friendly beach at Instow is around 3 miles away and the renowned coastal town of Westward Ho! is nearby which benefits from a three mile long safe and sandy beach which adjoins Northam Burrows Country Park and The Royal North Devon Golf Course, which is reputed to be the oldest links course in England. There are also a good range of amenities for its size, as well as access to the South West coastal footpath which affords excellent walks and stunning vistas of the rugged North Devon coast line.

The regional centre of Barnstaple is approximately 10 miles away and offers all of the areas main business, shopping and commercial venues. There are also good transport opportunities via the A361 Link Road which connects to the motorway network at Junction 27 of the M5 motorway or via the railway to Exeter.

Description - Set within a stones throw of Bideford's picturesque Quay is this beautifully preserved and tastefully updated Grade II listed, three bedroom townhouse brimming with character, whilst also showcasing a wealth of its original period features. Steeped in history, the property dates back to the 16th century and offers a rare opportunity to own a home that effortlessly marries traditional charm with modern-day comforts.

From the moment you step inside, the sense of heritage is unmistakable. The ground floor features a welcoming reception room that exudes warmth and character, complete with an original open fireplace - an ideal space for relaxing or entertaining.

Ascending to the first floor, you'll find a thoughtfully designed kitchen and breakfast room that combines rustic features with contemporary conveniences, providing a practical and inviting setting for daily living. Also on this level is a well-proportioned bedroom, offering flexibility as a guest room, study, or additional living space.

The top floor comprises two further bedrooms, each enjoying their own unique outlook and period details, along with a family bathroom that has been sympathetically updated to blend with the home's historic aesthetic.

Currently operating as a successful holiday let, the property offers an exciting investment opportunity or could be transformed into a delightful full-time residence. Situated close to the river, it benefits from a picturesque setting and easy access to local amenities, adding to its appeal as both a private home and an income-generating retreat.

Property Information - All mains connected. Gas fired radiator central heating.

Stags

Stags

4 The Quay
Bideford
Devon
EX39 2HW

+44 (0)1237 425030

Reference: 34004895

Request a viewing for this property

Simply fill out the form below or alternatively call us on 020 7839 0888

* Mandatory fields