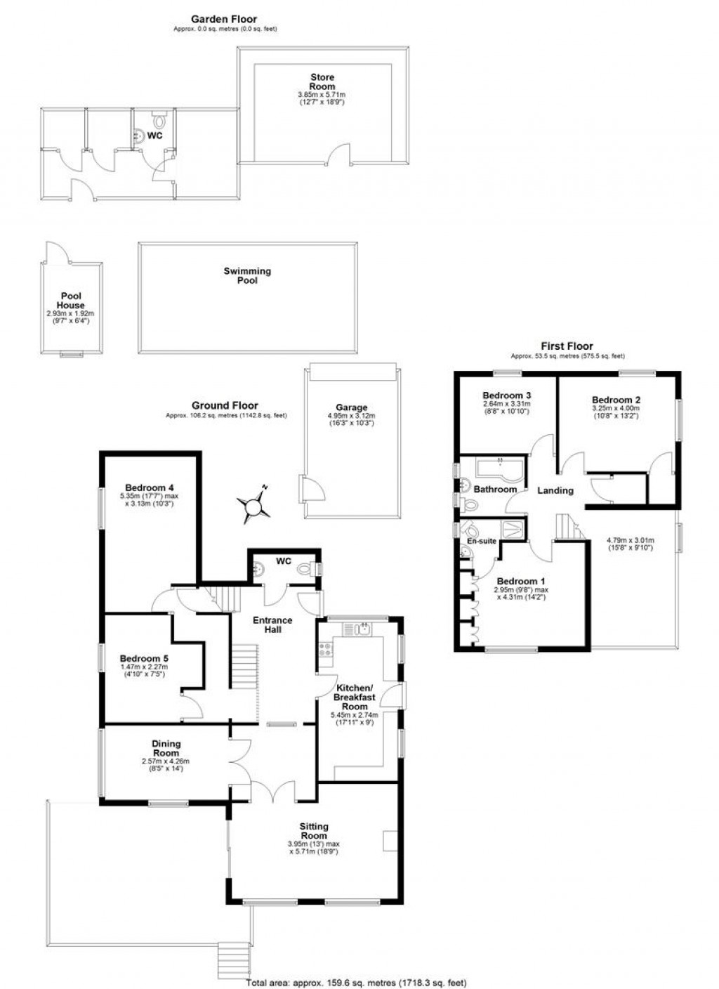
Description
An exceptionally spacious five-bedroom detached home with glorious south-easterly views, private gardens, and a heated swimming pool. Approximately 1,700 sq ft of accommodation arranged over three floors, Five double bedrooms, en suite shower room and family bathroom, Beautiful south-easterly views across Brixham and surrounding countryside, Heated outdoor swimming pool with retractable aluminium cover, Landscaped gardens with level lawn and generous decked terraces, Detached single garage and off-road parking for 2-3 vehicles, Freehold, Council Tax Band: F. EPC Band E
Situation - Pine Lodge is located in a peaceful and private setting on the edge of Brixham, approached via a shared private drive and enjoying a superb elevated position. The house enjoys expansive views to the south-east over the town and countryside beyond. The nearby coastal town of Brixham offers a wide range of amenities, including shops, schools, marina, and access to the South West Coast Path. Totnes and Torquay are within easy reach for rail and main road connections.
Description - This individual split-level detached home is thought to have been constructed in the early 1980s and has since been extended to provide exceptionally spacious and versatile accommodation, ideal for families or those seeking a coastal lifestyle with room to entertain. The house is arranged over three levels and is positioned to make full use of the spectacular south-easterly views.
A particular feature of the property is the outdoor heated outdoor swimming pool, surrounded by a sun terrace. A further decked area with glass balustrading is readily accessible from the reception rooms of the house-perfect for outdoor entertaining. The gardens, mainly situated to the rear, offer a great sense of privacy and space, with lawned areas. Under the house there are two useful basement storage areas.
Accommodation - From the entrance hall, a glazed timber door opens into a well-fitted kitchen with a range of base and eye-level units. Appliances include a Candy electric oven, Logic electric hob with an extractor over, together with space and plumbing for a dishwasher and washing machine, with space for a and fridge/freezer.
From the hall, double doors lead into the dining room and also through a further set of doors into the sitting room. This room which features a built-in gas fire and benefits from a large sliding patio door which leads out to a raised decked terrace with panoramic views.
A short flight of stairs leads to the upper level, where there are three well-proportioned double bedrooms and a family bathroom with shower over the bath. The principal bedroom includes fitted wardrobes and an en suite shower room.
The lower level, accessed via stairs from the entrance hall, includes two further double bedrooms. This floor offers flexible potential for guest accommodation or for home working.
Gardens And Grounds - The gardens are largely positioned to the rear of the house, laid out to maximise the stunning views. Pathways to either side of the house lead to the level lawn and the large decked entertaining space with glass balustrade overlooking the pool.
Beneath the house, doors lead to two basement/storage rooms-one of which was previously used as a gym/studio, while the other provides useful storage for garden machinery with a door to a WC.
The heated swimming pool measures approximately 7.3m x 3.5m and includes a retractable aluminium cover, allowing for extended seasonal use. Adjacent to the pool is a paved terrace, with steps leading down to building housing the separate gas fired boiler for the pool and its filtration system.
Behind a fence and wall at the bottom of the garden is a small strip of land which has previously been cultivated for vegetable growing with raised beds.
To the front of the house is a detached single garage with up-and-over door, and off-road parking for 2-3 vehicles.
Agents' Notes - The entrance drive is owned by Pine Lodge, with a right of access granted to the neighbouring property. Maintenance of the drive is understood to be the responsibility of the owner of Pine Lodge.
Services - Mains gas fired central heating, electricity and water. Private septic tank drainage. A separate mains gas fired boiler can be used to heat the pool.
Viewing Arrangements - Strictly by prior appointment with Stags on 01803 200160.