3 Bedroom Plot
£235,000
Cowes, Isle of Wight

Floorplans For Cowes, Isle of Wight Floorplans For Cowes, Isle of Wight

Description


Opportunity to acquire two fabulous building plots with planning consent for two spacious homes sat in over 1/2 acre, enjoying magnificent countryside views in a quiet sought-after location.

Building Plots, Pallance Lane - An attractive rural setting sat in over ? acre with stunning southwest facing views bordered on one side by mature native trees and natural hedging.

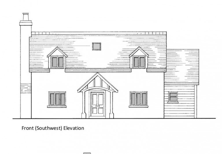
As shown on the plans the proposed two properties consist of a spacious hallway with built in storage cupboards, generous size open plan kitchen and dining area, utility room, downstairs cloakroom, large separate sitting room. First floor accommodation comprising 3 bedrooms with a generous master bedroom with ensuite bathroom and separate family bathroom. Off road parking and driveway.

The plots are located only 5 minutes' drive from the centre of Cowes and situated in a quiet position with access to walks in the surrounding countryside. There is a well-regarded sailing club in Gurnard, suitable for all the family, and the bay provides a great spot for an array of water-based activities such as sailing, paddle boarding, swimming and kite surfing.

Nearby Cowes is an internationally renowned sailing mecca with several marinas and yachting events throughout the year. The vibrant town provides a wider range of amenities on its popular high street, with an array of independent shops and restaurants, as well as a frequent passenger ferry service to Southampton with onward connections to London.

PLANNING permission granted under reference P/01577/17 in January 2019 and benefits from extant permission. Details can be viewed at https://publicaccess.iow.gov.uk/online-applications/search.do?action=simple&searchType=Application

TERMS Subject to a Section 106 Agreement

SERVICES We are informed that there are no services connected to the plot, however, we have been made aware that mains services are available within close proximity of the plot. An electricity connection quote has been obtained.

TENURE Freehold

LOCAL AUTHORITY Isle of Wight Council

POSTCODE PO31 8LT

VIEWINGS All viewings will be strictly by prior arrangement with the sole selling agents, Spence Willard.

1. Particulars: These particulars are not an offer or contract, nor part of one. You should not rely on statements by Spence Willard in the particulars or by word of mouth or in writing ("information") as being factually accurate about the property, its condition or its value. Neither Spence Willard nor any joint agent has any authority to make any representations about the property, and accordingly any information given is entirely without responsibility on the part of the agents, seller(s) or lessor(s). 2. Photos etc: The photographs show only certain parts of the property as they appeared at the time they were taken. Areas, measurements and distances given are approximate only. 3. Regulations etc: Any reference to alterations to, or use of, any part of the property does not mean that any necessary planning, building regulations or other consent has been obtained. A buyer or lessee must find out by inspection or in other ways that these matters have been properly dealt with and that all information is correct. 4. VAT: The VAT position relating to the property may change without notice.

Spence Willard

Spence Willard

Pimento House
Number One The Parade
Cowes
Isle of Wight
PO31 7QL

+44 (0)1983 200880

Reference: 33996332

Request a viewing for this property

Simply fill out the form below or alternatively call us on 020 7839 0888

* Mandatory fields