3 Bedroom Semi-Detached
£359,950
Chickerell Road, Chickerell, Weymouth

Description


COMING SOON - HAYNE'S PARK
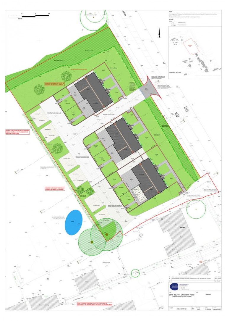
Plot 4 being one of 6 semi detached houses.

A brand new development of 6 three-bedroom semi-detached houses built to
an exacting standard by Highdean Ltd.

With very few opportunities to acquire a non-estate new home in a parkland setting built to these standards, these properties represent a unique opportunity.

The Property - Built using Hampton Rural multi red blend bricks with Dark Grey Marley Modern roof tiles. Highdean Ltd, known throughout Dorset for building high quality well thought out easy living homes using traditional materials and built by our own fully qualified trades people and regular well proven specialist trades.

Accommodation - The specification includes;

Triple Glazed ultra high efficiency UVPC windows
The latest high security PAS 24 composite entrance door
The new ultra modern high output Air Source Heat pump CH and ground floor underfloor heating
Solid Oak Veneered internal doors with polished stainless steel hinges and fitted with beautifully smooth action Italian door furniture.
A bespoke fully fitted kitchen either designed by the purchaser (subject to progress) or designed and built by Symphony kitchens famous for quality of build and luxury finish, Samples available. Kitchen floor to be finished in Grey Oak textured Laminate.
Bathrooms fully equipped with luxury fittings as shown on the block plan or samples available.
Hand made staircases by Stairway Joinery of Poole
Chamfered edge substantial Architraves and Skirtings with walls in White or to choice (subject to progress) and woodwork finished in Farrow and Ball Slipper Satin (off white/ivory)
Insulation standard to above and beyond all that has gone before
Internal lighting and socket outlets in abundance. (stair tread lighting optional)

Outside - Drive through the large imposing brick piers at the entrance off Chickerell Road either to the pathways accessing the front doors or carry on to the spacious drive and parking bays at the rear. Each property has a generous double parking space with EV charging point to hand.

Generous sized rear garden with open grassland to the rear and each benefits from extensive views across Weymouth and beyond.

To the rear is a vast open expanse of maintained lawn preserved for posterity as a wild life haven under a Section 106 agreement in favour of Natural England to ensure no future development possible guaranteeing an uninterrupted green landscape to the Fleet and Chesil Beach beyond.

Situation - The property is conveniently situated on the outskirts of the popular coastal town of Weymouth and close to the World Heritage Jurassic Coastline which includes the famous Chesil Beach which stretches along the coast to Lyme Regis.

Chickerell village is close by very much sought after with the area boasting a vibrant and active community with a wide range of amenities and facilities including both primary and secondary schools, a general store with Post Office Doctors Surgery, Chemist, Village Hall, Church, Chemist, two Public Houses, a Restaurant and Leisure centre with Gymnasium and 3G sports pitches. There are also two supermarkets within a short walking distance.

The World Heritage Jurassic Coastline is nearby with a network of footpaths which provide the opportunity to enjoy good coastal walks and breath-taking views along the Fleet Lagoon.

Weymouth town centre can be found within 2 miles and provides a wider range of shopping facilities, eateries, as well as a the sandy beach, picturesque inner harbour and a main line rail station providing links to London Waterloo and Bristol Temple Meads.

Directions - What3words///consumed.forecast.whistling

Services - Mains electric, water and drainage. Under floor heating to the ground floor with an Air Source Heat Pump central heating system.

Local Authority
Dorset Council Tel 01305 221000

Broadband- TBC
Mobile phone coverage- TBC

Material Information - Council tax band - TBC
EPC - TBC

The properties will include a 10-year Premier warranty.

The developer has informed us that the anticipated completion date for Plot 4 is December 2025.

Symonds and Sampson

Symonds & Sampson

7 Queen Mother Square
Poundbury
Dorchester
Dorset
DT1 3BY

+44 (0)1305 251154

Reference: 33995795

Request a viewing for this property

Simply fill out the form below or alternatively call us on 020 7839 0888

* Mandatory fields