5 Bedroom Detached
£1,100,000
Southleigh

Floorplans For Southleigh Floorplans For Southleigh
EPC Graph for Southleigh

Description


Spacious five-bedroom family home set in approximately five acres of private grounds, offering flexible accommodation and excellent potential for modernisation.

Situation - Set in an idyllic rural location amid the rolling hills and valleys of the East Devon National Landscape, the property enjoys complete privacy with no near neighbours. It offers exceptional peace and seclusion, yet lies just a short distance from the beach at the charming fishing village of Beer.

The coastal towns of Sidmouth and Lyme Regis are both within easy reach, as are the market towns of Honiton and Axminster, all just 15 to 20 minutes away. Local attractions include The Donkey Sanctuary, Wiscombe Park Hill Climb, and River Cottage HQ.

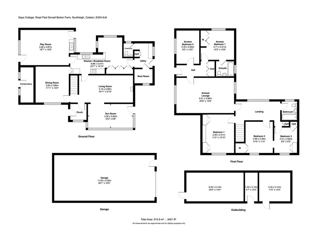
Description - The ground floor features a spacious sitting room leading into a bright, dual-aspect sun room overlooking the gardens. Additional reception spaces include a formal dining room, a playroom, and conservatory providing further living space with garden views. The kitchen/breakfast room is well-sized for family use, supported by a utility room, boot room and cloakroom.

Upstairs, the layout offers flexibility, with three bedrooms and a family bathroom accessed from the main landing. The principal bedroom leads to a further landing with two additional bedrooms, one with an en suite-ideal for guests or multi-generational living. A separate external entrance provides independent access to part of the upstairs accommodation, along with its own fenced patio and path to the main driveway-presenting excellent potential for a self-contained annexe, subject to the necessary planning consents.

While requiring updating, it offers significant potential to create a large family home in a desirable rural location.

Outside - Approached via a private driveway, this property benefits from ample parking and sits within a plot of just over five acres. The gardens are well-maintained and mainly laid to lawn with mature trees and shrubs, offering a peaceful and private environment. Of the five acres, just under three are private woodland, adding seclusion and privacy. A larger than average garage provides covered parking or secure storage, with an additional outbuilding offering versatile space and potential for further use.

Services - Mains electricity and water. Septic Tank. Oil fired central heating.
Standard broadband available. Mobile signal likely outside with Three Vodafone and O2 (Ofcom, 2025).

Directions - What3Words: ///civil.pints.newer

Stags

Stags

Bank House
66 High Street
Honiton
Devon
EX14 1PS

+44 (0)1404 45885

Reference: 33992583

Request a viewing for this property

Simply fill out the form below or alternatively call us on 020 7839 0888

* Mandatory fields