6 Bedroom Detached
£1,300,000
Southleigh, Colyton

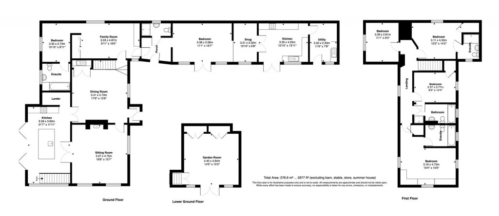
Floorplans For Southleigh, Colyton Floorplans For Southleigh, Colyton Floorplans For Southleigh, Colyton
EPC Graph for Southleigh, Colyton

Description


Discreetly Available - Charming period residence with multi-generational accommodation with glorious gardens, outbuildings and 8.5 acres. Adaptable accommodation with 4 en suite bedrooms, possible ancillary. Stables and farm building.

Introduction - This unique period home enjoys a superb rural yet accessible setting, offering a flexible arrangement of well-presented accommodation. The current owners have undertaken a comprehensive programme of sympathetic renovation, enhancing the character of the original flint stone building while introducing modern touches such as large, light-filled windows and striking bi-fold doors that open from the kitchen into the garden.

The property has been used as a delightful family home and has also operated as a Bed & Breakfast, occasional self-catering accommodation, and part-annexe for a relative. Its layout offers excellent versatility, whether as one substantial residence or divided for multi-generational living or income potential, as is currently the case.

Situation - Set in an idyllic rural location amid the rolling hills and valleys of the East Devon National Landscape, the property enjoys complete privacy with no near neighbours. It offers exceptional peace and seclusion, yet lies just eight minutes from the beach at the charming fishing village of Beer.

The coastal towns of Sidmouth and Lyme Regis are both within easy reach, as are the market towns of Honiton and Axminster, all just 15 to 20 minutes away. Local attractions include The Donkey Sanctuary, Wiscombe Park Hill Climb, and River Cottage HQ.

Accommodation - In the main part of the house, a spacious dining room features a cleverly designed breakfast cupboard tucked beneath the stairs. Double doors lead through to the striking kitchen, where a large slate-topped island takes centre stage. The room enjoys glorious dual-aspect views over the beautifully landscaped gardens, with bi-fold doors opening directly onto the outside space. The kitchen is fitted with bespoke cabinetry and offers space for a large fridge/freezer, electric ovens, and an LPG hob. A generous walk-in larder provides excellent additional storage. A staircase leads down to a lower ground floor garden room, perfect for use as a home office, studio, or further reception space.

The large, double-aspect sitting room is centred around a wood-burning stove, with double doors opening to the kitchen and a single door back into the dining room, creating a natural and sociable flow throughout the ground floor.

The remainder of the ground floor offers superb flexibility, as shown on the floor plan, and includes an en suite bedroom, a family room, a shower room, a bedroom/sitting room, a second kitchen area, and a utility room-ideal for multi-generational living or guest accommodation.

Upstairs, there are four well-proportioned bedrooms, all with attractive oak flooring. Two bedrooms benefit from en suite facilities, while the family bathroom features a 'Jack and Jill' layout, shared with one of the bedrooms.

Parking & Outbuildings - Accessed directly from the road, the property benefits from a generous gravelled parking area. The driveway continues down to a further gravelled area and a versatile steel-framed and timber-clad outbuilding, which includes a set of three timber stables and a tack room to the rear.

Gardens - The beautifully landscaped cottage gardens have been thoughtfully designed and divided into a series of distinct areas, linked by meandering paths. There are numerous inviting spots to sit and take in the peaceful surroundings, with an ever-changing display of colour and interest throughout the seasons.

The gardens also feature a large polytunnel, a fruit cage, and a second polytunnel, offering excellent scope for productive growing. A timber summerhouse with a raised decking area provides the perfect place to relax and enjoy the tranquil setting.

Pasture & Woodland - Slightly seperate from the gardens, by a small track/old Devon lane, there are a number of small paddocks, surrounded by mature hedge and tree-lined boundaries, running down to a small stream along the southern boundary, there is an area of deciduous trees and plants.

Services - Mains electric. Mains water. PV panels with Feed In Tariff. Private drainage system likely to need updating by the purchasers. Standard broadband via BT up to 30 Mbps. mobile signal outside with O2, Three and Vodafone (Ofcom)

Directions - What3Words Location ///tangent.tube.shots

Stags

Stags

Bank House
66 High Street
Honiton
Devon
EX14 1PS

+44 (0)1404 45885

Reference: 33973737

Request a viewing for this property

Simply fill out the form below or alternatively call us on 020 7839 0888

* Mandatory fields