4 Bedroom Detached
£595,000
Golberdon, Callington

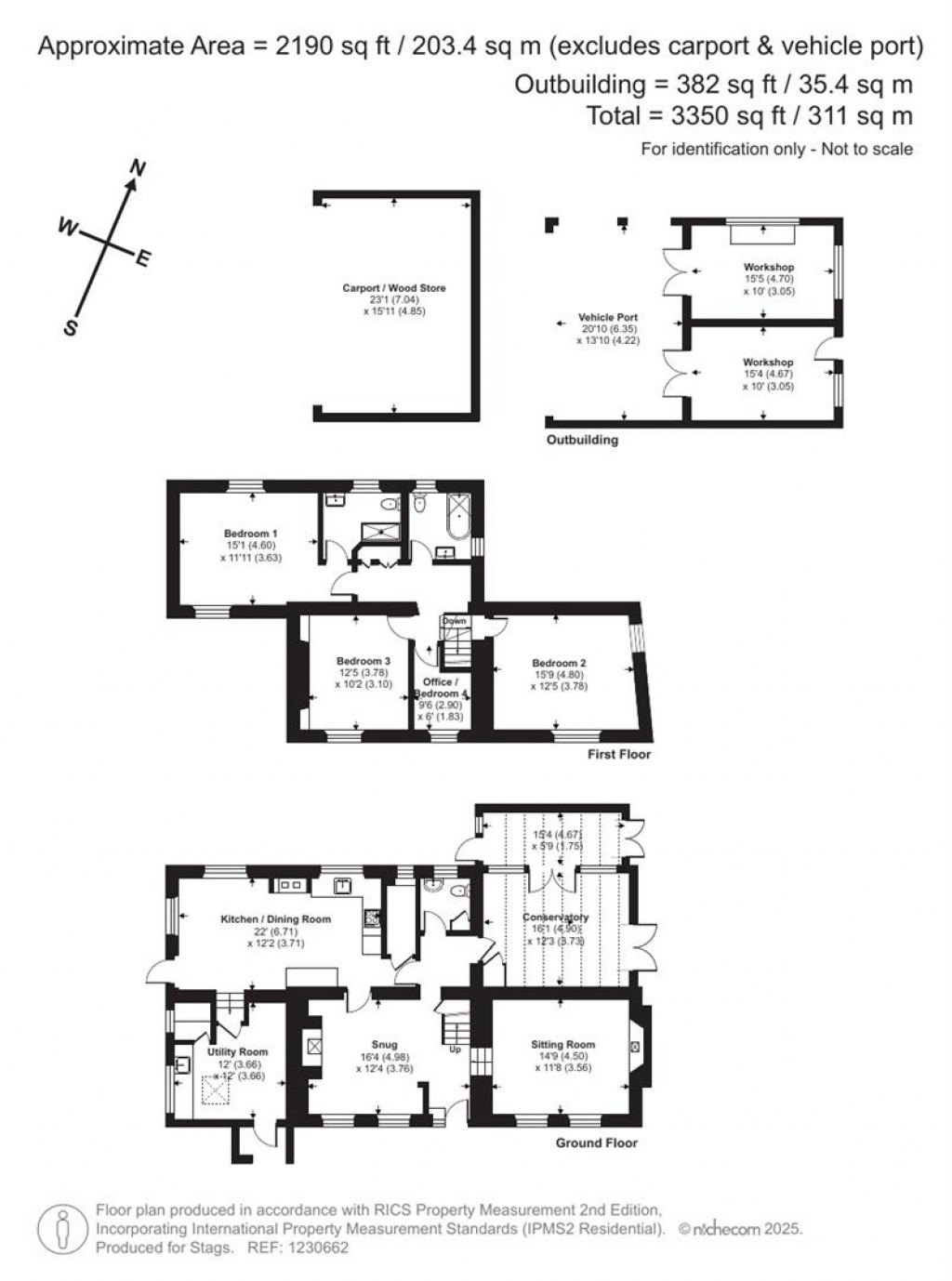
Floorplans For Golberdon, Callington
EPC Graph for Golberdon, Callington

Description


An impressive and well presented 4 bedroom home in a peaceful rural location and approximately 3.5 acres in all. Private rural location, Character 4 bedroom cottage, Mature gardens, paddock and woodland, Abundance of nature, Range of outbuildings, Approximately 3.52 acres in all, River frontage. Freehold, Council Tax Bands: F, EPC Bands: F.

Situation - The property is located near the village of Golberdon. The self contained moorland village of Pensilva is 2 miles away with its post office/village store, health centre and public house. The east Cornwall towns of Callington 3 miles and Liskeard 7 miles offer a range of amenities including shops, schools to A-level standard and doctors', dentists' and veterinary surgeries, which serve this widely based rural community. Liskeard enjoys a mainline railway station with regular services to London Paddington via Plymouth and Exeter. The vast expanses of Bodmin Moor around Caradon Hill, the Cheesewring, Minions and Henwood are within 5 miles and one can enjoy some of the Westcountry's finest walking and riding over this spectacular moorland. The city port of Plymouth is 15 miles distant with its mainline railway station, deep water marina and regular cross channel ferry serving northern France and Spain.

Accommodation - A delightful 4 bedroom cottage with uPVC double glazing offering a wealth of charm and character throughout including beamed ceilings, flagstone slate flooring and fireplaces to name a few. The accommodation comprises a kitchen / dining room, sitting room, snug, conservatory, utility room and cloakroom. The first floor offers 3 double bedrooms and a 4th bedroom/ office, with bedroom 1 benefiting from an ensuite shower room and views to the rear across the garden. The first floor is completed by a family bathroom and useful airing cupboard.

Outside - The property is accessed via a private driveway which leads to the cottage with a large gravelled parking area to the front and a timber framed car port and log store. The property's grounds offer mature gardens with areas of lawn, a range of plants, shrubs and trees and a terraced area with a pergola providing the ideal space for outdoor dining. In addition to the formal gardens there is a paddock and woodland with river Lynher frontage and fishing rights.
A large detached timber outbuilding offers additional covered parking with doors to two workshops with light and power connected.
The property extends to approximately 3.52 acres in all.

Services & Information - Mains electricity, private water via a well, private drainage via a septic tank. Oil fired central heating and wood burning stoves. Broadband availability: Ultrafast and Standard ADSL. Mobile signal coverage: Voice and Data limited availability (Ofcom). Please note the agents have not inspected or tested these services.

Given the nature of the property and its tranquil location alongside the river, although the property has a "Very Low" risk of flooding from rivers & sea, the property is shown to have a "High Risk" for surface water flooding. Previously, flooding has covered part of the rear garden, however the sellers have never experienced any water coming into the property during their ownership. For more information please contact the office and we advise buyers to also make their own enquiries.

Viewings - Strictly by prior appointment with the vendor's sole appointed agents, Stags.

Directions - What3words.com - ///sharper.wiggles.laugh

Stags

Stags

Kensey House
18 Western Road
Launceston
Cornwall
PL15 7AS

+44 (0)1566 774999

Reference: 33956209

Request a viewing for this property

Simply fill out the form below or alternatively call us on 020 7839 0888

* Mandatory fields