2 Bedroom Apartment
£425,000
Litchdon Street, Barnstaple

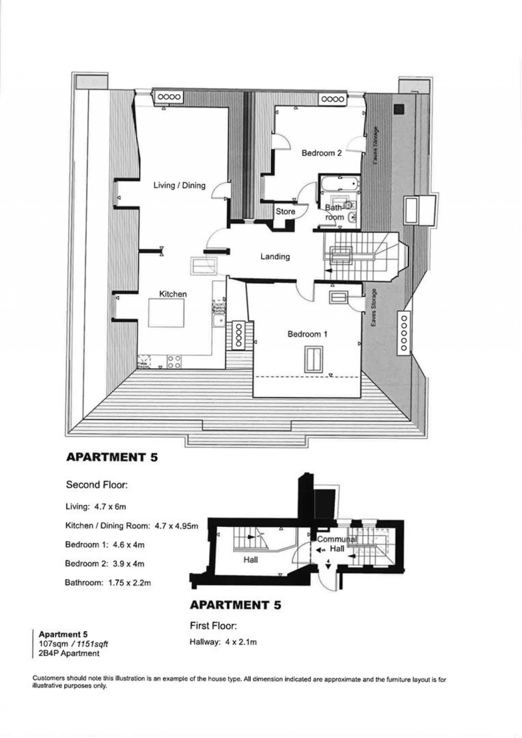
Floorplans For Litchdon Street, Barnstaple
EPC Graph for Litchdon Street, Barnstaple

Description


A newly converted penthouse apartment in elegant Grade II Listed villa overlooking the Taw River and close to the town centre. The stylish, contemporary accommodation, within a fine period shell includes; Hall, Excellent double open plan reception area/kitchen, 2 bedrooms, bathroom, allocated parking. Leasehold/Share of Freehold. Council Tax Band TBC. EPC B

Stags

Stags

30 Boutport Street
Barnstaple
Devon
EX31 1RP

+44 (0)1271 322833

Reference: 33942620

Request a viewing for this property

Simply fill out the form below or alternatively call us on 020 7839 0888

* Mandatory fields