6 Bedroom Detached
£925,000
Chulmleigh

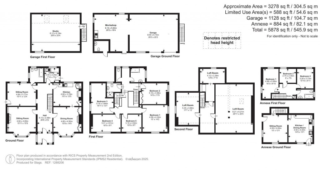
Floorplans For Chulmleigh
EPC Graph for Chulmleigh

Description


Set in stunning mature gardens and grounds, a superbly located and spacious period house requiring some modernisation along with a separate cottage and useful outbuildings. Main house with 2/3 receptions and 5/6 bedrooms, separate 3 bed cottage/annexe, excellent garaging, workshop and ancillary buildings. Fine views. Total about 1.83 acres. EPC Band F

Situation - Sydney House is set in a commanding and private position with no immediate neighbours and yet is only half a mile from the popular, small town of Chulmleigh. The town offers excellent day to day facilities including medical centre, post office, shops, church, chapel, primary and senior schooling and a popular 18 hole short golf course. The larger market town of South Molton is about ten miles and offers a further and wider range of amenities. The A361 (North Devon Link Road) is 11.5 miles away at Moortown Cross, making the property easily accessible to Tiverton and the M5 (J 27) where there is also Tiverton Parkway railway station on the Paddington line. The Cathedral City of Exeter is about 26 miles. The Exeter to Barnstaple railway, The Tarka Line, is less than two miles away at Kings Nympton Station and provides an hourly service. to both centres.
The North Devon regional centre of Barnstaple is 20 miles and offers an excellent range of shopping and recreational facilities. Both Exmoor and Dartmoor National Parks as well as the renowned North Devon coastline with extensive sandy beaches at Saunton, Croyde and Woolacombe are within easy reach by car.

Description - Of stone elevations with brick quoins under a slate roof, Sydney House is a large Victorian country house with well-proportioned rooms and high ceilings and classic features such as picture rails and decorative tiled flooring. The house does require modernisation throughout but does offer a fantastic opportunity to create a stunning family home.
The house is set in a large plot of highly attractive gardens and grounds with a very useful range of outbuildings and there is also an additional three bedroom dwelling/annexe which offers scope for a letting income or for multi-generational occupation.

The Main House - The front door leads onto an enclosed glazed entrance PORCH and a further door leads into HALL with a decorative tiled floor, stairs to first floor, under-stairs cupboard and door off to the principal ground floor rooms. The SITTING ROOM has a wide bay window and a fireplace with a wood-burning stove and an alcove to either side. The DINING ROOM also has a wide bay window, open fireplace with a marble surround and mantel and tall cupboards either side. The KITCHEN/BREAKFAST ROOM has a tiled floor and a recess with a Rayburn with a tall cupboard to the right, pine unit with stainless steel sink, electric cooker point and an airing cupboard. Returning to the hall, there is also a another RECEPTION ROOM, more recently used as a ground floor BEDROOM with a door to the outside and an EN-SUITE BATHROOM. The rear BOOT ROOM/UTILITY has a tiled floor, sink unit, plumbing for a washing machine and dishwasher and a door to the outside .

On the FIRST FLOOR is an impressive GALLERIED LANDING with doors off to FIVE DOUBLE BEDROOMS, a BATHROOM fitted with a panelled bath and pedestal wash basin, CLOAKROOM with WC and a SHOWER ROOM with a tiled shower cubicle, pedestal wash basin and WC.

A door and stairs lead up to the SECOND FLOOR where there is a LANDING with doors leading to TWO LARGE LOFT ROOMS and a further roof space.

The Annexe - The detached annexe cottage accommodation comprises a double aspect KITCHEN/DINING ROOM fitted with a modern range of units, sink unit, dual-fuel cooker point, plumbing for washing machine and dishwasher. The LIVING ROOM is also double aspect and has a door to the outside. A short flight of steps lead up to an inner LANDING with an airing cupboard and leads to 3 BEDROOMS (2 doubles and 1 single) and a BATHROOM fitted with a panelled bath with shower over, pedestal wash basin and WC.

Gardens And Grounds - Sydney House is set in large and highly attractive landscaped gardens and grounds. The primarily lawned gardens are thoughtfully laid out and feature low stone retaining walls many mature trees and are interspersed with colourful shrubs and well-planted flower beds. There is a delightful lower lawned garden area with a pergola and seating area and takes full advantage of the views from the property.
In total the property extends to about 1.83 ACRES.

Outbuildings - There is a very useful range of outbuildings at Sydney House comprising:
Detached DOUBLE GARAGE and WORKSHOP BUILDING, incorporating a CLOAKROOM and with a STUDIO/STORAGE on the first floor above the garage (dimensions on floor plan). A part concrete block DOUBLE GARAGE (23' x 17') with an attached, dilapidated POTTING SHED/GREENHOUSE (20' x 15'). To the rear of the site is a timber-framed, open-fronted BUILDING (56' x 16') with five bays and a store room (16' x 12'5"). In the western corner is an IMPLEMENT SHED (24' x 14') and set to the rear of the annexe/cottage is a dilapidated SHED/STORE (30' x 10').

Services And Further Information - Mains electricity and water, private drainage (compliance with General Binding Rules is unknown. Purchasers to satisfy themselves with their own inspection.). Oil-fired central heating via radiators to the house, LPG-fired central heating via radiators to the annexe.
Mobile - Likely outside from all major providers (Ofcom).
Broadband - Standard and superfast available (Ofcom).
Council Tax - House Band F, Cottage/Annexe Band A.

Viewing - Strictly by confirmed prior appointment please through the sole selling agents, Stags on 01769 572263.

Directons - From the A377 at Colleton Mills take the turning signposted to Chulmleigh. Stay on this road for just under one mile and the entrance to the property will be seen on the right.
What3words Ref: websites.boardroom.identify

Stags

Stags

29 The Square
South Molton
Devon
EX36 3AQ

+44 (0)1769 572263

Reference: 33941320

Request a viewing for this property

Simply fill out the form below or alternatively call us on 020 7839 0888

* Mandatory fields