2 Bedroom Terraced
£399,950
Uploders, Bridport

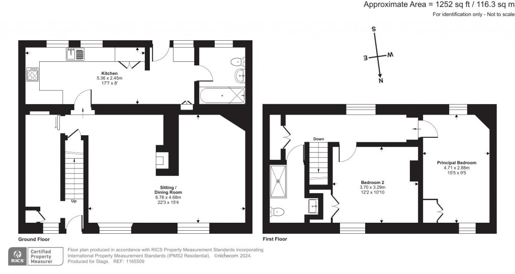
Floorplans For Uploders, Bridport
EPC Graph for Uploders, Bridport

Description


A picture postcard stone cottage with large south facing gardens in a sought after peaceful village in the beautiful Asker Valley. EPC: Exempt - Grade II Listed

The Property - Old Forge Cottage is a classic chocolate box double fronted stone period cottage in the highly desirable village of Uploders within easy reach of Bridport and the Jurassic Coast. As the name implies, it was formerly the Blacksmith's cottage to the adjoining Forge which closed in the late 1960's. It is estimated to date back over 250 years and is Listed Grade II of Architectural or Historic Importance. The cottage has attractive main walls of solid stone under thatched and slate roofs.

The many excellent features include: well equipped kitchen with beech fronted units and Neff appliances - electric oven, electric ceramic hob, cooker hood and integrated dishwasher - modern shower room with walk in shower, secondary double glazing to most of the windows, limestone flagstone flooring to the reception hall, living room and dining room, tiled flooring to the kitchen, bespoke oak barn door to the reception hall and living room.

There are a number of character style features including a window seat, beamed fireplace, picture rails and cottage doors. The accommodation is deceptively spacious, very well presented, well proportioned and from the first floor, enjoys lovely views over the gardens and the surrounding countryside.

The accommodation extends to:
Ground floor- large reception hall with display/book shelves, living room, separate dining room, kitchen/breakfast room and bathroom (potential to create a utility room).
First floor- large landing, two double bedrooms both with built in wardrobes and large shower room

Outside - There is on lane unrestricted parking.

The rear garden is a further big selling feature of the cottage being south facing, backing onto fields and having a generous depth. It is very attractively laid out and well stocked. Immediately adjoining the cottage is a sunken courtyard area and steps lead up to the main gardens which comprise large areas of lawn, interspersed with a wide variety of shrub and flower borders. Towards the far end is a timber shed/studio with terrace from where there are wonderful views over the village and the surrounding countryside, taking in the well known viewpoint of Eggardon Hill.

Situation - Old Forge Cottage is pleasantly located in the popular and peaceful village of Uploders which comprises mainly stone houses and cottages together with a Public House. The immediate locality is designated one of Outstanding Natural Beauty (AONB) and there is easy access to the surrounding lovely countryside. The village of Loders is only about 1 mile to the west and has a public house and popular primary school.

The thriving historic market town of Bridport is easily accessible and provides an excellent range of business, professional, shopping and leisure facilities. The stunning World Heritage Jurassic Coast is within only a few miles with superb coastal walks and bathing beaches. Burton Bradstock and the harbour of West Bay are both within about 4/5 miles. Dorchester is also nearby with London Waterloo mainline rail services.

Services - Mains water, drainage and electricity. Electric heating.
Broadband - Standard up to 0.7Mbps and Superfast up to 20Mbps.
Mobile phone service providers available are EE for voice and data services inside and EE, Three, O2 and Vodafone for outside.
(Broadband and mobile phone information taken from Ofcom website Results are predictions and not a guarantee. Actual services available may be different from results and may be affected by network outages).

Viewings - Strictly by appointment with Stags Bridport.

Directions - From Bridport, join the A35 east towards Dorchester and after about 2 miles turn right signed Uploders. At the next T-Junction turn right signed Uploders. At the next T-Junction turn right and under the bridge into the village. At The Crown Inn, turn right and Old Forge Cottage is after about 300 yards on the right.

Stags

Stags

29 South Street
Bridport
Dorset
DT6 4NR

+44 (0)1308 428000

Reference: 33938949

Request a viewing for this property

Simply fill out the form below or alternatively call us on 020 7839 0888

* Mandatory fields