Description
A charming detached family home in an impressive location, easily accessible both in and out of the town, set in an extensive plot. EPC Band: E.
Situation - The property is situated between Newton Abbot and Teigngrace with excellent road links via the A382 to the A38. Newton Abbot town centre is only a mile away with its wide range of amenities including; various shops, restaurants and cafes, supermarkets, hospital, primary and secondary schools, leisure centre and train station with main line links to London Paddington. Nearby is the A38 which provides speedy access to Plymouth, Exeter and the M5 beyond. Whilst Dartmoor National Park and the sandy beaches of Teignmouth and Torbay are only a short distance away.
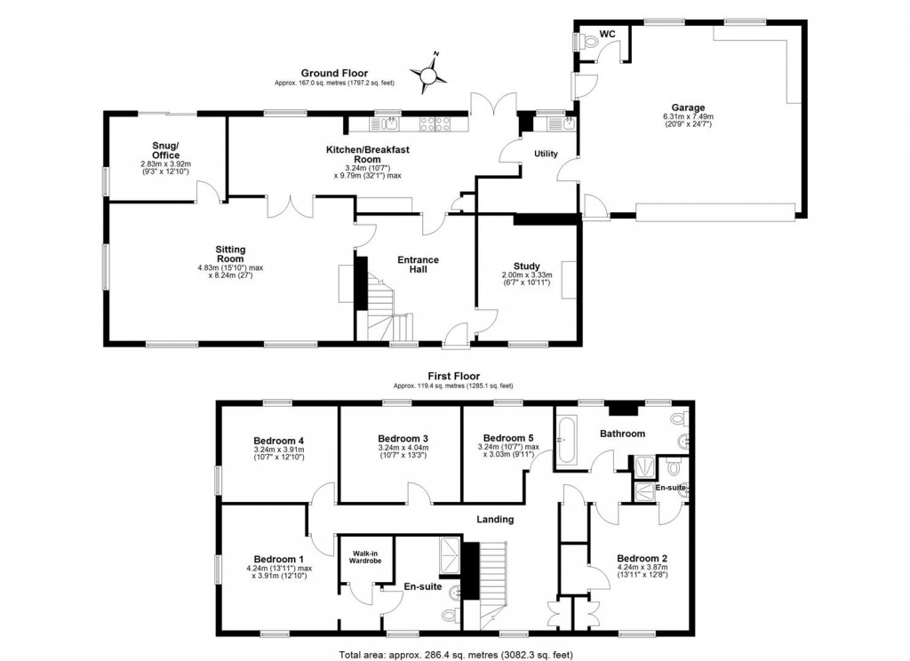
Description - Loady Park House is a superb example of a substantial period home offering comfortable family living on the outskirts of a major local town with good transport links. The property is well presented, yet it offers a wonderful opportunity for refreshment within its current guise. Situated across two storeys of accommodation, the space extends to 2995sqft that offers versatile reception rooms and five first floor double bedrooms Commanding an extensive plot, the property features plentiful parking towards the front accompanied by a double garage and a well maintained lawn garden to the rear.
Accommodation - A generous entrance hall sets the tone for this well-appointed home, offering excellent proportions throughout. The dual-aspect sitting room is a superb space for entertaining, featuring a fireplace creating a welcoming focal point. Adjoining the sitting room is a light-filled office with garden views and far reaching views -ideal for those working from home.
At the heart of the house is a spacious kitchen/breakfast room, fitted with a range of units, integrated appliances and ample room for a dining table. French doors open out to the rear terrace, making it perfect for indoor-outdoor living. A useful utility room with access to the garden through the garage offers further practicality, while a separate study provides additional flexibility-perfect as a snug or hobby room.
On the first floor, five well-proportioned bedrooms are arranged around a central landing. The principal bedroom benefits from a walk-in wardrobe and en suite shower room, while bedroom two also enjoys its own en suite. Three further bedrooms are served by a well-appointed family bathroom, completing the layout of this versatile and expansive home.
Outside - Loady Park House is set within beautifully tended gardens, offering a high degree of privacy and a tranquil rural outlook. The rear garden is laid predominantly to lawn with a wide selection of mature trees, flowering shrubs and established borders that provide seasonal interest and colour. A sun terrace just off the kitchen creates an idyllic spot for al fresco dining or morning coffee, with a secondary sunny patio at a lower level.
To the front, a gravelled driveway offers ample parking and a separate brick paved driveway which leads to a generous double garage with an up-and-over door. The entire plot is framed by mature hedging and enjoys far-reaching countryside views, creating an exceptional setting in which to enjoy outdoor living.
Services - Mains water and electricity. Private drainage. Oil fired central heating.
Local Authority - Teignbridge District Council, Forde House, Brunel Road, Newton Abbot, Devon, TQ12 4XX. Tel: 01626 361101. E-mail: info@teignbridge.gov.uk.
Viewings - Strictly by appointment via the agent.
Directions - From the drumbridges roundabout/A38, proceed towards Newton Abbot on the A382 for 2 miles passing Stover school and Plants galore. At the roundabout, take the third exit onto Ringslade Road signposted to Highweek, proceed up the hill for half a mile. At the top of the hill beside The Highweek Village Inn, turn left and follow the road to the left as it turns into Whitehill Road. Proceed down the hill for 400 yards and the entrance to the property can be found on your left hand side.
What3Words: ///wishes.rounds.hogs