3 Bedroom Cottage
£400,000
New Barns Road, Ely

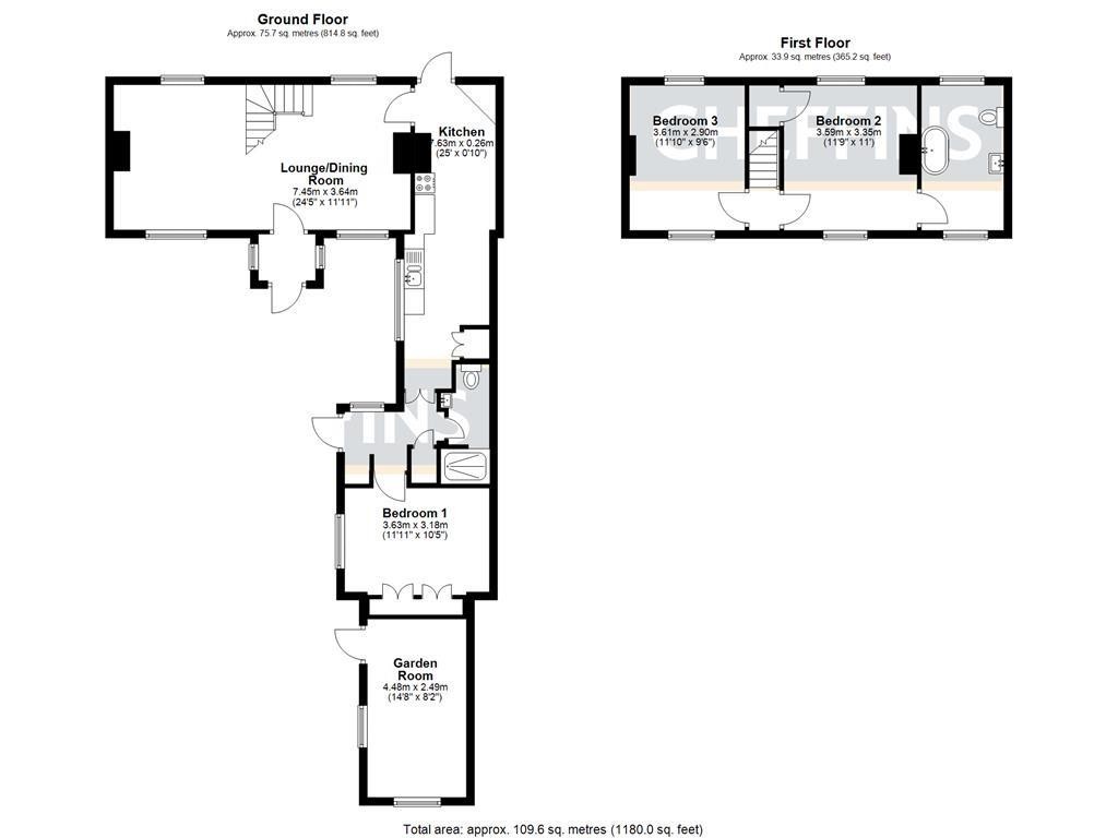
Floorplans For New Barns Road, Ely
EPC Graph for New Barns Road, Ely

Description


Cheffins are delighted to offer to the market this detached extended cottage, situated close to the centre of the City of Ely. The property comprises of lounge/dining room, kitchen, ground floor bedroom and shower room, 2 further bedrooms on the first floor, one having an ensuite bathroom. Outside there is an enclosed garden featuring mature shrubs and trees, as well as a workshop.

The property further benefits from solar panels with Tesla Power Wall 2 battery storage and is offered for sale with no upward chain.

*Note to buyers: Roof tiles are made from asbestos. The property does require work. Buyers to make their own enquiries.

Rear Hallway - With door to side, window to rear, under floor heating, airing cupboard housing hot water tank

Ground Floor Bedroom 3 - With window to side, fitted wardrobes, under floor heating,

Shower Room - Fitted with a low level WC, wash hand basin and walk-in shower, under floor heating

Kitchen - Fitted with bespoke base units with work surfaces over, 1 1/2 bowl sink unit with mixer tap, plumbing for washing machine and dishwasher, window to side, boiler cupboard. Leading through to the front door.

Lounge / Dining Room - With window to rear, door to rear, 2 windows to front, electric fireplace, stairs to the first floor.

First Floor Landing -

Bedroom 1 - With windows to front and rear, ornate fireplace, radiator.

Bedroom 2 - With windows to front and rear, over stairs cupboard, radiator. Door to:

Ensuite - Part finished. Fitted with a 3-peice suite comprising low level WC, wash hand basin and freestanding bath, windows to front and rear, 2 radiators.

Outside - The property fronts onto an unadopted road. The rear garden is enclosed and is mainly laid to lawn with vegetable patch, mature shrubs and trees and gated access at the rear. There is also a workshop with power and light connected and windows to front and side.

Agents Note - The property benefits from solar panels with Tesla Power Wall 2 battery storage.

The property also benefits from rainwater harvesting which we understand supplies the garden tap, the washing machine and the WC in the shower room

Viewing Arrangements - Strictly by appointment with the Agents.

Cheffins

Cheffins

25 Market Place
Ely
Cambridgeshire
CB7 4NP

+44 (0)1353 654900

Reference: 33935649

Request a viewing for this property

Simply fill out the form below or alternatively call us on 020 7839 0888

* Mandatory fields