4 Bedroom Detached
£795,000
Cornworthy

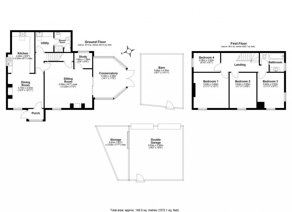
Floorplans For Cornworthy
EPC Graph for Cornworthy

Description


A charming and versatile former farmhouse dating back to 1830 with landscaped gardens, far-reaching views and excellent garage and parking, set in a peaceful South Hams village close to Dartmouth, Totnes and the coast. EPC Band: F.

Situation - The property is situated within the South Hams Village of Cornworthy close to the River Dart. Cornworthy occupies almost the entire length of two opposing valleys, there are fabulous walks around the village along the banks of Bow Creek and the River Dart and due to the village's secluded position a strong sense of community prevails.

The village is designated a conservation area due to its historic buildings and in an area of great landscape value. The village benefits from a friendly local pub, a stunning 15th century church and village hall, which holds a variety of social events.

Cornworthy enjoys great access to the Coast, with the coastal town of Dartmouth 7 miles away and the sandy beach of Blackpool Sands just 8 miles distant.

Description - Abbey View is a lovely detached period property, originally a farmhouse dating back to the 1830s with later additions. Well presented throughout, it enjoys an elevated position within this peaceful and highly sought after South Hams village and features good sized landscaped gardens with far-reaching views over Cornworthy and the surrounding countryside as well as a former stone barn. Unusual in this location is the substantial double garage fronted by a spacious parking area for several vehicles. Abbey View offers a rare opportunity to secure an attractive and versatile character home with excellent outdoor space, offering further potential if required and benefitting from easy access to the coast, Dartmouth, Totnes and the beautiful River Dart countryside.

Accommodation - The front door opens into a porch, which leads through to the dining room with a log burner at the front of the house. This room flows into the kitchen, which is well-fitted with a range of units and includes space for freestanding appliances. A skylight above brings additional natural light into the kitchen.

From here a doorway leads to an internal hallway providing access to the staircase and a utility room with sink, worktop, storage and plumbing for appliances. Beyond this is a ground floor shower room with WC and wash-hand basin whilst an airing cupboard also houses the boiler.

The sitting room, with dual-fuel log burner, is generously proportioned and leads into into the conservatory through glazed doors. A door connects to a study from the living area, ideal for home working. and also connects directly with the conservatory. The conservatory opens onto a garden terrace and provides an additional reception space.

On the first floor, the landing gives access to four bedrooms and a family bathroom. Three of the bedrooms are good-sized doubles and one is a comfortable single. The bathroom includes a WC, basin and bath with shower over. A loft hatch on the landing provides access to a large attic, offering potential for conversion, subject to the necessary consents.

Outside - The garden at Abbey View is a standout feature, thoughtfully landscaped and beautifully established to create a peaceful and highly attractive outdoor setting. Designed over a series of gently tiered levels, it combines paved terraces, mature planting, and carefully arranged borders that provide colour and interest throughout the seasons.

A raised paved terrace sits at the top of the garden, offering an elevated outlook across Cornworthy and the surrounding countryside. Meandering paths lead through richly planted beds filled with flowering shrubs and perennials, with sheltered spots ideal for outdoor dining or quiet enjoyment.

To the side of the property is a detached outbuilding, formerly a piggery, with power, water and partial insulation in place. This provides excellent potential for use as a workshop, studio or future conversion (subject to planning). The detached double garage, which sits beyond the garden, has twin doors and power connected plus an attached workshop/store. To the front of the garage is a parking area for multiple vehicles and to the rear a garden utility space with greenhouse and raised beds. A gateway provides access from the parking area to the gardens.

Services - Mains water, electricity and drainage. Oil-fired central heating.

Directions - From Totnes, take the A381 towards Kingsbridge. Before reaching the top of the hill, turn left signposted Ashprington and Cornworthy. Continue through Ashprington and Tuckenhay (or bypass Ashprington by turning right beforehand), and follow signs to Cornworthy. As you descend Abbey Road into the village, the property is located on the right-hand side.

Stags

Stags

The Granary
Totnes
Devon
TQ9 5GN

+44 (0)1803 865454

Reference: 33924886

Request a viewing for this property

Simply fill out the form below or alternatively call us on 020 7839 0888

* Mandatory fields