5 Bedroom Detached
£595,000
Popes Lane, Lapford, Crediton

Floorplans For Popes Lane, Lapford, Crediton
EPC Graph for Popes Lane, Lapford, Crediton

Description


No Onwards Chain. A well maintained and versatile 4-5 bedroom family home with beautiful gardens in a popular Mid Devon village. EPC: D.

Situation - This substantial family home is situated on a 'no through lane' on the fringe of the sought-after Mid Devon village of Lapford. The village has a good range of local facilities including a garage/store, 16th Century pub, 12th Century church, primary school together with a railway station on the Tarka line (Barnstaple to Exeter). Lapford is in the catchment of the much sought after Chulmleigh High School - No 2 in the league table of best Devon state schools.

Additional transport links include the bus route to Exeter and railway are just a short walk away. The large market towns of Crediton (10 miles) and Okehampton (12 miles) each have a more extensive range of day-to-day facilities including supermarkets, banks, secondary schooling and sports centres. The university and cathedral city of Exeter (17 miles) provides an extensive range of shops and facilities, as well as access to the M5 motorway and Exeter airport.

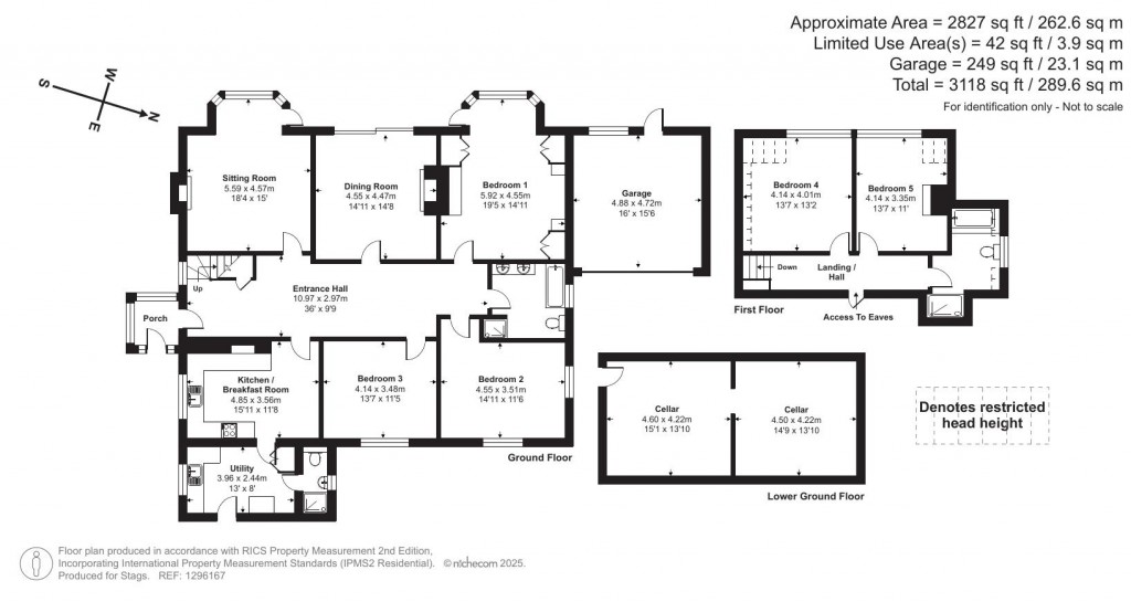
Description - Enjoying an elevated position with far-reaching views across the valley and towards Dartmoor, this substantial and characterful residence offers generous and flexible accommodation arranged over two floors. The property is approached via a welcoming front porch that opens into a central hallway, from which the principal ground floor rooms are accessed. The main sitting room is a real focal point of the home, featuring a handsome fireplace and an expansive southwest-facing bay window that frames the spectacular landscape beyond. Adjacent to this is a further reception room, also with a feature fireplace, offering a versatile space ideal for formal dining or additional living. One of the three double bedrooms on the ground floor is positioned beyond this room, enjoying its own bay window and exceptional views. Two further double bedrooms, a well-appointed family bathroom, a spacious kitchen/dining room, utility room and a shower room complete the ground floor. On the first floor are two additional double bedrooms, each benefiting from unique architectural lines created by intersecting roof angles and walls, giving a distinctive and charming character. Both rooms enjoy glorious south-westerly aspects. A second family bathroom serves this level, and there is easy access to a generous, boarded loft space offering excellent storage potential. The property also benefits from a walk-in cellar beneath much of the house, providing further useful storage or workshop space.

Gardens - Multiple doors from the property open directly onto a beautifully positioned south-west facing terrace, commanding uninterrupted rural views across the valley. Steps lead down from the terrace to extensive lawned gardens, interspersed with mature trees and well-stocked borders, which sweep around the property on two sides. At the front of the property, a brick-paved driveway provides ample private parking and leads to an attached double garage, offering convenience and practicality in equal measure.

Agents Note - Please note included with the property, there is recently lapsed planning planning permission for a four-bedroom dwelling. Designed to complement the existing house, the proposed new home features a striking gable end and extensive rear glazing to make the most of the same stunning views. If planning permission is reapplied for, this will offer the opportunity to develop a separate residence or to simply enjoy the existing grounds as an expansive garden space. Details of the planning permission can be found on the Mid Devon planning portal - Ref no. 22/02204/FULL

Services - Mains electric, water and drainage.
Oil-fired central heating
Woodburners in two reception rooms
Standard, Superfast and Ultrafast broadband available (Ofcom)
EE, Three, O2 and Vodafone network available (Ofcom)

Directions - From Exeter head north on the A377. Proceed through Newton St Cyres, Crediton and Copplestone. On reaching the village of Lapford take the 1st right and at the end of the lane take another right turn over the bridge and into the village. Carry on into the village taking the left on to Popes Lane. After a short distance Green Gables will be on your left.

What3words - widely.screen.film

Stags

Stags

21 Southernhay West
Exeter
Devon
EX1 1PR

+44 (0)1392 255202

Reference: 33921738

Request a viewing for this property

Simply fill out the form below or alternatively call us on 020 7839 0888

* Mandatory fields