3 Bedroom Terraced
£320,000
Town Marsh, Dulverton

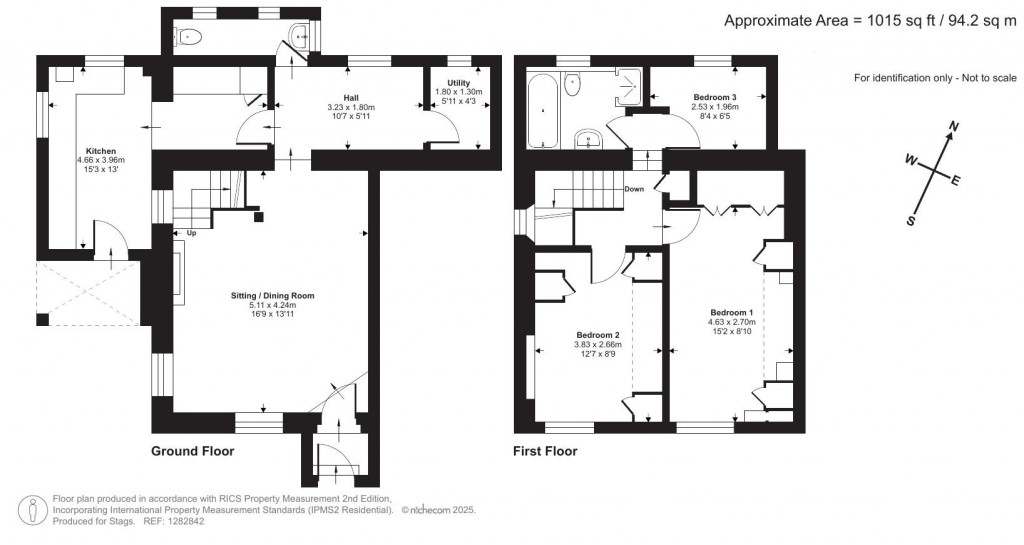
Floorplans For Town Marsh, Dulverton
EPC Graph for Town Marsh, Dulverton

Description


A character Victorian 3-bedroom cottage in a quiet situation just a short walk from the town centre with a garden and parking.

Situation - The property is tucked away in a quiet location but within easy walking distance of the amenities of central Dulverton town. Dulverton nestles in the Barle River valley enjoying many riverside walks and is known as The Gateway to Exmoor. The town has a strong community and provides good day-to-day shopping together with three churches, post office, chemist, medical, dental and veterinary surgeries and a well-supported town hall. In addition, there are good restaurants and recreational facilities including squash courts, all-weather tennis courts, football and cricket pitches.
Tiverton (14 miles) offers further shopping and entertainment facilities and the well-known Blundells School together with easy access to the M5 and mainline railway station at Tiverton Parkway. The university and cathedral city of Exeter (29 miles south) boasts a wealth of shopping, recreational and leisure facilities. To the east of the city, Exeter Airport offers national and international flights.
Situated within the Exmoor National Park, the property is ideally located to take advantage of the extensive walking. The North Devon coastline has an excellent range of beaches from which to enjoy numerous water sports, whilst Wimbleball Lake is just 6 miles away.

Description - This charming stone cottage thought to be of 19th Century origin is an exciting opportunity for someone looking for a property so close to the town. It benefits from double glazing, off road parking and a garden. It is equally suited as a full-time residence or as a retreat for holidays and weekends.

Accommodation - The front door leads into a enclosed porch. The good-sized double aspect sitting room is a cosy room with a beamed ceiling, window seat and a feature brick fireplace with beam over and inset with a wood burning stove. The kitchen is fitted with a range of cupboards with work surface over and integral oven and hob. A door leads out to a covered porch area. Leading off the sitting room is a rear hall with a window which could be used as a study or incorporating into the kitchen to provide a dining area. A door from the hall leads to a useful room which has plumbing for a washing machine and there is also a cloakroom.
Stairs lead up to the landing giving access two double bedrooms, both with a fitted wardrobes and views to the front. There is also a good-sized single bedroom and a family bathroom, fitted with a bath, separate shower cubicle, WC and hand basin.

Outside - The cottage style gardens are a real feature of the property with terrace flowers beds, shrubs, fruit trees, paths and a gate to the lane. At the top of the garden is a further parking space with a gate to the garden. To the front is a small garden area.

Services - Mains water, drainage and electricity. Ofcom predicted broadband services - Standard: Download 18Mbps, Upload 1Mbps, Superfast: Download 80Mbps, Upload 20Mbps. Ofcom predicted mobile coverage for voice and data: Internal (Limited Coverage) - EE (Likely Coverage) O2 and Vodafone. Outdoor (Limited coverage) -Three (Likely coverage) - EE, O2 and Vodafone. Ofcom 2025.

Local Authority: Somerset Council.

Agents Note - There is a flying freehold over the property from No7. There is also a right of way by foot to side of the property for No7.

Viewing - Strictly by appointment with the agents please.

Directions - From the centre of Dulverton proceed up High Street until you reach Stanbury's garage, bear left immediately into Town Marsh and as the lane narrows, pass through the wooden five bar gate on the right, leading into a gravelled area where you will find the cottage on the left.

What3words - ///slimmer.bandaged.subway

Stags

Stags

13 Fore Street
Dulverton
Somerset
TA22 9EX

+44 (0)1398 323174

Reference: 33882663

Request a viewing for this property

Simply fill out the form below or alternatively call us on 020 7839 0888

* Mandatory fields