2 Bedroom Detached
£1,150,000
East Down, Barnstaple

Floorplans For East Down, Barnstaple Floorplans For East Down, Barnstaple
EPC Graph for East Down, Barnstaple

Description


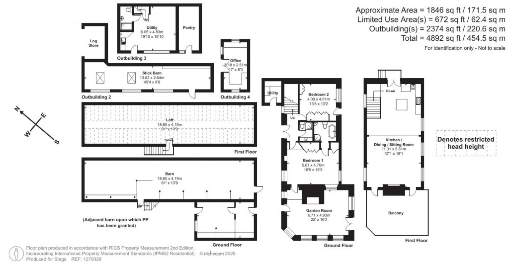
An unusual opportunity to purchase a superb detached 2 bedroom period barn conversion set in 23.49 acres of mainly pasture, together with a cluster of period buildings, one of which is an adjacent detached period barn upon which planning permission has been achieved for a linked 3 bedroom wing conversion. The position is timeless & tranquil and the views, simply stunning. EPC Band D. Council Tax Band E. Freehold.

Situation & Amenities - Ashelford Farm enjoys the best of all worlds, being in a timeless and tranquil Hamlet, off a quiet little-used country lane, with magnificent views towards Exmoor, yet is within easy access of Barnstaple, the North Devon Link Road, the coast and Exmoor itself - all within about 15/20 minutes by car. The village of East Down is approximately 7 miles North of Barnstaple, and offers a popular local pub/restaurant. The rugged North Devon coastline, together with the resorts of Combe Martin and Ilfracombe are readily accessible and the glorious sandy surfing beaches to the West at Croyde, Saunton (also with Championship Golf Course), Putsborough and Woolacombe are within easy reach. As the regional centre, Barnstaple offers the area's main business, commercial, leisure and shopping facilities, as well as its historic Pannier Market, theatre and district hospital. From Barnstaple, the Link Road leads on in a further 45 minutes or so to Jct.27 of the M5 Motorway and where Tiverton Parkway offers fast service trains to London Paddington in just over 2 hours. The area is well served by excellent state and private schools, which include the well-regarded West Buckland school within easy commuting distance. The nearest international airports are at Bristol and Exeter.

Description - The principal dwelling, which is a most attractive and unusual detached barn conversion, is reputed to date from around 1700, but converted in the year 2000 by the current owners. The property presents elevations of stone with double glazed oak framed windows and doors, some of which are arched, all beneath a slate roof. The barn provides rustic accommodation arranged over two storeys and on a reverse living basis, and has been sympathetically converted to combine period features with 21st Century refinements. The First Floor is accessed at drive level, directly into the magnificent Reception Kitchen area, which is the 'wow' factor of the property, with its high vaulted ceiling, and access to a fabulous south facing sun balcony from which there are breathtaking views across the majority of your own land towards Arlington and Exmoor in the distance. At Ground Floor level, the Master Bedroom has an ensuite and delightful garden room off. Bedroom 2 has a wet room adjacent. Below the house is a detached character outbuilding, currently arranged as an office with kitchenette and wood burner. Adjacent to the drive is a detached single storey building, currently utilised as a laundry room with shower/wc and adjacent but separate large walk-in larder. The combined space could provide ancillary accommodation subject to planning. Closest to the main house is a charming detached two storey period former stable block, also in stone with arched apertures and slate roof. Planning permission was granted on 6/5/25 by North Devon District Council under Planning Reference 79709 for 'Part demolition, alteration, extension and refurbishment of an outbuilding to form an extension to an existing residential dwelling (C3) including associated works (amended plans)'. The proposed accommodation would provide - on the Ground Floor: ENTRANCE HALL, UTILITY ROOM, 3 BEDROOMS AND 2 BATHROOMS. On the First Floor: a glazed link to the existing dwelling, LIVING ROOM, through DINING ROOM/FAMILY ROOM/KITCHEN. The accommodation could potentially be reconfigured to suit a prospective buyers' requirements. Furthermore, if a purchaser opts to convert this barn, there will then be potentially five bedrooms across both structures, suitable as one large family property or for dual occupation by parts of the same family. There is yet a further period outbuilding, a driveway which provides extensive parking and scope for constructing garaging (subject to planning permission). There are well-tended and interesting gardens with water features. The land is primarily laid to permanent pasture, but probably includes about 2-3 acres of garden/drive etc. All in all, the options at Ashelford Farm provide for those seeking a smaller property (in terms of bedrooms) with land, in a wonderful but accessible rural position, but there is also a rare opportunity to create your own 'Grand Design', whilst being in situ to project manage the next phase in the development of the property. For those interested in land for protection, but without an actual use for it, the vendors have an existing arrangement with a local farmer, whose stock graze the land, which could probably continue subject to a buyer's requirements.

Accommodation - FIRST FLOOR The splendid open plan SITTING/DINING ROOM/KITCHEN (in three distinct zones) has windows on all four elevations, allowing light to flood into the room, which has a high vaulted ceiling with exposed 'A' frames and timbers. First comes the KITCHEN zone, with Butler sink set in slate worktops and moveable island unit, Lacanche cooker with LPG burners and dual fuel ovens, ash flooring throughout the area, which leads through to the DINING zone and step down to the SITTING zone, which features a stone fireplace with fitted wood burner. To the right of this is a glazed doorway leading to a massive BALCONY with glass balustrading and composite decking, enjoying the same views as the reception area, as well as a delightful outlook over the gardens and pond below. Returning to the RECEPTION AREA, a stone staircase leads to the Ground Floor, where there are two DOUBLE BEDROOMS - both benefitting from fitted wardrobes and cupboards. The larger MASTER BEDROOM cleverly incorporates a bespoke fitted four-poster bed with canopy and curtains, dual aspect windows again afford views and there is a charming ENSUITE BATHROOM with 4-piece suite including a statement period roll-top bath. Unusually, from this bedroom a door leads to a GARDEN ROOM, with feature stone fireplace, fitted wood burner, attractive arched doors/windows throughout, as well as polished slate flooring.

Outside - The gardens and grounds have been created over the last 25 years by the current owners as a labour of love. They are beautifully landscaped with well-tended lawns, a lovely spring-fed pond with specimen plants which surround including gunnera, banana tree and tree ferns. Various pathways meander through the further gardens, which include a rhododendron garden, vegetable garden with raised beds and a further area with soft fruit cages. There is a charming DETACHED OFFICE with power, light, sink and amenities, with wood burner and adjoining STORE which could potentially be adapted into a CLOAK/SHOWER ROOM, subject to planning permission. The vendors have adapted a store to the front, which they use as a LAUNDRY/UTILITY ROOM, where there is a SHOWER ROOM and the floor above again offering scope for additional accommodation subject to planning permission. An adjoining WORK STORE could be incorporated if required. There is a long, narrow 'STICK' BARN - ideal for storage, workshops, etc.

Services - Private borehole water. Mains electricity. Private drainage. Oil-fired central heating. Airband broadband. According to Ofcom, there is limited mobile signal. For further information please visit https://checker.ofcom.org.uk/

Special Note - There is no upward chain as the vendors intend to move to The Tallet, the neighbouring property, which has its own separate drive access. They will be retaining a period stone barn, which is attached to the 'Stick' Barn but there is a covenant in place preventing this from being converted to a dwelling.

Directions - W3W//////wonderful.princely.solid
Leaving Barnstaple on the A39, pass through Shirwell and after about a mile bear left signed Churchill. Follow this road for about 1 ? miles and at the bend in the road bear right signed Churchill. Keep to the right and the access to Ashelford Farm will be found after about 1/3 mile on the right-hand side.

Stags

Stags

30 Boutport Street
Barnstaple
Devon
EX31 1RP

+44 (0)1271 322833

Reference: 33872932

Request a viewing for this property

Simply fill out the form below or alternatively call us on 020 7839 0888

* Mandatory fields