4 Bedroom Detached
£750,000
Jubilee Road, Totnes

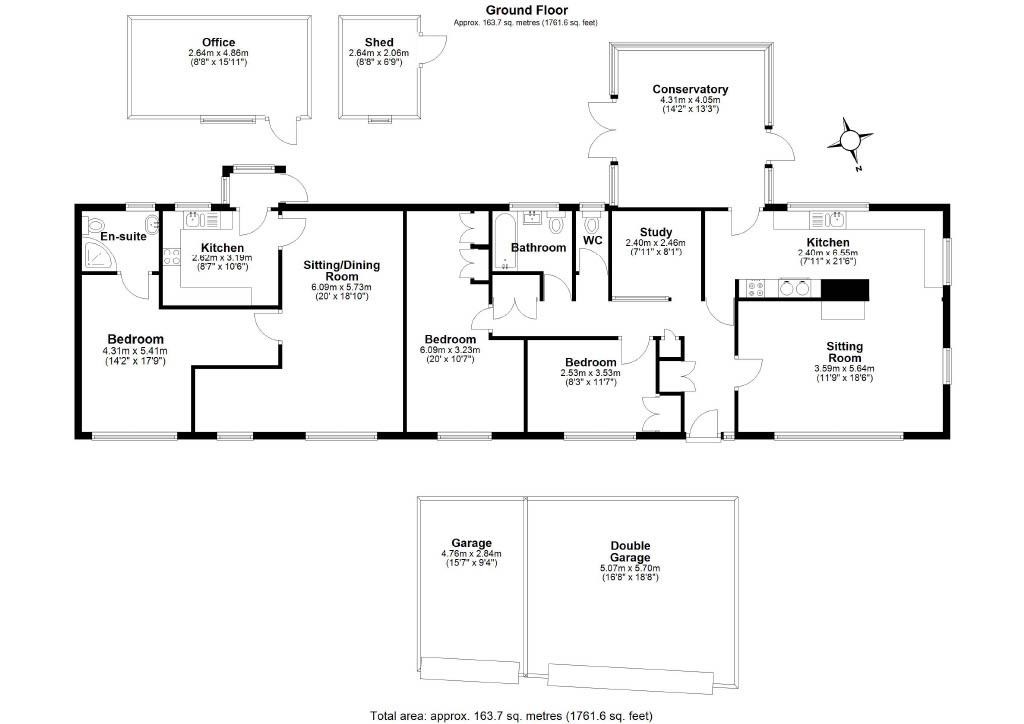
Floorplans For Jubilee Road, Totnes
EPC Graph for Jubilee Road, Totnes

Description


A substantial detached home with self-contained annexe, triple garaging and development potential, occupying an enviable position on one of Totnes' most prestigious roads. EPC Band: D.

Situation - Located in the highly sought after Jubilee Road of Totnes, a bustling Elizabethan market town full of interest with a wide range of good local schools, shopping facilities and recreational pursuits including indoor swimming pool and boating opportunities on the River Dart. The A38 Devon expressway is approximately 6 miles away, allowing speedy access to the cites of Exeter and Plymouth and the country beyond. Main line rail links to London Paddington are also located in Totnes. The property is situated within easy walking distance of shop, cafes, restaurants and the River Dart.

Description - Occupying an elevated position on Jubilee Road-one of Totnes' most sought-after residential addresses-Jubilante offers a rare combination of space, flexibility and future potential. Set in just under a quarter of an acre, the property enjoys exceptional views, wraparound gardens and a substantial footprint of over 1,760 sq. ft, with additional garaging and outbuildings.

This versatile single-storey home is perfectly suited for multi-generational living, those seeking a home with annexe accommodation or buyers looking for a prime plot with scope for comprehensive redevelopment, subject to the necessary planning consents.

The property includes a self-contained annexe, three bedrooms in the main residence, a conservatory, two reception rooms, a triple-width garage, and extensive outside space. The elevated setting provides panoramic countryside views towards Dartmoor and the surrounding hills, further enhancing its appeal.

Accommodation - The accommodation is arranged across a broad footprint, with the living spaces and bedrooms enjoying natural light and flow throughout. A central entrance hall leads into a spacious dual-aspect sitting room with large windows framing the spectacular countryside views and an open stone fireplace creating a warm focal point.

The kitchen wraps around the rear of the property and includes integrated appliances, an AGA, and access to a large, bright conservatory offering excellent versatility for dining and entertaining. A separate snug or second reception room sits at the far end of the house.

There are two main double bedrooms, both with attractive views, alongside a study and family bathroom with a separate WC. The principal bedroom includes built-in storage.

To the rear of the property is a fully self-contained one-bedroom annexe with its own independent access, as well as a self-contained attic, also independently accessible. kitchen, living/dining room, and spacious double bedroom with countryside views-ideal for guests, dependent relatives or potential rental income.

Outside - The gardens wrap around the property and have been designed to make the most of the elevated position and far-reaching views. The south-facing front lawn is bordered by mature planting and hedgerows, while a large circular patio and tiered seating areas provide excellent space for entertaining and outdoor living.

A feature pond with surrounding shrubbery adds charm and interest to the rear garden, and a timber garden shed offers useful external storage.

The lower part of the plot accommodates a detached garage complex with a double garage (5.07m x 5.70m), a single garage/workshop (4.76m x 2.84m), and a short drive with parking. The positioning and scale of the lower plot offer clear potential for reconfiguration or redevelopment, subject to planning.

Services - All mains services connected. Gas fired central heating. According to Ofcom, ultrafast broadband and likely mobile coverage available.

Directions - From the bottom of Totnes, cross the old bridge over the River Dart. At the T-junction, turn right onto the A385. Take the second left onto Bourton Road, then the first right onto Jubilee Road. Jubilante will be found on the right-hand side after approximately 250 yards.

Stags

Stags

The Granary
Totnes
Devon
TQ9 5GN

+44 (0)1803 865454

Reference: 33871929

Request a viewing for this property

Simply fill out the form below or alternatively call us on 020 7839 0888

* Mandatory fields