5 Bedroom Plot
£395,000
Church Lane, Debden, Saffron Walden

Description


An opportunity to acquire an individual building plot with full planning permission for a stylish detached dwelling with double garage. The plot is located in a tucked away location within a sought-after village.

Planning Permission - Full details can be found on the Uttlesford Planning website under reference UTT/23/0637/FUL.

Description - An opportunity to acquire a building plot with PLANNING PERMISSION for a detached dwelling offering accommodation of circa 3,800 sqft plus a double garage. The plot is set in a tucked away location, down a quiet lane within this sought-after village.

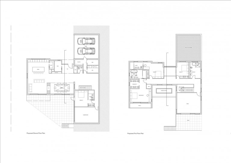
Proposed accommodation comprises:

Ground floor - entrance hall, an impressive open plan kitchen/dining/living area with an adjoining pantry, snug/library, utility room, study, boot room and boiler room, bedroom with en suite facilities.

First floor - spacious landing, principal bedroom with balcony, dressing room and en suite bathroom, bedroom 2 with en suite shower room, bedroom 3 and family bathroom, further large reception/bedroom.

Outside there is provision for ample parking with a double garage and gardens to the rear and side.

Agent's Notes - .Tenure - Freehold
.Council Tax Band - n/a
.Property Type - Building Plot
.Property Construction - n/a
.Number & Types of Room - Please refer to the floorplan
.Square Footage - circa 3,800 sqft
.Parking - Double garage and driveway
UTILITIES/SERVICES
.Electric Supply - To be connected
.Water Supply - To be connected
.Sewerage - To be connected
.Heating - n/a
.Broadband - Fibre to the Property available in area
.Mobile Signal/Coverage - OK

.Flood risk - Very low
.Restrictions - See conditions applied to the approved planning

Viewings - By appointment through the Agents.

Cheffins

Cheffins

Hill Street
Saffron Walden
Essex
CB10 1JD

+44 (0)1799 523656

Reference: 33791921

Request a viewing for this property

Simply fill out the form below or alternatively call us on 020 7839 0888

* Mandatory fields