4 Bedroom Detached
£679,000
Nuneaton Road, Mancetter, CV9

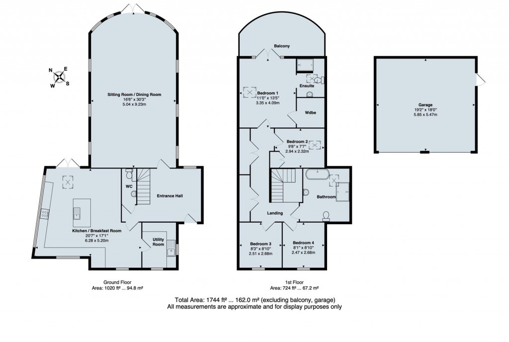
Floorplans For Nuneaton Road, Mancetter, CV9
EPC Graph for Nuneaton Road, Mancetter, CV9

Description


A stunning four bedroom detached residence having exceptionally well presented accommodation throughout, enjoying countryside views and backing onto open fields. Offering over 1740sqft of versatile accommodation, a particular feature of this property is its 30ft sitting room/dining room offering plenty of bright living space with an orchestral bay window overlooking the rear gardens and fields beyond. Elsewhere on the ground floor is a large entrance hall, cloakroom WC, bespoke kitchen/breakfast room with utility room off. To the first floor the main bedroom has a delightful balcony and its own en-suite shower room. There are three further bedrooms, a family bathroom and a built in storage on the landing. The property is approached via driveway leading to a double garage and further parking for several vehicles and a large than average size rear garden. An early internal viewing is strongly recommended.

Location - The property is well served by Mancetter with St Peters Church a Post Office, various small stores and within a short walking distance you will find the Coventry Canal and Dobbies Garden Centre. More comprehensive shopping facilities can be found within Atherstone or Nuneaton Town Centres. State schooling can be found within Atherstone and private schooling can be found within Twycross (Twycross House School) and Market Bosworth (Dixie Grammar School). The property is also conveniently located for commuting with easy access to the A5 trunk road leading onto the M42 and midland motorway network. There are main trainline stations at both Tamworth and Nuneaton with links to Birmingham New Street, London Euston and Nottingham. There is also a Midlands Service to London Euston from Atherstone every hour.

Accommodation Details - Ground Floor - Entry is via a front porch leading into the large entrance hall with staircase rising to the first floor, withTravertine tiled flooring, a store cupboard and a door giving access to a cloakroom WC. To the right is a stunning 30ft dining/family room making this an impressive living space with an attractive fireplace with log burner. It is flooded with natural daylight due to the 10 bespoke windows as well as french doors leading out onto the terrace. Off to the left is the spacious kitchen/breakfast room leading to the side elevation with double glazed doors and utility room. The kitchen area has a range of quality bespoke shaker style fitted units with a fabulous central island incorporating a boiling hot water tap & filter unit, integrated Neff dishwasher, ample preparation space, fitted Smeg gas hob with extractor hood, integrated Neff microwave oven and fitted fridge/freezer. There is a large pantry cupboard and a "Sonos" sound system throughout the ground floor. With plantation style fitted blinds to the front elevation, the kitchen also boasts an impressive vaulted ceiling and apex window allowing an abundance of natural light together with ceiling and pendant lighting.

First Floor - The staircase rises to a large first floor landing which has a range of built in cupboards and doors leading off t:- the main bedroom having sky light window, double glazed French doors leading to a large balcony with views over the rear gardens and fields beyond and access into its own en suite shower room, with sky light window and complementary tiling. This room also has the Sonos sound system connected. There are three further good size bedrooms and a luxury family bathroom with roll top bath and a separate shower cubicle, complementary tiled walls and flooring and sky light window.

Outside - Externally to the front of the property is a large driveway providing ample parking leading to a double detached garage with boarded loft space. There is a delightful larger thanks average easy to maintain rear garden and a large paved patio, all backing onto open fields.

Viewing Arrangements - Strictly by prior appointment via the agents Howkins & Harrison Tel:01827-718021 Option 1

Local Authority - North Warwickshire Borough Council - Tel:01827-715341

Council Tax - Band - F

Fixtures And Fittings - Only those items in the nature of fixtures and fittings mentioned in these particulars are included in the sale. Other items are specifically excluded. None of the appliances have been tested by the agents and they are not certified or warranted in any way.

Services - None of the services have been tested. We are advised that mains water, drainage gas and electricity are connected to the property. The central heating is gas fired and broadband is connected to the property.

Agents Note - Additional information about the property, including details of utility providers, is available upon request. Please contact the agent for further details.

Tenure & Possession - The property is freehold with vacant possession being given on completion

Floorplan - Howkins & Harrison prepare these plans for reference only. They are not to scale.

Additional Services - Do you have a house to sell? Howkins and Harrison offer a professional service to home owners throughout the Midlands region. Call us today for a Free Valuation and details of our services with no obligation whatsoever.

Important Information - Every care has been taken with the preparation of these Sales Particulars, but complete accuracy cannot be guaranteed. In all cases, buyers should verify matters for themselves. Where property alterations have been undertaken buyers should check that relevant permissions have been obtained. If there is any point, which is of particular importance let us know and we will verify it for you. These Particulars do not constitute a contract or part of a contract. All measurements are approximate. The Fixtures, Fittings, Services & Appliances have not been tested and therefore no guarantee can be given that they are in working order. Photographs are provided for general information and it cannot be inferred that any item shown is included in the sale. Plans are provided for general guidance and are not to scale.

Howkins & Harrison

Howkins & Harrison

12 Church Street
Atherstone
Warwickshire
CV9 1RN

+44 (0)1827 718021

Reference: 33784301

Request a viewing for this property

Simply fill out the form below or alternatively call us on 020 7839 0888

* Mandatory fields