3 Bedroom Terraced
£495,000
Waytown, Bridport

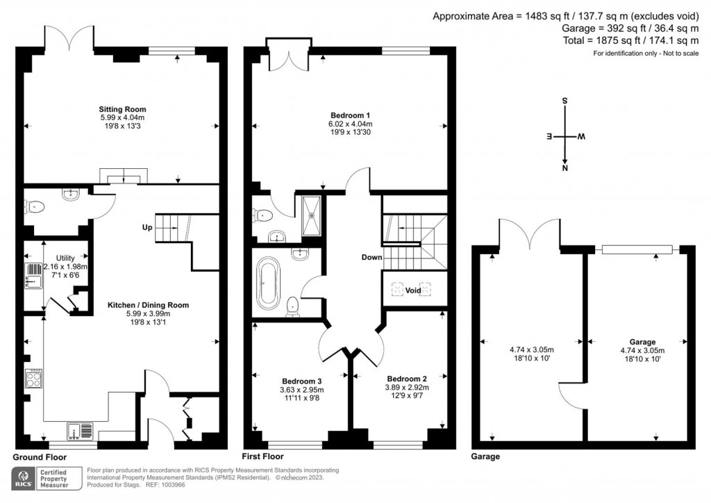
Floorplans For Waytown, Bridport
EPC Graph for Waytown, Bridport

Description


A very attractive and spacious converted mill in a private and tranquil setting surrounded by beautiful countryside

The Property - 8 Slape Mill is a very attractive, spacious and well appointed converted mill in a private and tranquil setting, surrounded by beautiful countryside, yet within easy reach of Bridport and Beaminster. Slape Mill is a stunning and highly individual exclusive development. It comprises the conversion of a former mill building into six highly individual character homes together with five new detached character houses and the original mill house, set in about 5 acres of communal grounds bisected by the Mill Leat and backing onto the River Brit. The scheme was undertaken in 2004.

The property forms part of the former mill building dating back to the 1800s and has attractive red brick elevations under a slate roof. It has been under the current ownership since new and has been very well maintained.

It was converted to a high standard with a character, yet contemporary, feel with semi open plan living space, high ceilings to the ground floor and high vaulted ceilings to the first floor. Character-style features include oak flooring, solid pine internal cottage doors and a brick fireplace feature to the kitchen.

The impressive specification includes oil-fired central heating with a pressurized hot water system, traditional wooden and replacement uPVC windows, security alarm system, well equipped kitchen with comprehensive appliances - electric double oven, electric ceramic hob, integrated dishwasher and integrated fridge - utility with matching units, LED downlighters to the kitchen, wood burner to the living room and attractive period-style bath/shower room fittings, including a freestanding rolltop bath.

The property enjoys a lovely aspect to the front overlooking the green and meadows and a sunny south-facing rear aspect.

Outside - At the rear the property benefits from a garage and adjoining carport.

The front garden has a lawn screened behind hedging. The good sized south-facing rear garden includes a paved terrace, lawn and shrubs.

A further feature and providing a delightful setting are the well maintained communal gardens and grounds and a bridge leads to a large wildflower meadow, exclusively for the use of the residents of the development. The grounds extend to around 5 acres.

Situation - Slape Mill enjoys a peaceful and picturesque country setting in the hamlet of Waytown and within the beautiful Brit Valley, designed an Area of Outstanding Natural Beauty (AONB). Together with the pretty neighbouring village of Netherbury the hamlet enjoys a friendly and active community and amenities, including a pub (within Waytown itself), church, village hall, playing fields and miles of footpaths through the surrounding countryside, including riverside walks along the River Brit, which also pass River Cottage where Hugh Fearnley-Whittingstall's famous brand originated. The charming towns of Beaminster and Bridport are both within easy reach, offering an excellent range of shopping, leisure and cultural facilities as well as a substantial doctors' and dentists' surgeries, supermarkets (including Waitrose in Bridport) and schools for children of all ages. The Jurassic Coast World Heritage Site is very nearby.

Services - Mains electricity and water. Private drainage. Oil-fired central heating.

Residents' Management Company - Slape Mill has a Residents Management Company and there is a service charge towards the communal upkeep of the gardens and grounds.

Viewings - Strictly by appointment with Stags Bridport.

Directions - From Bridport join the A3066 towards Beaminster. On leaving Bradpole and the roundabout at Gore Cross Industrial Estate, take the next left signed Waytown. After about 1 mile turn right, signed Waytown. On entering the hamlet and just past the Hare & Hounds pub, take the immediate next right down a long driveway to Slape Mill.

Stags

Stags

29 South Street
Bridport
Dorset
DT6 4NR

+44 (0)1308 428000

Reference: 33779670

Request a viewing for this property

Simply fill out the form below or alternatively call us on 020 7839 0888

* Mandatory fields