3 Bedroom Bungalow
£775,000
Brit View Road, West Bay

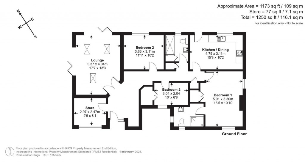
Floorplans For Brit View Road, West Bay
EPC Graph for Brit View Road, West Bay

Description


A stunning detached contemporary bungalow occupying a favoured location in the sought after coastal harbour resort of West Bay. EPC: D

The Property - A very impressive and well appointed, individual, detached bungalow, enjoying sea glimpses and far-reaching coastal and country views on the favoured West Cliff, in the highly sought after resort of West Bay. Under the current ownership, the property has been subject to extensive alteration, upgrading and enlargement to a very high standard, to create a wonderful contemporary home with many interesting design details. It has part reconstituted stone-faced elevations and contemporary New England style cladding.

The very impressive quality specification includes gas-fired central heating with Hive heating 2-zone control (underfloor heating to extension), Aga wood burning stove, remote controlled Velux roof windows to lounge, well equipped kitchen with Hotpoint slot-in cooker, Karndean flooring in hall (including Celtic motif) and lounge, contemporary en-suite shower room and wet room plus solid oak interior doors and skirtings throughout. There are also security cameras/doorbell, Wifi and wire connection to outside office. Extensive quality landscaping has also been undertaken together with a resin-bound driveway.

The attractive and well presented accommodation also enjoys a very private rear aspect, extending to reception hall, lounge with vaulted ceiling, contemporary wood burner and trifold doors, kitchen/dining room, principal bedroom with walk-in wardrobe and en-suite shower room, second bedroom, third bedroom with storage, wet room.

Outside - There is a level resin-bound driveway with off-road parking for two cars and step free to front door.

Internal store with Gliderol garage roller door.

Attractive front gardens with a whole range of grasses and lavender. Side pedestrian gates. Very attractive and well laid out rear garden featuring Prima Porcelain patio paving, TimberTech decking paths, a whole variety of palms, ancient olive tree, lawn and Huxley Golf putting green with two holes plus extensive power points. The garden also features a garden office, 44mm thick wood with power and double glazing and a tool shed behind. Far-reaching views are enjoyed from the gardens.

Situation - The property enjoys a very attractive and peaceful setting on the favoured West Cliff estate in West Bay. It is within easy reach of the centre, the South West Coast Footpath and open countryside. The very popular resort of West Bay forms part of the Jurassic Coast World Heritage Site and is within an Area of Outstanding Natural Beauty (AONB). It offers a picturesque harbour, popular beaches and esplanade along with a good range of amenities including local shops, public houses , numerous excellent restaurants and an 18-hole golf course.

The thriving and historic town of Bridport, renowned for its wide streets, is very nearby, offering comprehensive shopping, business and leisure facilities plus arts centre and leisure centre with an indoor swimming pool. The county town of Dorchester and Weymouth are both within about 15 miles, with London rail services.

Services - All mains services. Gas-fired central heating. Electric underfloor heating to both bathrooms.

Agents Notes - There is a residents association - West Cliff House Owners Association -with an annual service charge of £125 as a contribution towards the upkeep of the private roads etc.

Viewings - Strictly by appointment with Stags Bridport.

Directions - From West Bay centre proceed over the harbour bridge and at the mini-roundabout take the 2nd left into Forty Foot Way. Continue up West Walk and take the last left into Brit View Road. The property is found at the end on the right.

Stags

Stags

29 South Street
Bridport
Dorset
DT6 4NR

+44 (0)1308 428000

Reference: 33775704

Request a viewing for this property

Simply fill out the form below or alternatively call us on 020 7839 0888

* Mandatory fields