Description
A rare opportunity. Detached modern agricultural Barn with planning permission granted to convert, situated in a stunning rural position with no near neighbours and approx. 4 acres available by separate negotiation. For Sale by Informal Tender 29th April. Freehold
Situation - Great Stamborough is situated in an amazing location in the middle of a field with no near neighbours and enjoying stunning rural views looking towards the Brendon Hills.
The barn is situated close to the hamlet of Tolland which lies in wonderful countryside four and a half miles from the rural centres of Wiveliscombe and Bishop's Lydeard. Wiveliscombe has a wide range of facilities as well as a primary and popular secondary school. Taunton, the County Town, is approximately nine miles distant and includes a wide range of shopping, recreational and scholastic facilities as well as access to good communications with the M5 interchange at junction 25 and a mainline railway with links to the rest of the country.
The surrounding area offers some of the most attractive countryside in this part of the West Country; there is an ancient village church and a good sense of community with a number of wonderful footpaths with easy access to the surrounding countryside.
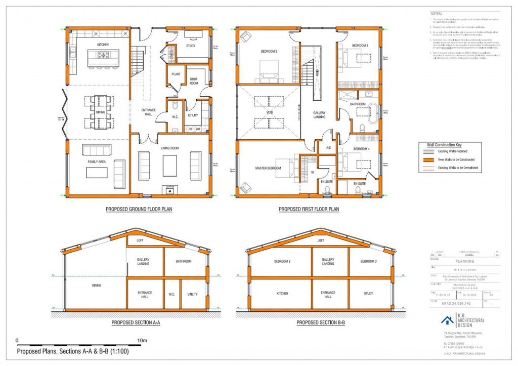
Description - Great Stamborough is a substantial modern agricultural building/barn with planning consent for conversion to create an impressive property providing well proportioned accommodation arranged over two floors.
The approved design incorporates an entrance hall with stairs leading to a galleried landing and door to w/c. Double doors lead through to a living room with woodburner and rear aspect window. There is an open plan kitchen/living/family room which has bi-folding doors and the room incorporates a vaulted ceiling. To the rear is a utility/boot room and separate study. On the first floor are 4 bedrooms two with en-suites and a main bathroom.
Outside there a long gravelled driveway from the lane leading to the barn where there is provision for parking and an area of garden surrounding the barn with off road parking.
There is approximately 4 acres of pasture available by separate negotiation.
Access - There is a long private gravelled drive with direct access from the public highway.
Services - No services currently on site. Water via Borehole or natural spring supply available - to be installed by purchaser.
Electric connection available - connection cost approx £50,000 - to be installed by purchaser
Private Drainage required - to be installed by purchaser
Method Of Sale - The property is offered for sale as a whole by Informal Tender. The closing date for tenders to be submitted is 29th April 2025 at 12 noon.
An informal tender form is available from Stags. Tenders to be submitted in writing to Stags, 5 Hammet Street, Taunton TA1 1RZ together with proof of funds.
Planning - Planning consent has beem approved for the conversion of the barn to a residential dwelling, subject to conditions. The planning reference is 22/24/0007
Full details of the planning consent are available from the Local Authority's website.
Local Authority - Somerset Council (Somerset West and Taunton)
Wayleaves & Rights Of Way - The property is sold subject to and with the benefit of any wayleave agreement and any public or private right of way that may affect it.
Viewings - Strictly by prior appointment with Stags Taunton 01823 256625
Directions - On leaving Taunton head out on the A358 north west towards Minehead take the left turn on the B3224 just after Bishops Lydeard and carry on along this road for approximately 3.5 miles. At the green triangle turn left signposted to Tolland and Gaulden Manor and follow this road go past the right turning for Gaulden Manor and continue on this road for a short distance up the hill and the barn can be found on the right hand side identified by a stags for sale board.
What3words - Pinging.rectangular.other
Disclaimer - These particulars are a guide only and are not to be relied upon for any purpose.
Buyers Obligations - It will be the buyers responsibility to erect all fencing. The water tank adjoining the barn will be removed prior to completion.