5 Bedroom Detached
£785,000
Gunnislake, Tamar Valley

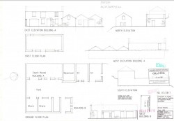
Floorplans For Gunnislake, Tamar Valley Floorplans For Gunnislake, Tamar Valley
EPC Graph for Gunnislake, Tamar Valley

Description


A beautifully detailed former mine captain's smallholding in incredible wooded and walled grounds of 2.7 acres. 5 bedrooms, 3 Receptions, Potential for Development (STP), Freehold, Council Tax Band: F, EPC Band: E.

Situation - This superb home is discreetly positioned within the village of Gunnislake on the Devon/Cornwall border, close to local amenities and transport links, and enjoys incredible, far-reaching views down the Tamar Valley from most of the principal rooms. The house sits within mature grounds amounting to 2.7 acres in all, affording the property much privacy and shelter, whilst being within walking distance of local amenities and the river Tamar itself. The property's position makes it a haven for wildlife, and should appeal strongly to those interested in the natural environment and lovers of the outdoors.

The villages of Gunnislake, St Ann's Chapel and Drakewalls collectively offer a full range of day-to-day amenities including a Post Office, two general stores, an Asda fuel station and mini-supermarket, a primary school, a health centre, garages, several public houses and a railway station providing a regular service into Plymouth city (a 45-minute journey).

Tavistock, 6.5 miles to the east, is a thriving market town on the edge of Dartmoor National Park offering a superb range of shopping, recreational and educational facilities. Plymouth, with its coastal access, is 20 miles to the south. The city of Exeter lies 45 miles to the northeast, providing air, rail and motorway connections to the rest of the UK.

Description - This hugely impressive and superbly proportioned, former mine captain's smallholding and market garden is offered for sale, with no chain, for the first time in over 60 years. The elegant and exceptionally detailed accommodation is arranged over two principal levels, offering excellent space and versatility, with five bedrooms (four doubles), three reception rooms and two bath/shower rooms in all. Additionally, there is a sizeable three-room cellar which offers further potential for conversion or adaptation into additional or even ancillary, self-contained living space, subject to any necessary consents, taking the total floor area to over 3,300sq.ft.

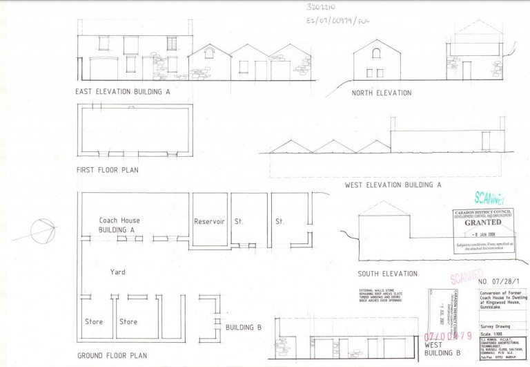
Externally, there are extensive terraced grounds of 2.7 acres - now in need of some clearance and structure - which feature a gated drive and a walled former kitchen garden. Furthermore, to the side of the house are the remains of the house's original coach house and stables, which have lapsed planning consent for conversion into a dwelling, broadening the possibilities of the site further.

Accommodation - The house is filled with an incredible and uncommon level of character and detailing, including extensive moulded plasterwork, ornate coving, ceiling roses, numerous fireplaces, traditional architraves, decoratively panelled doors with brass plating, picture and dado rails, sash windows and some working shutters, flagstone slate flooring, and a beautiful turning staircase with twisted balustrades.

The accommodation is briefly comprised of: a tiled entrance vestibule; a central reception hall; a bay-fronted sitting room centered around a marble fireplace; a matching, bay-fronted dining room with a black marble fireplace; an adaptable snug/study; the kitchen/breakfast room, equipped with a good range of cupboards and cabinets, an integrated NEFF dishwasher and microwave, and a Rangemaster Professional+ cooker with 5-ring burner and double oven; a dedicated utility room; a rear porch; a modern ground-floor shower room; a 3-room cellar with separate external access; a standalone bathroom; five first-floor bedrooms, including four large doubles, and; an ancillary room off one of the rear double bedrooms, which could be adapted as an en-suite, dressing room or study.

Outside - A stone-pillared, gated entrance reveals a sweeping, gravelled carriage drive which circles around the house, to one side of which is a large coal store/outbuilding space set into the retaining wall. The 2.7 acres of grounds are principally terraced, set out below the house, and planted with an array of mature specimen shrubs and trees, which have become overgrown in recent years. Below the drive is a sizeable, wall-enclosed former kitchen garden where there is a greenhouse and brick-built stores. The gardens have undoubted potential for large and active families, and those with an interest in horticulture or wildlife. A secondary access gate leading onto Calstock Road can be found in the southeastern corner of the site.

Lapsed Planning - Located in the southwestern corner of the site, planning was granted in 2007, under Cornwall Council ref: E2/07/00979/FUL, for the conversion of the property's former coach house and stables into a dwelling with associated garages and store buildings. Whilst this has now lapsed, a buyer may wish to investigate renewing the consent or applying for an alternative scheme.

Services - Mains water, gas and electricity. Gas central heating. Drainage is believed to be a brick cesspit, condition and compliance with current regulations unknown. 10x solar thermal panels. Superfast broadband is available. Mobile voice/data services are available via all four major providers (source: Ofcom's online service checker). Please note that the agents have neither inspected nor tested these services.

Agent's Notes - 1. The Tamar Valley is well-known for its history of metalliferous mining. There are no known mine workings or features affecting this property.
2. Planning for residential development has previously been applied for, unsuccessfully, on the lower part of the property's gardens, fronting Calstock Road. However, the vendors intend to include an Overage provision within the sale, the terms of which are TBC/subject to negotiation. Any Overage would not apply to the coach house and stables.
3. We understand that a TPO area covers the lowermost area of the garden.

Stags

Stags

2 Market Streetl
Tavistock
Devon
PL19 0DA

+44 (0)1822 612458

Reference: 33709436

Request a viewing for this property

Simply fill out the form below or alternatively call us on 020 7839 0888

* Mandatory fields