5 Bedroom Semi-Detached
£550,000
Oakford, Tiverton

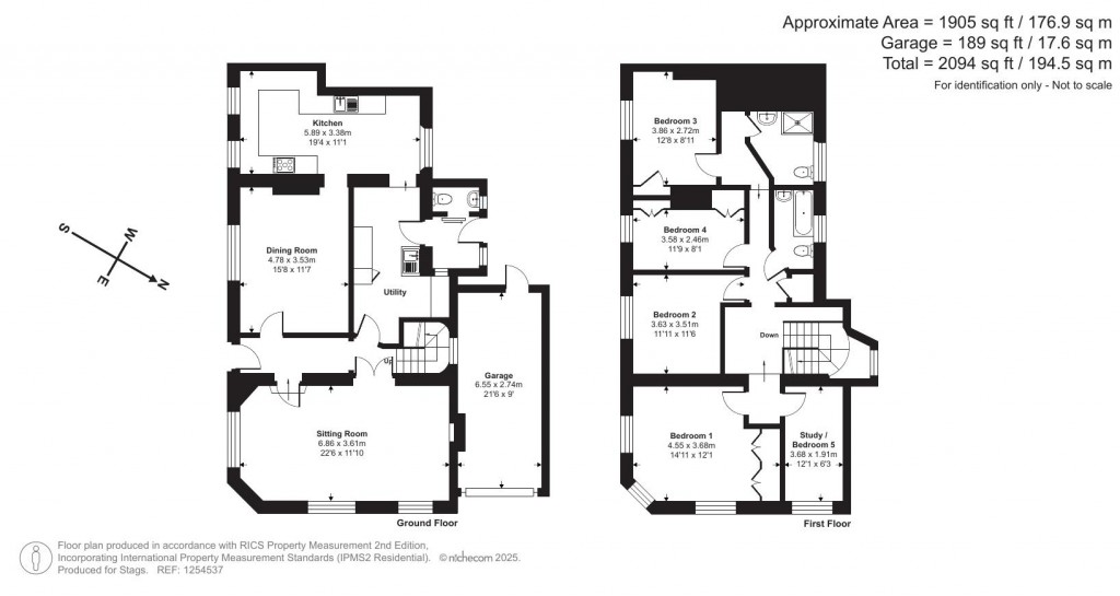
Floorplans For Oakford, Tiverton
EPC Graph for Oakford, Tiverton

Description


A large attractive and well-maintained semi-detached cottage within this pretty and convenient village, just 3 miles from Bampton. Period Cottage. 4/5-Bedrooms & 2-Bathrooms. 2-Reception Rooms. Kitchen Breakfast Room. Large Utility and Downstairs WC. Attractive Village-Edge Location. Large Gardens and Garage. Council Tax Band E. EPC Band E. Freehold.

Situation - The property lies on the village edge, but within a short walk of amenities, which include a popular pub, village hall and church. Bampton lies approximately 3 miles distant and provides a wider range of facilities including a primary school, doctors surgery, a range of shops, cafes and pubs. The market town of Tiverton, 9 miles, offers an extensive range of facilities including supermarkets, independent shops, hospital, leisure centre and the renowned Blundells School.

Access is gained at Tiverton to North Devon Link Road (A361), Leading to junction 27 of the M5 and Tiverton Parkway Train Station, both of which are approximately 15 miles from Oakford.

Exmoor National Park, just a short distance away, offers a wide expanse of beautiful moorland with unspoilt hills and valleys. This rugged landscape provides ample walking, cycling and riding routes for all to enjoy.

Description - This attractive period cottage is well presented and maintained, providing a range of light and spacious rooms. Character and charm is offered throughout the property with two wood-burners and exposed beams.

Accommodation - The accommodation comprises in brief; a covered entrance porch leading to a central hall. A sitting room opens to one side with dual aspect and fireplace with wood burning stove. On the other side is the dining room, also with fireplace and inset wood burner. The kitchen/ breakfast room is well fitted with a range of light wood fronted units, with a range of worktops and breakfast bar. The utility adjoins with a rear enclosed porch and cloakroom with WC.

On the first floor are 5 bedrooms and family bathroom and separate shower room with WC.

Outside - To the front of the property is a pretty, enclosed and well-stocked garden. To the side is a garage, extending to 21ft with a personnel door to the rear garden and parking to the front.

The rear garden initially has a paved patio providing a seating and entertaining space. Beyond, is a low bank with flower boarders and steps leading up to the main lawned garden area which also has inset trees and shrubs. A gravelled space at the end provides further seating space and adjacent garden shed. The garden is enclosed by hedging and fencing.

Services - Mains electricity, water and drainage. Oil Fired Central Heating.
Ofcom predicted broadband services - Standard: Download 18Mbps, Upload 1Mbps. Superfast: Download 57Mbps, Upload 9Mbps.
Ofcom predicted mobile coverage for voice and data: Internal (Limited): EE and Three. External: EE, Three, O2 and Vodafone.
Local Authority: Mid Devon District Council. Oakford Conservation Area

Viewings - Strictly through the agents Stags Tiverton.

Directions - From Junction 27 of the M5, travel west bound on the North Devon Link Road (A361). At Bolham roundabout, take the third exit signposted Bampton (A396)/ Dulverton (B3222). Proceed north, passing through Bolham and Cove. Upon reaching the 'Exeter Inn' roundabout, take the first exit on to the A396. Remain on this road for approximately 2 miles and continue over the bridge as the road becomes B3227. After a further mile, take the first left on to Hamslade Hill (sign posted Oakford). Continue up the hill, in to Oakford Village and take the right turn on to Crosspark Hill. The White House can be found on the left-hand side after 100 yards.

Stags

Stags

19 Bampton Street
Tiverton
Devon
EX16 6AA

+44 (0)1884 235705

Reference: 33704808

Request a viewing for this property

Simply fill out the form below or alternatively call us on 020 7839 0888

* Mandatory fields