4 Bedroom Detached
£750,000
Stokenham, Kingsbridge

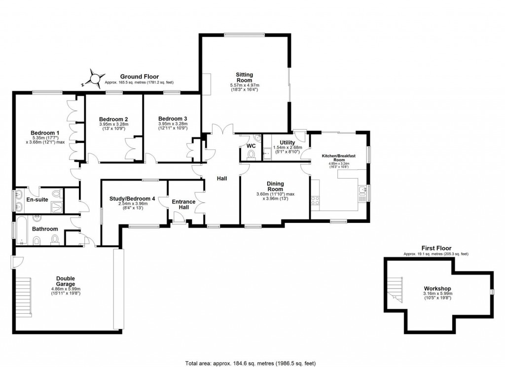
Floorplans For Stokenham, Kingsbridge
EPC Graph for Stokenham, Kingsbridge

Description


A superb, detached property set within a generous plot with outstanding, far-reaching views over the surrounding countryside towards the sea at Torcross. Highly spacious including two reception room, four bedrooms all with vast potential. Ample parking, a double garage, attic rooms, workshop as well as glorious gardens. Freehold. Council Tax Band: F. EPC: Band D.

Situation - Stokenham is an historic and quite delightful village with its own well-respected primary school and two village pubs. The Tradesmans Inn and The Church House and a very pretty church. Just a short walk away on the edge of the village is Stokeley Farmshop, Cafe and The Tap House a great facility including a useful farm shop, butchers, little independent shops, small garden centre, cafe and bar. It is half a mile or so from the village of Chillington which also has a thriving local community and more facilities than many similar villages in the area which include a fabulous village pub, The Bear and Blacksmith, a post office/general stores, and centrally located health centre. Torcross, is around a mile away and is famous for its beach and the Slapton Ley Nature Reserve whilst the market town of Kingsbridge lies some 6 miles or so to the West. The historic naval town of Dartmouth is just a little further in the opposite direction.

Description - Bramble Torr is set in an elevated, private position on the edge of the village enjoying fabulous, uninterrupted views over the surrounding rolling countryside down towards the sea at Torcross. Built in 1988 of traditional construction with deceptively spacious and flexible accommodation has vast potential and really must be viewed to be appreciated.

Accommodation - Access into the hallway with useful built-in cupboards, door to study/bedroom 4. Inner hall leads to a cloakroom/WC. Doors to the sitting room is a fabulous, naturally light, dual aspect generously sized space benefiting from far reaching views towards the sea, open fireplace with surround Dining room a lovely room that overlooks the front aspect. The kitchen breakfast room enjoys views towards the church as well as the countryside down to the sea and is fitted with a range of wall and base units with integrated Neff oven and hob, patio doors lead out to a paved patio and garden beyond. Utility room with space and plumbing for a washing machine along with additional useful storage. The hallway leads round to the bedrooms, the master bedroom enjoys wonderful views, built in wardrobes/dressing table and benefits from an en-suite shower room. There are three further generous double bedrooms along with a family bathroom that is complete with bath with shower over, pedestal wash hand basin, bidet and WC.

Outside - The driveway provides plenty of private parking as well as access to the double garage. The double garage is complete with power and light and has an electric door. Stairs within the garage lead up to lots of storage that is divided into rooms one with a Velux window along with a workshop space which provides much potential to convert subject to the normal planning consents.
The property is set centrally within a good-sized plot there is a side garden with access to two sheds, a greenhouse, pretty pond area with paths leading to a a lawn area bordered with mature hedging and planted borders. The garden to the rear is mainly laid to lawn with a patio which is a fabulous place to sit, relax and really take in the marvellous views.

Services - Mains water, drainage and electric with electric heaters.
Superfast broadband is available at this location along with all major mobile network providers (OfCom).

Tenure - Freehold.

Local Authority - South Hams District Council, Follaton House, Plymouth Road, Totnes, Devon, TQ9 5NE.

Directions - Follow the A379 out of Kingsbridge to Stokenham. On the bend going out of Stokenham take the left hand road going past the Tradesmans pub continue along this lane, taking the private road straight ahead. Follow this to the end where the gate will lead into the driveway to Bramble Torr.

Viewing Arrangements - Strictly by appointment please through our Kingsbridge branch.

Stags

Stags

83 Fore Street
Kingsbridge
Devon
TQ7 1AB

+44 (0)1548 853131

Reference: 33611924

Request a viewing for this property

Simply fill out the form below or alternatively call us on 020 7839 0888

* Mandatory fields