3 Bedroom Semi-Detached
£395,000
Askerswell

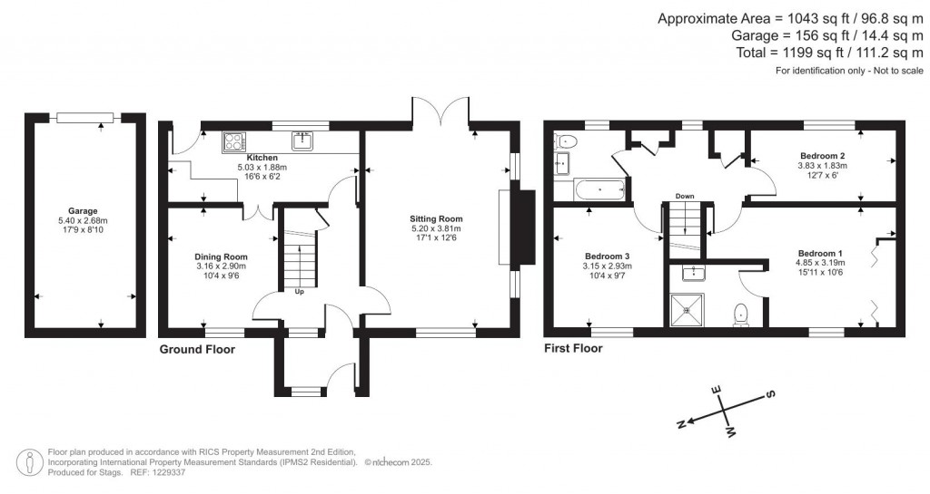
Floorplans For Askerswell
EPC Graph for Askerswell

Description


A charming end of terrace converted stone barn in a picturesque village setting. Council Tax Band E.

The Property - Owls Barn is a charming, end of terrace, stone converted barn in a picturesque setting close to the parish church, in the small and peaceful country village of Askerswell. It was originally part of former farm buildings which were converted in around 1988, having main walls of natural stone under a slate roof.

The property has been under the current ownership for some 28 years and has been well maintained and presented. There is electric heating (traditional water-filled radiators). Replacement part sash style windows/doors. Kitchen with oak-fronted units, en-suite shower room and bathroom. Character features include a brick-faced fireplace with wood burner (currently not in use), exposed beams, deep windows and part vaulted beamed ceilings to the first floor.

The spacious accommodation enjoys a sunny south and west facing aspect with long range views over the nearby countryside fields and hills. Briefly extending to:

Ground floor - Entrance lobby, reception hall, triple aspect living room, dining room, kitchen/breakfast room.

First floor - Landing, principal bedroom with en-suite shower room, 2 further bedrooms, bathroom

Outside - Single garage in nearby block.

Attractive, small west-facing, front garden bounded by low stone walls with paved path, lawns, flower and shrub beds plus gravelled seating area. Enclosed stone walled rear courtyard which is paved.

Situation - Askerswell is a small and peaceful conservation village lying in the Asker Valley and surrounded by beautiful West Dorset countryside. The village comprises, in the main, period cottages and houses and the River Asker runs through the centre. There is a parish church, village hall and public house located nearby. The immediate locality is designated as an Area of Outstanding Natural Beauty (AONB) and the well known viewpoint of Eggardon Hill is nearby. The stunning World Heritage coastline and Lyme Bay is within about 4 miles with bathing beaches at Burton Bradstock and West Bay.

The thriving Georgian market town of Bridport offers an excellent range of shopping, business and cultural facilities, whilst Dorchester is also within easy reach with mainline rail services to London Waterloo.

Services - Mains water, drainage and electricity. Electric heating (traditional water-filled radiators).
Broadband - Standard up to 2Mbps and Ultrafast up to 1800Mbps.
Mobile phone service providers available are EE, Three and O2 for voice and data services inside, in addition to Vodafone for voice and data services outside.
(Broadband and mobile phone information taken from Ofcom website. Results are predictions and not a guarantee. Actual services available may be different from results and may be affected by network outages.)

Viewings - Strictly by appointment with Stags Bridport.

Directions - From Bridport proceed east along the A35 towards Dorchester. After about 4 miles and shortly after joining the dual carriageway, turn left, signed Askerswell. At the bottom of the hill turn right and Owls Barn is seen after a short distance on the left.

Stags

Stags

29 South Street
Bridport
Dorset
DT6 4NR

+44 (0)1308 428000

Reference: 33596140

Request a viewing for this property

Simply fill out the form below or alternatively call us on 020 7839 0888

* Mandatory fields