4 Bedroom Terraced
£425,000
The Bourtons, Newton Road, Totnes

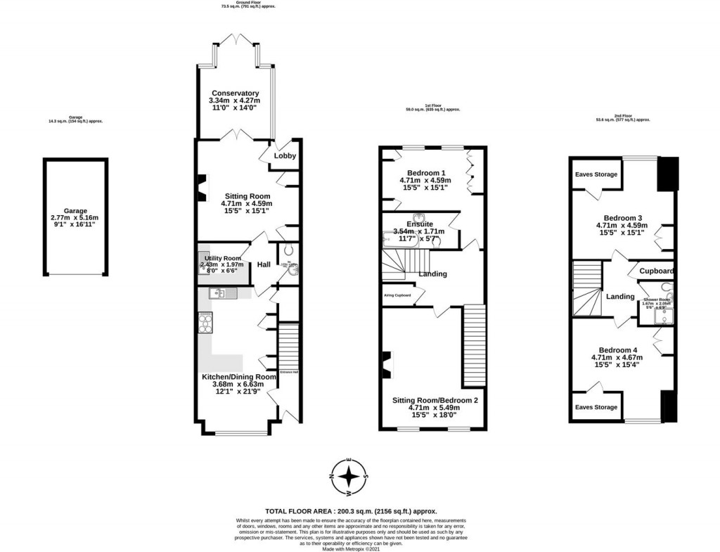
Floorplans For The Bourtons, Newton Road, Totnes
EPC Graph for The Bourtons, Newton Road, Totnes

Description


A beautifully presented and spacious three-storey townhouse located in a quiet development just outside Totnes. Offering three double bedrooms (one ensuite), three reception rooms, a modern kitchen/diner, conservatory, landscaped gardens, garage, and two parking spaces. The property enjoys lovely countryside views and is within easy reach of the town centre, A38, and mainline rail links. EPC Band D.

Situation - The Bourtons is a small select development within striking distance of Totnes Town centre. Totnes is a lively and historic market town, known for its character, independent shops, cafés, galleries, and strong community spirit. Its rich cultural and architectural heritage is evident throughout the town.

Totnes is also well connected, with a mainline railway station offering direct services to London Paddington and the A38 just six miles away, linking to Exeter, Plymouth, and beyond. This combination of convenience, lifestyle, and stunning surroundings makes Totnes one of the South West's most sought-after locations.

Description - 10 The Bourtons is a superbly updated and generously proportioned townhouse forming part of a sought-after and peaceful development on the outskirts of Totnes. Originally converted from a former hotel, the property has been extensively improved by the current owners and is ideal for buyers seeking a spacious and versatile home within easy reach of the town centre.

Set over three floors, the house offers multiple reception spaces, three double bedrooms, and well-maintained front and rear gardens. Its elevated position provides attractive countryside views, and the development itself is discreetly tucked away, offering a wonderful balance of privacy and convenience.

Accommodation - On entering, you are welcomed into a wide entrance hallway leading into a bright and modern kitchen/dining room with contemporary units, Rangemaster cooker, and American-style fridge/freezer. Beyond the kitchen, an inner hallway provides access to a utility room and cloakroom, before flowing into a spacious sitting room with fireplace and glazed double doors opening to the conservatory. This sun-filled space enjoys a view over the rear garden and direct access outside.

Upstairs on the first floor is a generous second reception room, currently used as a snug and home office, with pleasant countryside outlooks-this room could easily serve as a fourth bedroom if required. The principal bedroom is also located on this level and benefits from an ensuite bathroom. On the second floor are two further double bedrooms and a family bathroom, with elevated views over Totnes and beyond.

Outside - The front garden has been thoughtfully landscaped with a lawn, colourful planting, and a paved seating terrace ideal for outdoor dining. The rear garden is designed as a low-maintenance courtyard with steps leading up to the back entrance. A single garage sits just in front of the house, along with two allocated parking spaces and further guest parking nearby.

Services - Mains water, gas, drainage and electricity.

Directions - From Totnes, proceed on the A381 towards Newton Abbot. After approximately half a mile, The Bourtons development is located on the left. Turn into the development and the property can be found on the right-hand side.

Stags

Stags

The Granary
Totnes
Devon
TQ9 5GN

+44 (0)1803 865454

Reference: 33554864

Request a viewing for this property

Simply fill out the form below or alternatively call us on 020 7839 0888

* Mandatory fields