3 Bedroom Terraced
£425,000
Ford Valley, Dartmouth

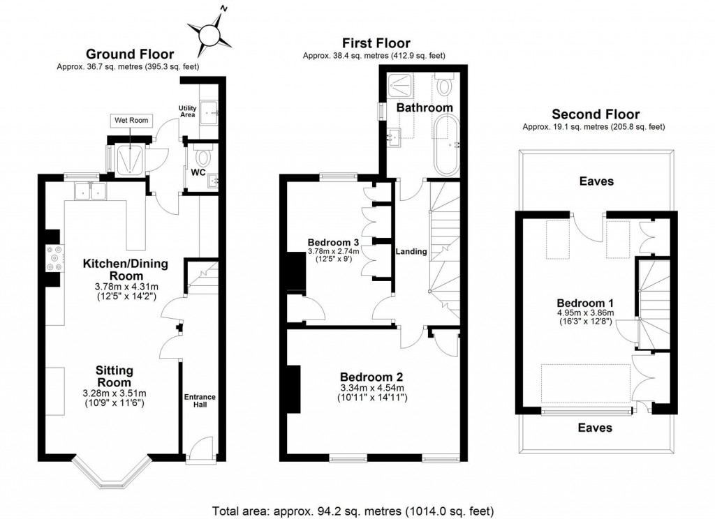
Floorplans For Ford Valley, Dartmouth
EPC Graph for Ford Valley, Dartmouth

Description


A beautifully presented mid-terrace home boasting a high standard of finish and attention to detail throughout with parking and enclosed rear garden. EPC band C.

Situation - Dartmouth is not your average sleepy coastal town. It is buzzing with culture, art, gastronomic offerings and a lively community spirit. Well known for its famous Royal Regatta and Royal Naval College, Dartmouth is steeped in history and its architecture is unique to the town. Dartmouth provides a good range of shops, restaurants and galleries and is surrounded by wonderful countryside whilst only a short drive from some of the most beautiful beaches in the area. The A38 Devon expressway is approximately 19 miles away, allowing speedy access to the cities of Exeter and Plymouth and the country beyond whilst main line rail links to London Paddington can be made in Totnes.

Description - Ford Valley is a quiet residential area yet is conveniently situated for easy access to the town centre and River Dart. With the beautiful River Dart less than a ten-minute walk away the property is well positioned for enjoying all of the many amenities on offer. Being so close to the town centre makes this an ideal main home for those working or relaxing nearby. It could also form a wonderful second home, being within walking distance of the South West Coast Path and ideally placed for exploring the surrounding coast and countryside before you lock up and leave. 37 Ford Valley is a beautifully presented and characterful home featuring an open plan living space complete with wood burning stove and well-equipped kitchen. The property offers three good sized bedrooms and a luxurious family bathroom in addition to a ground floor cloakroom and wet room with shower. To the front of the property is an offroad parking space whilst to the rear is a low maintenance garden with elevated paved terrace and views across the River.

Accommodation - A short set of steps lead to the characterful original front door which in turn opens to the entrance hallway with inset coir matting and painted floorboards flowing through to the living space. The open plan living area is beautifully presented with a perfect balance of character features and modern convenience. The seating area offers a wonderful bay window to the front with shutters whilst a wood burning stove provides a warming focal point. Built in shelving either side of the chimney breast as well as picture rails add to the charm of this cosy space. There is ample room for a good-sized dining table next to the kitchen which has a range of floor and wall mounted shaker-style units above and below tiled surrounds. The kitchen boasts a dual-fuel range cooker and features an integrated fridge/freezer, dishwasher, washer/dryer and a Belfast sink. Solid oak worktops wrap around the kitchen with a peninsula offering
plenty of work space whilst also adding to the open and sociable style of the kitchen/dining area. A door leads from the kitchen to the rear hall, a ground floor cloakroom with WC and wash hand basin, and a very useful wet room with Burlington shower, perfect for sluicing after a muddy coastal path walk or day on the beach.

Wooden panelling lines the staircase rising to the first floor landing and the two first floor bedrooms. Bedroom two is of a good size situated to the front of the property and features two large south-facing sash windows and a feature fireplace with ample space for storage furniture. Bedroom three overlooks the rear garden and also has a feature fireplace and a range of wardrobes offering plenty of storage and a router point making it an ideal study or guest bedroom. Bedroom one makes up the top floor with a vaulted ceiling and stunning Velux panoramic windows which provide views of the adjacent hillside as well as the night sky. These clever windows have integrated solar or blackout blinds, instantly transforming the room from private space to open vista. Painted brickwork and wooden panelling add to the charm of this delightful room, with access to the fully-boarded eaves storage spaces. The bedrooms are served by a luxurious family bathroom with fixtures and fittings from The Cast Iron Bath Company including a heavy, freestanding claw and ball bath. The bathroom offers underfloor heating beneath a beautiful mosaic tiled floor which also forms a wet room for the shower. A WC, wash hand basin and heated towel rail complete the room with two large frosted skylights flooding the space in natural light.

Outside - To the front of the property is a block-paved driveway providing off-road parking for one vehicle. Beneath the bay window is ample space for storing logs, whilst also hosting an intelligent electric car charging point, electric supply and an outside tap. A stable door leads from the rear of the property to a most useful covered utility area with large Belfast sink. There is plenty of storage space making this an ideal area for drying wetsuits after a day on the river or at the beach. Beyond a shaded seating area steps rise to a shared pathway and the rear garden paved in Indian sandstone and leading to a charming terrace which is perfect for alfresco dining under the rose-clad pergola. Power, lights and an infrared outside heater ensure the space can be enjoyed well into the evening whilst enjoying far-reaching views of the town and surrounding countryside. The borders are well stocked with clematis and honeysuckle providing a wealth of colour.

Services - Mains gas, electricity, water and drainage. Gas fired central heating with Hive thermostat. Underfloor heating to the bathroom. Intelligent electric car charging point situated at the front of the property.

Superfast full-fibre broadband and various mobile networks are available at this location (information provided by Ofcom).

Agents Note - The remaining lease of a separate triple garage located nearby is available by separate negotiation. The garage has two electric roller doors leading to a versatile space with off road parking for up to two vehicles in front of. A 20 year lease was granted in April 2020.

Directions - From Stags Dartmouth office proceed along Duke Street which becomes Victoria Road. Follow the road up the hill and turn right onto Ford Valley. Follow the road up the hill where you will find the property on the right hand side.

Local Authority - South Hams District Council, Follaton House, Plymouth Road, Totnes, Devon, TQ9 5NE. Tel 01803 861234. E-mail customer.services@southhams.gov.uk.

Viewings - Strictly by prior appointment with Stags on 01803 835336.

Tenure - Freehold.

Stags

Stags

9 Duke Street
Dartmouth
Devon
TQ6 9PY

+44 (0)1803 835336

Reference: 33526013

Request a viewing for this property

Simply fill out the form below or alternatively call us on 020 7839 0888

* Mandatory fields