Plot
£120,000
Hythe Lane, Burwell

Description


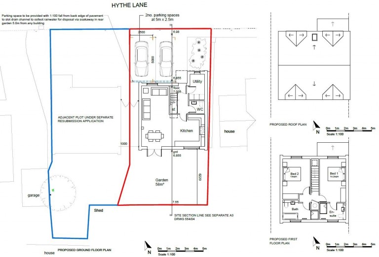
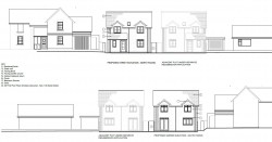
A building plot with permission for the construction of a 2 bedroom detached house situated in a popular village. Planning permission has been granted by East Cambridgeshire District Council planning application reference 24/00104/FUL.

Planning Permission - Planning Permission has been granted by East Cambridgeshire District Council dated 15 April 2024, application reference 24/00104/FUL.

Services - Services including mains gas, water and drainage are located nearby. Potential purchasers are advised to contact the respective statuary authorities to confirm the position, capacity and adequacy of such services.

Viewing - Viewing is direct to site by appointment through the sole agency Cheffins.

Agents Note - Please note this building plot (highlighted in red on the site plan) is currently on one land registry title with 4 Hythe Lane and so will need to be subdivided upon sale. Planning permission has also been granted for 4 Hythe Lane for an identical additional dwelling to replace the current property (24/00102/FUL), this is available separately for £290,000 (highlighted in blue on the site plan).

Sales Agents Notes - Tenure - Freehold
Property Type - Building Plot
Parking - Driveway for 2 cars

Utilities / Services

Electric Supply - Mains Available
Gas Supply - Mains Available
Water Supply - Mains Available
Sewerage - Mains Available
Broadband Connected - No
Broadband Type - Standard Available (Up to 24 Mbps download speed), Superfast Available (60-80 Mbps download speed)
Mobile Signal/Coverage - EE & O2 Likely.

Rights of Way, Easements, Covenants, Restrictions - We are not aware this property contains any specific restrictive covenants - please refer to the land registry title for more information.
Conservation Area - Yes Burwell
Planning Permission - In addition to the planning permission for one new house and to subdivide the current title (ref 24/00104/FUL, as detailed above) planning permission also exists for a development of two detached 2-bedroom houses, including the site of the existing house, (24/00102/FUL) which is available to purchase separately.
Building Safety - The vendor has made us aware that, to the best of their knowledge, there is no unsafe cladding present at the property and that the property is not at risk of collapse. The vendor has advised the garage contains asbestos cladding.
Accessibility / Adaptations - The vendor has made us aware that, to the best of their knowledge, there has been no adaptations made to the property for accessibility requirements during their ownership.

Stamp Duty thresholds have and are changing imminently. Please familiarise yourself with the current thresholds and timescales before moving forward with any transactions. More details can be found at: https://www.gov.uk/stamp-duty-land-tax.

Cheffins

Cheffins

2 Black Bear Court
Newmarket
Suffolk
CB8 9AF

+44 (0)1638 663228

Reference: 33475743

Request a viewing for this property

Simply fill out the form below or alternatively call us on 020 7839 0888

* Mandatory fields