3 Bedroom Detached
£525,000
Whimple, Exeter

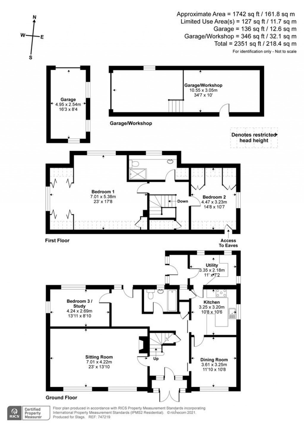
Floorplans For Whimple, Exeter
EPC Graph for Whimple, Exeter

Description


Extending to 0.43 acres, a detached family home with garages, workshop and beautiful private gardens in a rural yet easily accessible location. Close to popular villages with amenities. Easy access to A30. Spacious ground floor accommodation. 3 double bedrooms. Private gardens. Ample off-road parking. Garage/workshop and separate garage. In total 0.43 acres. EPC: E

Situation - Strete Ralegh is within the parish of Whimple, whilst rural the location is easily accessible, just a few minutes drive from the dual carriageway. The nearby village of Whimple has an active community and excellent range of amenities, including primary school, general store and Post Office, two pubs, church and doctor's surgery, along with train station on the Waterloo line.
Ottery St Mary, to the east, offers a good range of amenities, including a selection of independent shops, whilst to the west, the city of Exeter has all the amenities associated with a major regional centre. Transport links are very accessible, the nearby Daisymount junction of the A30 dual carriageway links to the M5 at junction 29 with access to Exeter International Airport. There are also commuter train stations at Whimple and Cranbrook for access to Exeter and London on the Waterloo Line.

Descripton - Set in 0.43 acres, Strete Ralegh Walls comprises a detached house, garage and a generous workshop with adjoining second garage, along with beautiful gardens, whilst as the name suggest, the wall gives a high level of privacy.

The house offers adaptable accommodation with the spacious entrance hall, including airing cupboard and staircase to first floor, leading to the principal ground floor rooms and rear porch opening to the garden. There are two spacious reception rooms; the dining room enjoys a southerly aspect, overlooking the rear garden, and includes a door opening to the kitchen, whilst the sitting room extends to 23' with feature fireplace and two large windows, again, overlooking the rear garden. The kitchen/breakfast room is fitted with a range of matching units and includes breakfast bar, space for range cooker and large store cupboard. Adjoining the kitchen is the utility room with further range of units, space for laundry appliances and beyond is the boot room with side entrance. Completing the ground floor is the third bedroom, currently used as a study, and bathroom comprising panelled bath in tiled surround with mixer tap and shower attachment, vanity unit wash basin with cupboard below and low level wc.

To the first floor is the landing with storage cupboard and access to two bedrooms and shower room. The shower room comprises shower cubicle, low level wc and pedestal wash hand basin. Extending to 23' the dual aspect principal includes built-in wardrobes and cupboard, whilst the second bedroom, again, includes built-in wardrobes, along with access to the eaves.

In addition to the house, accessed from the lane and front garden, is the workshop with adjoining garage and in total extends to 34'7 x 10'. There is light and power connected, along with an up and over door to one end.

The gardens are a particular feature of the property; approached through a feature brick arched wall the drive leads to the parking and turning area with single garage beyond. The front garden is laid mainly to lawn with a variety of trees and shrubs, along with well-stocked raised beds, pond and pathway leading to the greenhouse and workshop. The gardens continue around to the side with trees and lawn continuing to the rear. There is a patio adjoining the house with steps up to a large lawned garden integrated with trees and shrubs. There is also a summerhouse.

Services - Current Council Tax: F
Utilities: Mains electric, water
Drainage: Sceptic tank
Heating: Oil fired central heating
Tenure: Freehold
Standard and superfast broadband available. EE, O2, Three and Vodafone mobile networks available (Ofcom).

Directions - From the Daisymount exit on the A30 east of Exeter follow the signposts to Whimple and Rockbeare. Proceed for a mile turning left signposted Strete Ralegh and follow the lane continuing around to the left. After half a mile, where the lane turns to the right, continue along the private drive immediately in front. Strete Ralegh Walls is the first drive on the right.

Agents Note - The vendor advises that the property has a non-compliant septic tank. Please speak to the agents for more details

Stags

Stags

21 Southernhay West
Exeter
Devon
EX1 1PR

+44 (0)1392 255202

Reference: 33458503

Request a viewing for this property

Simply fill out the form below or alternatively call us on 020 7839 0888

* Mandatory fields