2 Bedroom Semi-Detached
£450,000
Above Town, Dartmouth

Floorplans For Above Town, Dartmouth
EPC Graph for Above Town, Dartmouth

Description


A charming end of terrace home situated in an elevated position enjoying stunning views of the River Dart with garden and garage. EPC band D.

Situation - Dartmouth is not your average sleepy coastal town. It is buzzing with culture, art, gastronomic offerings and a lively community spirit. Well known for its famous Royal Regatta and Royal Naval College, Dartmouth is steeped in history and its architecture is unique to the town. Dartmouth provides a good range of shops, restaurants and galleries and is surrounded by wonderful countryside whilst only a short drive from some of the most beautiful beaches in the area. The A38 Devon expressway is approximately 19 miles away, allowing speedy access to the cities of Exeter and Plymouth and the country beyond whilst main line rail links to London Paddington can be made in Totnes.

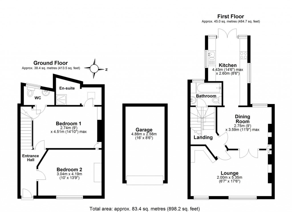
Description - The property is located in the sought-after residential area of Above Town, just a short walk to the town centre, River Dart and all the wonderful amenities on offer. 64 Above town is a characterful end of terrace home built in the 1930's. Forming part of small terrace of three situated in an elevated position from the road offering beautiful views of the river and out to sea. The reverse level accommodation features two double bedrooms on the ground floor. One of which benefits from an ensuite shower room and separate WC. On the second floor you will find a bright airy sitting room, loosely separated from the dining room with spectacular views of the River Dart. Leading from the dining room is a kitchen where there is access to the tiered rear garden. Located just a short distance from the property is a good sized garage with manual up and over door.

Accommodation - 64 Above Town is accessed via stone steps leading directly from Above Town. The front door opens to an entrance hallway and the two double bedrooms on the ground floor. Bedroom one, is a bright an airy room with laminate flooring and a gorgeous feature fireplace which creates a focal point in addition to the two large sash windows offering wonderful river views. Leading through a solid pine door is Bedroom two at the back of the property with useful built in storge. This room benefits from a ensuite shower room and separate WC with wash hand basin.

Stairs rise to the first floor and the sitting room which has three sash windows offering far-reaching views across to Kingswear and to Dartmouth Castle and out to sea. The sitting room is loosely divided from the dining room by characterful double, part glazed doors. Both rooms have feature fireplaces and the dining room has attractive exposed floorboards. Next to the dining room is the kitchen which features a range of floor and wall mounted units above and below wooden worktops and tiled surrounds. The kitchen offers space for an electric oven, dishwasher, fridge, freezer and washing machine. French doors open to a pavaed terrace and the rear garden. Completing the accommodation is a bathroom on the first floor with bath, WC and wash hand basin.

Outside - Located a short distance from the property and situated on Above Town is a highly sought-after and easy to access garage with manual up and over door.

To the front of the property there is space to sit and admire the view overlooking a small area of garden which features a variety of mature shrubs. Leading from the kitchen to the rear is a paved terrace which is perfect for alfresco dining. The terraced rear garden is arranged over several levels with with areas of lawn and decking at the very top where spectacular views of the River Dart, Kingswear and out to sea can be enjoyed.

Tenure - Freehold.

Services - Mains electricity, gas, water and drainage. Gas fired central heating.

Ultrafast broadband available at this location and various mobile networks are available at this location (information provided by Ofcom)

Local Authority - South Hams District Council, Follaton House, Plymouth Road, Totnes, Devon, TQ9 5NE. Tel 01803 861234. E-mail customer.services@southhams.gov.uk.

Viewing - Strictly by prior appointment with Stags on 01803 835336.

Directions - From Stags Dartmouth office in Duke Street turn left then take the first turning left into Anzac Street. Passing St Saviours Church and The Seven Stars on your left, follow the road before turning immediately right into Smith Street. Continue up the hill as it bends to the left onto Crowther's Hill and at the top turn left onto Above Town. No. 64 will be found after a short distance up some step on the right-hand side.

Stags

Stags

9 Duke Street
Dartmouth
Devon
TQ6 9PY

+44 (0)1803 835336

Reference: 33410034

Request a viewing for this property

Simply fill out the form below or alternatively call us on 020 7839 0888

* Mandatory fields