10 Bedroom Detached
£500,000
West Bay Road, West Bay, Bridport

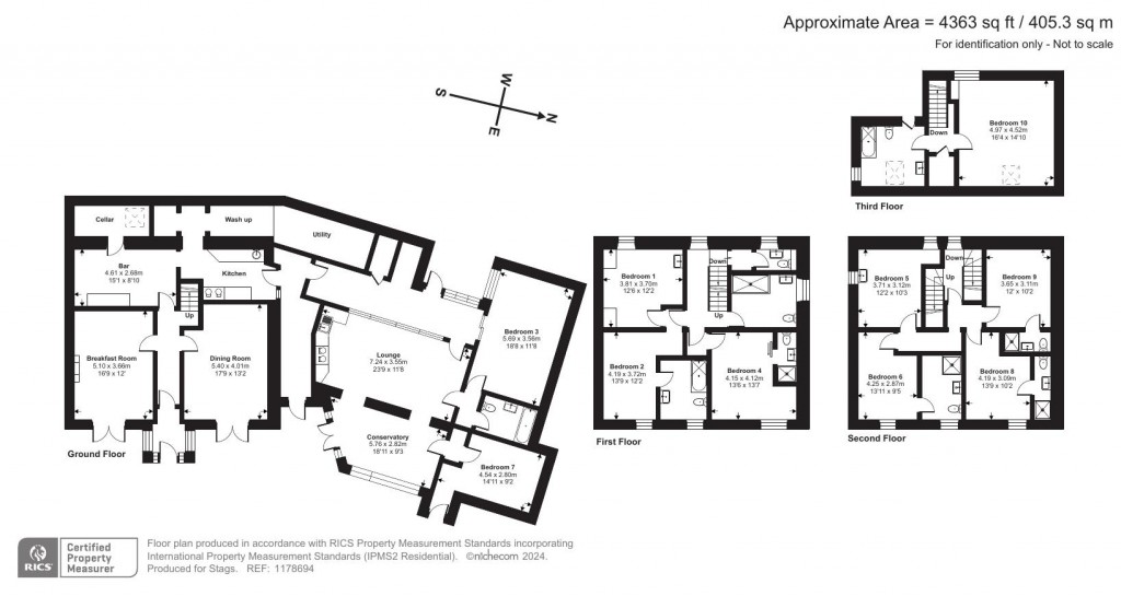
Floorplans For West Bay Road, West Bay, Bridport

Description


GUIDE RANGE £500,000 - £550,000
A charming and substantial guesthouse/free house in an excellent trading position in the very busy coastal resort of West Bay. Grade II Listed. Council Tax Band A.

The Property - Durbeyfield Guesthouse is a very successful and long established guesthouse/free house in a prime trading location, in the sought after coastal resort of West Bay. It is understood to have been originally a private/timber merchant's house and has been established as a guesthouse since the 1960s. The property is grade 2 listed, as being 'of architectural or historic importance'. Character features, typical of its period, include exposed wide floorboards, picture rails, wood panelling and a decorative frieze in the dining room. Some of the letting rooms on the upper floors enjoy sea glimpses and harbour views to the river.

The property also offers excellent opportunities for alternative uses including conversion into a large private home, or apartments, etc., (subject to the appropriate planning consents).

The Business - Under the current ownership since 2017, trading for 10 months of the year (closed in January/February) and is open to non-residents. The bar attracts very good local and seasonal holiday trade with good footfall. It is the only free house in West Bay. The letting rooms attract holidaymakers, tradespeople, walking/fishing groups and specialist clubs etc. There is excellent potential to increase turnover by offering lunch time and evening meals.

The comprehensive contents / fixtures & fittings are available by separate negotiation. Guide price £10,000.

Full trading information available on request.

Outside - There is the benefit of a large car park, available for residents and non-residents. Large terrace with outside seating. Garage, store and outside WC. At the rear is a private courtyard with utility room.

Situation - Durbeyfield Guesthouse enjoys an excellent prominent position on the entrance to this popular and busy coastal resort. West Bay forms part of the spectacular World Heritage Coast, known as the Jurassic Coast and enjoyed national and global attention due to be the location for the ITV award winning drama Broadchurch. West Bay offers many excellent attractions including a picturesque harbour, bathing beaches, shops and leisure facilities together with an 18-hole golf course and magnificent coastal and clifftop walks through land owned or controlled by the National Trust. The immediate area is designated as being one of outstanding natural beauty (AONB).

The thriving, historic town of Bridport is within only a few miles, offering an excellent range of shopping and business facilities together with twice weekly market and popular leisure centre with swimming pool.

The well known coastal resorts of Lyme Regis and Weymouth are also very nearby. The A35 provides excellent road access to the South East, South West and the Midlands.

Services - All mains services. Gas-fired central heating.
Broadband - Standard up to 6Mbps and Superfast up to 80Mbps.
Mobile phone service providers available are EE, Three, O2 and Vodafone for voice and data services inside and outside.
(Broadband and mobile phone information taken from Ofcom website Results are predictions and not a guarantee. Actual services available may be different from results and may be affected by network outages).

Viewings - Strictly by appointment with Stags Bridport.

Directions - From Bridport town centre, drive down South Street and at the roundabout take the 3rd exit, signed West Bay. On entering the resort, Durbeyfield Guesthouse will be seen on the right, just before the right bend to the harbour.

Stags

Stags

29 South Street
Bridport
Dorset
DT6 4NR

+44 (0)1308 428000

Reference: 33380300

Request a viewing for this property

Simply fill out the form below or alternatively call us on 020 7839 0888

* Mandatory fields