3 Bedroom Detached
£395,000
Salway Drive, Salwayash, Bridport

Floorplans For Salway Drive, Salwayash, Bridport
EPC Graph for Salway Drive, Salwayash, Bridport

Description


Attractive and well-appointed detached character style house in a village setting close to open countryside, Bridport and the Jurassic Coast. Council Tax Band D, EPC C, Freehold.

The Property - 34 Salway Drive is a very attractive and well presented detached chalet-style house with beautiful landscaped gardens and far-reaching country views, peacefully located within the village of Salwayash. It was traditionally built in 1995 by the well known local builders, Betterment Properties, having brick faced elevations.

Under the current ownership since 2000, the property has been subject to a whole number of improvements and is very well presented and appointed. The good sized accommodation enjoys wonderful far-reaching views to the rear over the surrounding countryside and rolling hills.

The excellent specification includes LPG central heating, woodgrain style uPVC windows/doors, natural wood flooring to the hall and cloakroom, well equipped kitchen with beech fronted units, Neff eye-level electric double oven, 5-burner LPG gas hob, stainless steel cooker hood and plumbing for dishwasher and washing machine, ceramic tiled flooring to the kitchen, large uPVC conservatory, modern upgraded en-suite shower room and bathroom and PV panels generating excellent income.

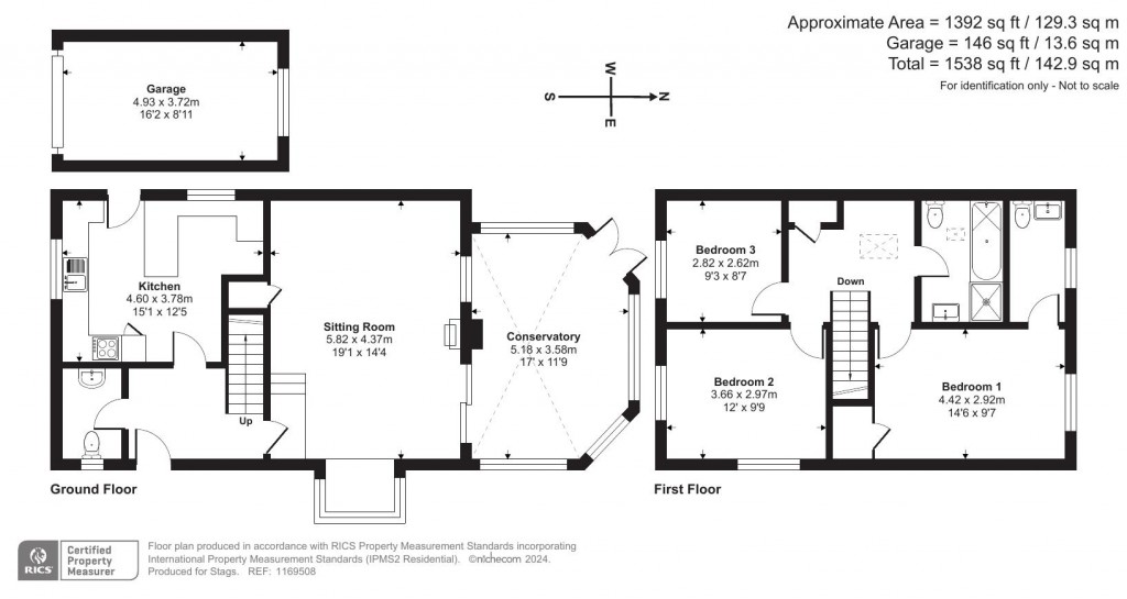
The accommodation extends to:

Ground floor - Canopy porch, reception hall, cloakroom, kitchen, living room, conservatory/dining room
First floor - Landing, principal bedroom with en-suite shower room, two further bedrooms, bathroom.

Outside - A tarmac driveway leads to a single garage and side pedestrian gate.

The gardens are a further feature being attractively landscaped, laid out and very well stocked.

The front garden has been designed for ease of maintenance with pea shingle and a whole range of plants. The rear garden is beautifully laid out with paved terracing, lawn, a whole variety of flower and shrub beds, summerhouse and a large fruit and vegetable area. Fantastic far-reaching country views are enjoyed.

Situation - The house is peacefully located within the village of Salwayash and on the edge of the beautiful Marshwood Vale. Salwayash is a small village with a public house, church, village hall and a popular primary school, with a Pineapple Business park a short walk from the property, with a farm shop onsite. The immediate area is designated as being one of outstanding natural beauty (AONB) and there are many scenic walks on the doorstep.

The thriving market town of Bridport is very nearby, offering an excellent range of shopping, professional and business facilities, twice weekly market and leisure centre. The coast is just a few miles further away at West Bay, with its harbour, bathing beaches and access to the stunning World Heritage Jurassic Coast. The historic resort of Lyme Regis and the livelier centres of Dorchester, Yeovil and Weymouth are all within easy reach.

Services - Mains electricity, water and drainage. LPG central heating. PV panels.
Broadband - Standard up to 3Mbps and Superfast up to 35Mbps.
Mobile phone service providers available are EE and Three for voice and data services inside in addition to O2 and Vodafone and outside.
(Broadband and mobile phone information taken from Ofcom website Results are predictions and not a guarantee. Actual services available may be different from results and may be affected by network outages).

Viewings - Strictly by appointment with Stags Bridport.

Directions - From our office in South Street, proceed to the Town Hall and turn left into West Street. At the 2nd mini-roundabout take the 2nd exit, signed Salwayash and continue on this road to the village. On reaching Salwayash take the 2nd right into Salway Drive and the property is found at the far end.

Residential Lettings - If you are considering investing in a Buy To Let or letting another property and require advice on current rents, yields or general lettings information to ensure you comply, please contact a member of our lettings team on 01380 428001or via email at rentals.bridport@stags.co.uk.

Stags

Stags

29 South Street
Bridport
Dorset
DT6 4NR

+44 (0)1308 428000

Reference: 33322356

Request a viewing for this property

Simply fill out the form below or alternatively call us on 020 7839 0888

* Mandatory fields