3 Bedroom Bungalow
£325,000
Whiteball, Wellington

Floorplans For Whiteball, Wellington
EPC Graph for Whiteball, Wellington

Description


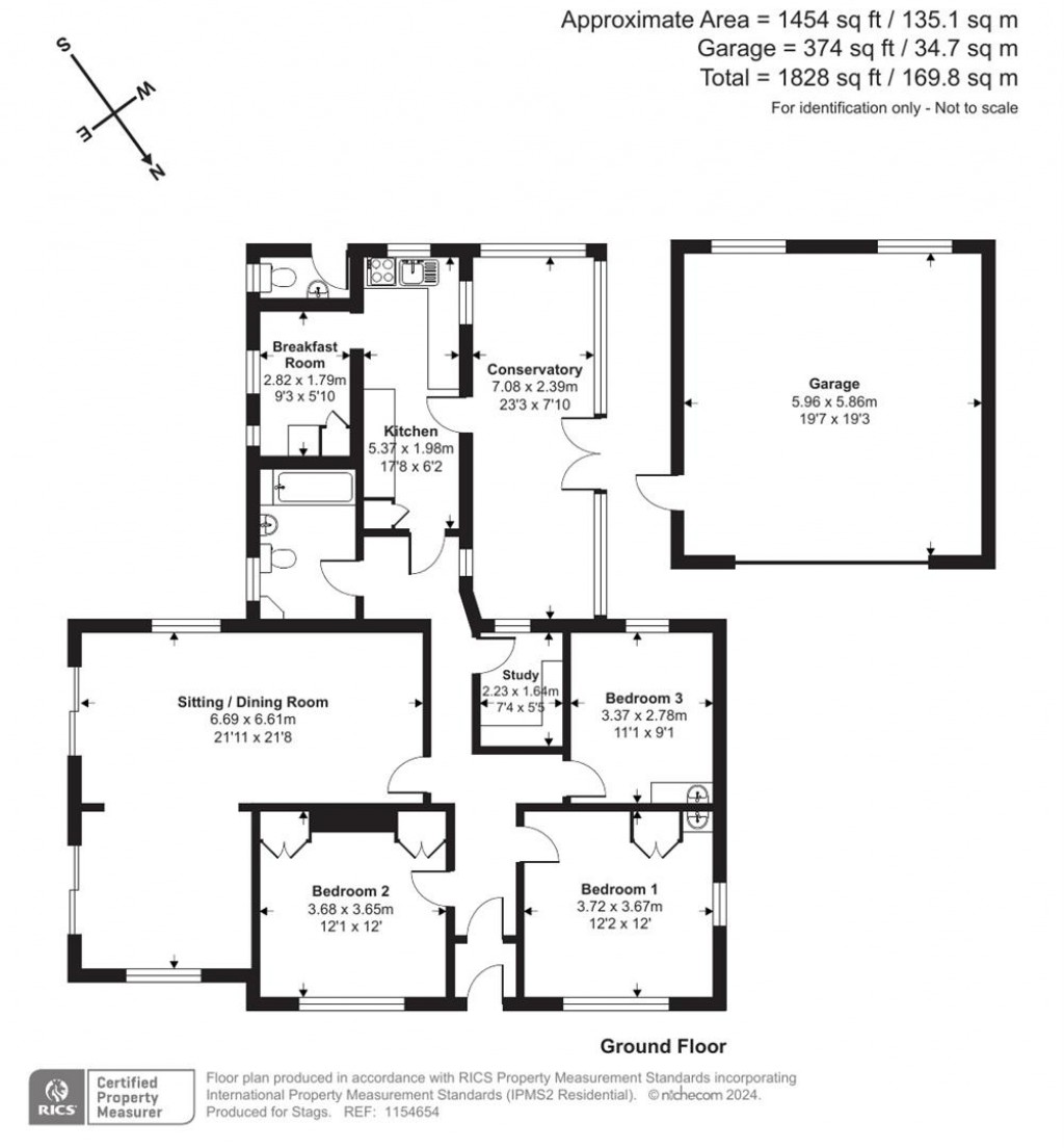
An individual detached bungalow. Three Bedrooms, Bathroom, Kitchen/breakfast Room, Sitting/Dining Room, Study/Conservatory, Front & Rear Garden, Double Garage/Workshop. Freehold. Council Tax Band - E. EPC Band - E

Situation - Located on the edge of the hamlet of Whiteball; a scattering of houses to the West of Wellington and close to the Somerset/Devon border. Whiteball is within 6 miles of the M5 (junction 27) and Tiverton Parkway railway station, providing a mainline rail link into London Paddington. Wellington is just 5 miles away, where an excellent range of shopping, recreational and scholastic facilities can be found. The County town of Taunton is within 12 miles of the property and the University City of Exeter 26 miles.

Description - A detached individual bungalow in a accessible location, offering enormous potential subject to the necessary consents, now requiring some updating the accommodation comprises of a spacious sitting/dining room, kitchen opening into a breakfast room, study, three bedrooms and a bathroom, conservatory, front and rear gardens, double garage / workshop and parking. Offered for sale with no onward chain. Locally there is beautiful countryside nearby.

Accommodation - Entrance porch with door to entrance hall, doors to all rooms. To the right is bedroom one with dual aspect, storage cupboard and wash hand basin. Door to the left is bedroom two with storage cupboards. The third bedroom has a wash hand basin. The sitting/dining room is spacious with windows overlooking the garden. Study with built in storage. Kitchen with a range of wall and base units with work surfaces over, one and half bowl sink unit and drainer, electric cooker point. From the kitchen is the breakfast room with storage. Door to conservatory with patio doors to garden. Family bathroom with bath, low level WC, wash hand basin.

Outside - The property is bordered with mature trees and shrubs. The gardens are mainly laid to lawn, driveway and double garage/workshop.

Viewings - Strictly by appointment please with the vendors agents, Stags, Wellington office.

Services - Mains electricity, mains water, night storage heaters, septic tank - shared with next door. This property has the benefit of superfast Broadband (Ofcom). Mobile coverage limited inside & outside with EE,O2, Three and Vodafone (Ofcom).

Directions - From Wellington take the A38 in a westerly towards Tiverton/M5 direction. Continue past The Beambridge Inn up the hill where after approximately 0.7 miles, Sunnypatch will be found on the right hand side.

Stags

Stags

7 High Street
Wellington
Somerset
TA21 8QT

+44 (0)1823 662822

Reference: 33319901

Request a viewing for this property

Simply fill out the form below or alternatively call us on 020 7839 0888

* Mandatory fields