4 Bedroom Semi-Detached
£575,000
Priory Close, Royston

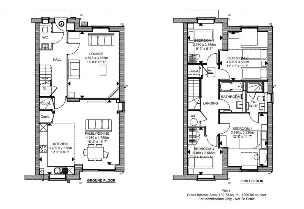
Floorplans For Priory Close, Royston

Description


*** FINAL PLOT ***
Ailsa Row is an exclusive development of just 4 homes. Boasting an elevated position these homes benefit from being just a short distance to the heart of Royston in a sought after location.

Ailsa Row - This home has been built in an elevated position with shared gardens to the front and private gardens and parking to the rear. This is the final remaining plot of just four luxurious new homes within an exclusive, attractively landscaped setting.

Situated in the popular town of Royston, with convenient shopping options on the outskirts and a town centre filled with cafes, restaurants and pubs, to essential services such as healthcare and education.

Royston benefits from easy access to major roadways like the A10, A1M and M11, along with a mainline train station with direct routes to London Kings Cross in under 40 minutes.

Material Information (Paragraph) - Tenure - Freehold
Annual Service Charge - TBC - A small charge will apply for the maintenance of the shared landscaping to the front and access road to the rear.
Council Tax Band - TBC
Number & Types of Room - Please refer to floor plan
Square Footage - 1,308
Parking - Driveway to the rear

UTILITIES/SERVICES
Electric Supply - Mains
Water Supply - Mains
Sewerage - Mains
Heating - Gas fired boiler
Broadband - Super fast options available
Mobile Signal/Coverage - Good
EPC - Anticipated B

Specification - External materials & finishes:
.Selected red facing bricks
.Roofing: Concrete tiles, Marley Ashmore Smooth Brown, Old English Red Hanging tiles
.Timber shed to all rear gardens
.UPVC double glazed windows
.Fascia & Soffit white UPVC
.Black composite front door
.Kitchen bi-folds into garden
.Black UPVC guttering with half round down pipes & gutters
.Block paved parking
.Timber closeboard fence to boundaries
.Grass & feature planting
.New rear garden turf laid
.Paved patio across full width of garden

Services & Utilities:
.Surface water - Soakaways
.Foul water - Gravity fed into existing network
.Water / Electric / Gas - Independent services connected direct into mains infrastructure

Mechanical Specification:
.Energy efficient Valliant boiler.
.Underfloor heating to ground floor and radiators to first floor areas, with thermostatic control.
.Heated chrome towel rails in bathrooms and ensuites.
.Hot water supplied from a pressurized indirect Valliant cylinder linked to the heating system.
.Mains water supplied to all outlets with isolation service valves to all appliances.
.Soils & wastes in UPVC pipe and fittings.
.Extract fans in cloakroom, all bathrooms and ensuites under switch control with humidity and timer delay override.
.Calsoft mini metered water softener with high flow kit installed.

Electrical Specification:
.Combination of low energy downlights and pendant light fittings
.Switched PIR light adjacent to front door and rear light with kitchen switch
.Night time lighting to parking area and all paths
.All light switches to be polished chrome / white
.TV points I living room, kitchen and bedrooms
.Master BT point and router under stairs, CAT6 ethernet cable hard wiring to all TV points
.Intruder alarm system
.Electric vehicle charging point for each property

Kitchen & Utility:
.Ashwell contemporary Strada matt units and CQ ice storm worktops, with worktop upstand and splash back to hob
.Units in Marine Blue
.Under cabinet spot lighting
.Chrome sprout tap and stainless-steel U-sink
.Neff appliances including integrated oven & hob, microwave, fridge freezer, dishwasher & washing machine

Internal Finishes:
.Ceilings - plaster board, smooth plastered painted white
.Walls - smooth plastered, decorated with white emulsion base paint mixed with Khaki Mist 5
.Flooring - Invictus Maximus New England LVT flooring range (Sand) to entrance hall, kitchen/dining room, WCs and all bathrooms.
.First Impressions carpet to living room, stairs, landings and bedrooms
.White Iseo internal doors with chromes plated furniture
.White painted softwood staircase with timber spindles
.White ROCA sanitaryware comprising wall hung WC's, vanity wash basins, panelled bath and thermostatic showers
.Just Tiles Mohair Gris Porcelain tiles in all bathrooms, ensuites and WC's
.Chrome plated Vado taps and valves

Cheffins

Cheffins

Clifton House
1-2 Clifton Road
Cambridge
Cambridgeshire
CB1 7EA

+44 (0)1223 214214

Reference: 33315722

Request a viewing for this property

Simply fill out the form below or alternatively call us on 020 7839 0888

* Mandatory fields