3 Bedroom Bungalow
£599,950
Sandways, Calstock, Cornwall

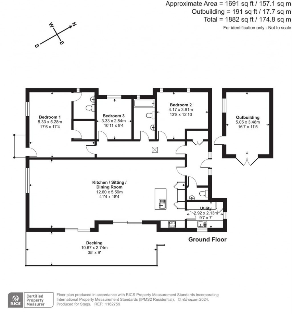
Floorplans For Sandways, Calstock, Cornwall
EPC Graph for Sandways, Calstock, Cornwall

Description


A superbly well-designed and stylishly finished, single-storey eco-home with a gated drive and sizeable gardens, providing unrivalled energy efficiency and contemporary comfort, and available chain-free. Exceptionally Energy Efficient Home; Extremely High EPC (A-rated at 108); Beautiful Open-plan Living Space; 3 Double Bedrooms (Master En-suite); Large Gated Driveway and Garage; Wrap-around Gardens and Sun Deck; Private, Edge-of-Village Position; No Onward Chain; Council Tax Band: F; Freehold. EPC Band: A

Situation - This individual new home is located on the fringes of the picturesque World Heritage village of Calstock in the heart of the Tamar Valley National Landscape (formerly AONB), just over 0.5 miles from the village's train station and only 0.8 miles from the centre, with its amenities and public quay. A former inland port on the tidal path of the river Tamar, Calstock is a lively village with a good community spirit and a regular, 35-minute train service to Plymouth. Sailors and boat owners should take particular note; there are moorings and a nearby boatyard, with tidal access to Plymouth Sound approx. 12 nautical miles downriver. The Tamar Valley, along the Devon/Cornwall border, offers superb opportunities to discover the region's rich heritage. The village of Gunnislake, including an Asda fuel station and mini-supermarket, is only 1 mile away whilst the thriving market town of Tavistock in West Devon, with its superb range of shopping, recreational and educational facilities, is just 6 miles away to the northeast.

Description - This superb eco-home was completed in 2023 and has been built to a truly remarkable level of energy and thermal efficiency. Of Insulated Concrete Formwork (ICF) with high-performance double glazing, the property's EPC rating stands at an astonishing 108 (Band A). Other strong sustainability measures include a 7.11kW PV panel array and an air-source heat pump. Internally, the style and standard are also extremely high, including a spectacular, open-plan kitchen/living room and contemporary bath/shower rooms. Externally, there are good-sized, colourful gardens and a large gated drive, making this a very appealing, future-proofed home which should appeal to those seeking comfort, simplicity and peace of mind.

Accommodation - The layout is shown on our floorplan and briefly comprised as follows: an entrance hallway, with a large cloaks and boots cupboard; a cloakroom; the open-plan kitchen/living/dining room; a separate utility with space for laundry appliances and a dishwasher; the three double bedrooms, including a master suite with en-suite shower, walk-in wardrobe and decked balcony, and; the family bathroom. The property's statement room is the open-plan kitchen/living room which is dual-aspect and of tremendous size, with a large picture window, two sets of patio doors to the sun deck and part-vaulted ceilings with triple-glazed skylights ensuring extensive natural light. The kitchen is equipped with a very good range of contemporary units and a sizable island with an inset basin, plus integrated appliances including an AEG multi-function induction hob and Elica extractor hood, a built-in AEG oven and a separate microwave.

Outside - A large, gated driveway provides excellent parking space and leads to a timber-built garage. The side and rear gardens comprise well-kept lawns with colourful borders featuring an array of mature shrubs and specimen trees, providing a good degree of privacy and shelter. Accessible from the living room and dining area, the sun deck is of a very good size and provides a perfect outdoor area for entertaining or alfresco dining.

Services - Mains water, electricity and drainage (via a private pumping station). 7.11kW, 18-panel PV array. Air-source heat pump providing zoned underfloor heating. Superfast broadband is available. Limited mobile voice services are available on all four major providers (source: Ofcom's online service checker). Please note that the agents have neither inspected nor tested these services.

Agent's Notes - 1. ICF is considered a Modern Method of Construction. Those requiring a mortgage are advised to take specialist advice.
2. A Stroma Buildzone New Home Warranty is offered with the property, valid until June 2033.
3. The property is located in an area well-known for its historic metalliferous mining. No workings are known to exist close to the property and a satisfactory mining walk-over inspection was carried out during the build process.
4. The property benefits from a right of access over the driveway of its front neighbour.

Stags

Stags

2 Market Streetl
Tavistock
Devon
PL19 0DA

+44 (0)1822 612458

Reference: 33280166

Request a viewing for this property

Simply fill out the form below or alternatively call us on 020 7839 0888

* Mandatory fields