Land
£400,000
Marshwood, Bridport, Dorset

Floorplans For Marshwood, Bridport, Dorset

Description


A residential development site with planning permission for 4 detached houses, in a popular village.

The Development Site - An exciting and unique development opportunity in the sought after village of Marshwood.

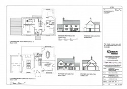
Planning Permission - Planning permission was passed in November 2023 (Ref: P/FUL/2021/00544) for the building of four detached houses. It will be subject to a Section 106 Agreement.

Proposed Houses - Plot 1 Detached house - 2 bedrooms, study/office (potential bedroom 3), 2 bathrooms, double garage - Net floor area around 1,335sqft excluding garage.
Plot 2Detached house - 3 bedrooms, study/office (potential bedroom 4), 2 bathrooms, garage - Net floor area around 1,569sqft excluding garage.

Plot 3Detached house - 3 bedrooms, study/office (potential bedroom 4), 2 bathrooms, garage - Net floor area around 1,569sqft excluding garage.

Plot 4Detached house - 3 bedrooms, study/office (potential bedroom 4), 2 bathrooms, double garage - Net floor area around 1,569sqft excluding garage.

Occupation of the dwellings as a main residence only.

Situation - The development site lies on the western outskirts of the village of Marshwood, which nestles in the idyllic Marshwood Vale. It enjoys far-reaching countryside views in an Area of Outstanding Natural Beauty. The village has a wealth of local amenities including a church, primary school and a thriving local community. The village is surrounded by the beautiful rolling countryside with Dorset's highest hill nearby and the surrounding countryside offers an abundance of walks and bridleways. The village is ideally places with easy access to the towns of Beaminster, Bridport, Axminster and Lyme Regis.

Services - Mains electricity and water. Private sewage treatment systems will need to be installed.

Viewings - Strictly by appointment with Stags Bridport.

Directions - From Bridport go west along the A35 towards Axminster. At Raymonds Hill/Hunters Lodge turn right onto the B3165 to Marshwood. The development site will be seen on the left, virtually opposite the village school.

Stags

Stags

29 South Street
Bridport
Dorset
DT6 4NR

+44 (0)1308 428000

Reference: 33263407

Request a viewing for this property

Simply fill out the form below or alternatively call us on 020 7839 0888

* Mandatory fields